Wohnobjekt

Villa neuve sur plan dans un espace verdoyant

CHF 875'000

 | 

132 m²

 | 

5.5 Zimmer

Chemin de Remontet 18, 1536 Combremont-le-Petit

Villa neuve sur plan dans un espace verdoyant - Karte
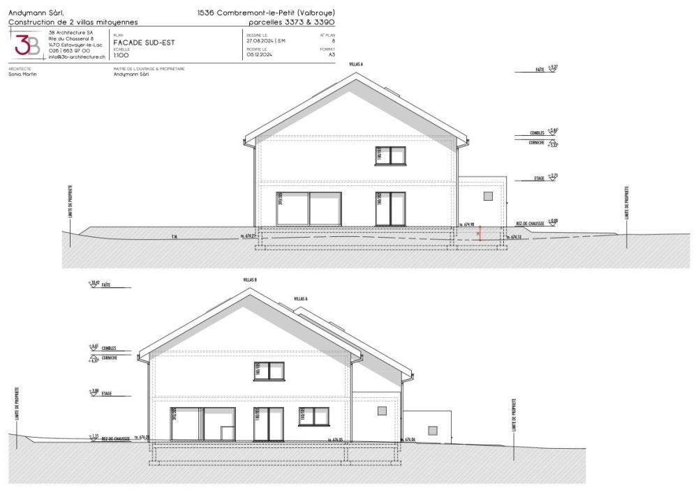
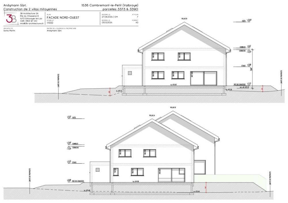
Villa d'architecte mitoyenne de 4,5 ou 5,5 pièces avec un terrain exclusif de 425 m2 à Combremont-le-Petit.LES ATOUTS EN UN COUP D'OEILVilla d'architecteConstruction traditionnelleIntérieurs sur mesureCadre champêtre et natureVue dégagée32m2 habitables supplémentaires en optionSITUATIONLe charmant village de Combremont du district de la Broye est situé dans le canton de Fribourg avec une proximité immédiate d'Estavayer-le-Lac et Payerne :17 minutes d'Estavayer-le-Lac avec toutes ses commodités17 minutes de Payerne avec toutes ses commodités21 minutes de Romont23 minutes d'Yverdon-les-Bains29 minutes d'Epalinges40 minutes de Bulle, Fribourg centre et de Lausanne centreLA VILLALe modèle présenté (villa A) offre de grands avantages, mais vous pourrez effectuer des adaptations intérieures sur devis.Les plans comprennent déjà plusieurs variantes pour vous aider à choisir celle qui vous convient le mieux.Nous nous occupons de tout et vous accompagnons du début à la remise des clés.La surface présentée mesure 215m2 bruts et 132m2 nets pour 4,5 ou 5,5 pièces (modulable).La villa est ici prévue avec un vaste grenier de79 m2 (dont 32 m2 sont aménageables sur devis).LE TERRAINLa parcelle en jouissance exclusivemesure environ 409 m2 ou 442 m2 à choix.Elle se situe dans un rayon proche de toutes les commoditéÉtant localisée dans un quartier très verdoyant et en bordure de champs, vous pourrez jouir d'une situation sereine pour votre famille.L'INTERIEUR :La répartition des pièces se détaille comme suit :REZ :Hall d'entrée avec penderie - 8,85 m2Cuisine équipée ouverte /salle à manger - 53 m2WC visteurs - 2,65 m2Local technique - 10,25 m2ETAGE :1 vaste suite parentale avec dressing, WC/douche attenante - 21,45 m21 grande chambre à coucher- 13,50 m21 grande chambre à coucher - 13,60 m21 salle de bain (WC, baignoire) - 6,20 m2Hall de distribution - 6,30 m2COMBLES :1 vaste grenier - 79 m2 (dont 32 m2 sont aménageables sur devis)SOUS-SOLVide sanitaire sur toute la surface de l'objetEXTERIEURS :Jardin privatifTerrasse2 places de parc extérieures comprises dans le prix de la villaLocal technique indépendantVous êtes déjà propriétaire et souhaitez coordonner l'achat de cette maison avec la vente de votre domicile actuel ?N'hésitez pas à nous demander une estimation offerte.Nous vous rencontrons volontiers pour vous orienter dans les bonnes démarches.www.synergimmo.ch

Kosten

Kaufpreis:
CHF 875'000

Angaben

Objektkategorie
Eigentum
Objektreferenz
1cb72eb2-36b8-4775-a857-c3457381724e
Adresse
Chemin de Remontet 18
PLZ/Ort
1536 Combremont-le-Petit
Region
Broye-Vully
Wohnfläche
132 m²
Grundstücksfläche
442 m²
Anzahl Zimmer
5.5
Baujahr
2025

Merkmale und Ausstattung

Balkon
Parkplatz

Kontakt

  • Synergimmo SA
  • Route du Verney 4, 1070, Puidoux
  • Nummer Anzeigen

Auch inseriert auf:

homegate.ch