Wohnobjekt

Verkaufsförderung: Wohnung im Vorausverkauf Einheit 44-01

CHF 770'000

 | 

64 m²

 | 

2.5 Zimmer

Avenue de la Gare, 1022 Chavannes-près-Renens

Verkaufsförderung: Wohnung im Vorausverkauf Einheit 44-01 - Karte
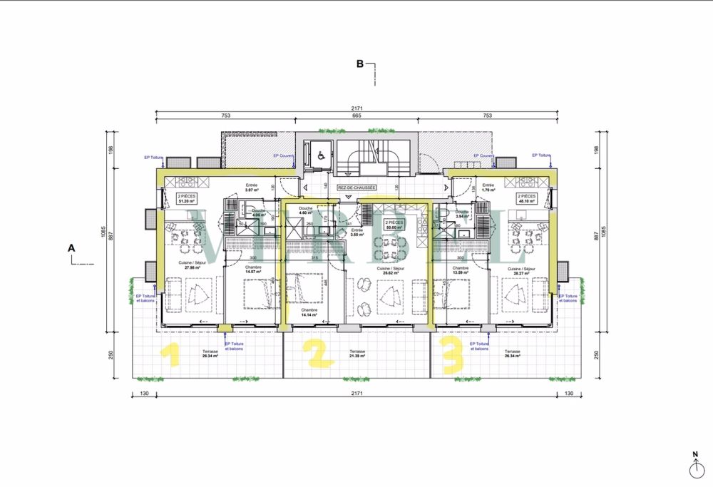
Die Agentur VERBEL hat das Vergnügen, Ihnen "Les Balcons de Chavannes" vorzustellen, das sich im Herzen von Chavannes-Pré-Renens befindet, einer charmanten Gemeinde, die mit Lausanne und der Region Léman verbunden ist. Dieses Projekt umfasst 12 Wohnungen auf drei Ebenen mit Flächen von 30 m2 bis 105 m2.Diese Broschüre stellt Ihnen die Einheit 44.01 mit 51,20 m2 (PPE-Fläche) vor, die aus einer Wohnung besteht, die sich zusammensetzt aus:- einem Eingangsbereich von 3,97 m2- einer offenen Küche mit Wohnzimmer von 27,98 m2- einem Schlafzimmer von 14,07 m2- einem Badezimmer von 4,06 m2- einer Terrasse von 26,34 m2- Vorbereitung und Bau:Die Gebäudehülle bietet eine effiziente Isolierung, eine Holzkonstruktion und eine elegante Fassade mit motorisierten Lamellenstores.- Technische Ausstattung:Jede Wohnung verfügt über eine vollständige elektrische Installation, eine photovoltaische Vorbereitung sowie ein Heizsystem mit Wärmepumpe und Fußbodenheizung mit niedriger Temperatur. Die einfache Flussventilation gewährleistet eine gesunde und kontinuierliche Belüftung. Ein elektrischer Aufzug für Menschen mit Behinderungen bedient alle Ebenen.- Innenraumgestaltung:Die Innenräume verbinden Komfort und Ästhetik: Wände in hellen Farbtönen (RAL 9010), Einbauschränke und integrierte Möbel. Jedes Detail ist darauf ausgerichtet, eine warme und elegante Atmosphäre zu schaffen.- Außenbereiche:Die Erdgeschosse profitieren von Terrassen und privaten Gärten mit Hecken, während die gemeinsamen Außenbereiche Grünflächen, sorgfältig gestaltete Beleuchtung und einen gemütlichen Spielplatz umfassen.- Enthaltene Leistungen:Architekten- und Ingenieurhonorare, Anschlussgebühren und Baustellenversicherungen sind im Projekt enthalten.- Budgets mit modernen und nachhaltigen Materialien:* Küchenausstattung: CHF 10'000.-TTC* Badezimmer: CHF 7'000.- TTC* Bodenbelag in Keramik: CHF 60.-/m2 TTC (Lieferung)* Bodenbelag in Parkett: CHF 60.-/m2 TTC (Lieferung)Bedingungen im Falle eines Interesses: 10% Anzahlung anteilige Grundstückskosten.

Kosten

Kaufpreis:
CHF 770'000

Angaben

Objektkategorie
Eigentum
Objektreferenz
d58a07cb-cfdd-420e-b2fe-ed10a5da0895
Adresse
Avenue de la Gare
PLZ/Ort
1022 Chavannes-près-Renens
Region
Lausanne
Wohnfläche
64 m²
Anzahl Zimmer
2.5
Etage
EG
Baujahr
2025

Kontakt

  • Verbel SA
  • Boulevard des Tranchées 8, 1206, Genève
  • Nummer Anzeigen

Auch inseriert auf:

immoscout24.ch