Wohnobjekt

Magnifique Villa individuelle idéalement située

CHF 2'450'000

 | 

5.5 Zimmer

1279 Chavannes-de-Bogis

Magnifique Villa individuelle idéalement située - Karte
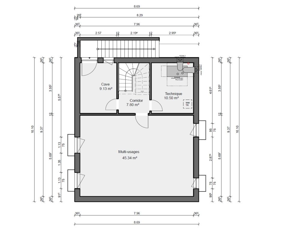
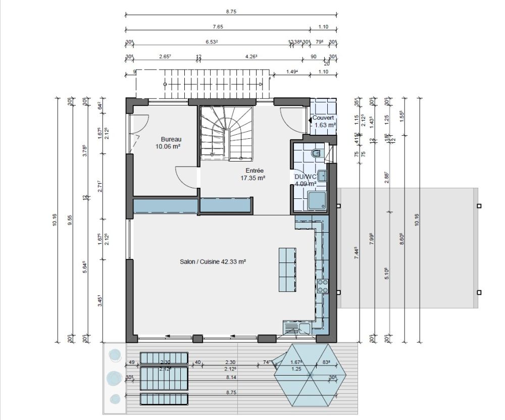
DescriptionBienvenue dans une résidence située au Chemin du Crêt 3, Chavannes-de-Bogis, Suisse, deux villas contemporaines qui allient design raffiné, confort et respect de l’environnement. Cette propriété, pensée pour répondre aux besoins d’une famille moderne, s’étend sur deux étages habitables aménagées, offrant une surface habitable nette de 150 m² et une surface utile de 230 m². Cette villa a également comme option une surélévation en ajoutant des combles habitables amenant la surface habitable nette a 174m2.
Un grand espace ouvert salon, cuisine et un bureau/chambre au rez, puis une suite parentale au premier avec 2 grandes chambres conviendra parfaitement a une famille de 4 ou 5 personnes.
Plusieurs plans d'intérieur sont encore possibles ! Demandez notre dossier complet.
Les villas sont vendues sur plans, finitions intérieures au gré du preneur. Permis en force.
Description détaillée de la propriété
Architecture et design extérieur
La villa se pare d’une façade anthracite élégante, avec un rez blanc qui accentue son allure sophistiquée. Les grandes baies vitrées, omniprésentes sur les deux étages, inondent les espaces intérieurs de lumière naturelle, créant une ambiance lumineuse et aérée. Le toit en tuiles noires ajoute une touche classique qui contraste harmonieusement avec les lignes épurées de cette architecture contemporaine. À l’extérieur, un beau terrain soigneusement aménagé inclut un jardin aménagé ainsi qu’une piscine rectangulaire en option invitant à la détente estivale. Une belle terrasse offre un espace idéal pour les repas en plein air ou les moments de relaxation en famille. Un couvert pour deux voitures complète les commodités extérieures, offrant un espace de stationnement pratique et protégé.
Un accès à la cave avec un escalier extérieur est en option.
Performances énergétiques
Cette villa répond aux normes suisses les plus strictes en matière d’efficacité énergétique et de durabilité. L’isolation thermique, équivalent au standard MINERGIE, et l’utilisation de matériaux écologiques garantissent une consommation énergétique réduite tout en offrant un confort thermique optimal toute l’année. Avantages de l’emplacement
Située dans le charmant village de Chavannes-de-Bogis, cette villa profite d’un emplacement stratégique alliant tranquillité rurale et accessibilité urbaine. La proximité de l’école est un atout indéniable pour les familles, permettant aux enfants de se rendre à pied ou en quelques minutes à leurs établissements scolaires. De plus, l’entrée de l’autoroute toute proche offre un accès rapide à Genève, tandis que l’aéroport de Genève est accessible en seulement 15 minutes de route, idéal pour les déplacements professionnels ou les voyages. Le cadre verdoyant, avec ses vues sur la nature environnante, complète cette offre par une sérénité rare, tout en restant à seulement quelques minutes des commodités locales telles que les commerces et les services.
Distances et temps en voiture.
Ecole internationale: 4min 1,4 km
Ecole publique: 2min 500m
Centre commercial Manor 4min, 1,9 km
Auberge: 2min, 350m
Centre sportif: 4 min, 2,3 km
Terrain de jeu: 3 min, 600m
Autoroute: 3 min, 700m
Gare de Coppet: 7 min, 4,5 km
Bus: 813, 891: 2 min, 190m
Options possibles
Escaliers extérieur pour la cave.
Piscine (permis en force).
Certification MINERGIE.
Surélévation avec combles habitables.

Verfügbarkeit

Bezugstermin:
1. Dezember 2026

Kosten

Kaufpreis:
CHF 2'450'000

Angaben

Objektkategorie
Eigentum
Objektreferenz
65db06bd-4a59-4657-ba74-256326281630
PLZ/Ort
1279 Chavannes-de-Bogis
Region
District de Nyon
Grundstücksfläche
728 m²
Anzahl Zimmer
5.5
Baujahr
2026

Merkmale und Ausstattung

Balkon
Parkplatz
Kinderfreundlich

Kontakt

  • Immo-Koncept Solutions SA
  • Rue du Stand 68, 1260, Nyon
  • Nummer Anzeigen

Auch inseriert auf:

homegate.ch