Wohnobjekt

AUBONNE - Exklusiv - Einfamilienhaus auf Plan zum Verkauf!

CHF 1'890'000

 | 

220 m²

 | 

5.5 Zimmer

La Vignettaz 20, 1170 Aubonne

AUBONNE - Exklusiv - Einfamilienhaus auf Plan zum Verkauf! - Karte
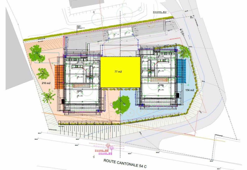
Villa LOT A Prächtige Einfamilienhäuser mit etwa 220 m2 in einer ländlichen Umgebung im Herzen der Waadtländer Landschaft, in Montherod, einem friedlichen Dorf, das Teil der Gemeinde ist. Die Häuser bieten: Eine zeitgenössische und sorgfältig gestaltete Architektur, schöne helle Räume mit privatem Garten. Hochwertige Ausführungen, die personalisiert werden können, und ein ruhiger Lebensraum, ideal für Familien. Ein seltenes Wohnambiente, zwischen Raum, Komfort und Natur, in der Nähe von allem, was zählt. Jedes Haus ist völlig unabhängig, ohne gemeinsame Wand, garantierend Intimität und Komfort. Es handelt sich nicht um eine PPE, jedes Grundstück ist ein vollwertiges Eigentum. Gemeinsam ist nur der Zugangsweg zu den Häusern, dann hat jeder sein eigenes Autohaus und seinen eigenen Abstellraum. Das Projekt zeichnet sich durch eine zeitgenössische Architektur, helle Räume und hochwertige technische Ausführungen mit optimaler Energieeffizienz aus. Ob Sie ein dynamischer Profi sind, der Ruhe und Natur sucht, eine Familie, die nach einem geräumigen Wohnraum sucht, oder ein Architektur-Enthusiast, dieses Projekt lädt Sie ein, in einem prächtigen Ambiente zu leben, wo Komfort und Eleganz harmonisch zusammenkommen. MERKMALE: Baustart Oktober 2025 Photovoltaik-Panel Bodenheizung, Niedertemperatur Wahl der Ausführungen: Fliesen, Parkett, Küche und Geräte. Sanitär- und Geräte. Stromplan ABMESSUNGEN: Keller ohne Technikraum 38,50 m2 Erdgeschoss 84,90 m2 + 9,43 Loggia Obergeschoss 82,60 m2 Garten 210 m2 Schwimmbad möglich 3,5 m x 6 m KELLER: Wärmepumpe, Waschküche, Voreinrichtung für Dusche (Abfluss, Wasserzufuhr). ERDGESCHOSS: Innen: Garderobe im Eingang, ausgestattete und möblierte Küche, große Schiebetür, Gäste-WC, Wohnzimmer, Küche, Vorratsraum. Außen: Süd-Terrasse, West-Terrasse mit Garten, Außenkeller, Parkplatz, Gemeinschaftsraum. DACHGESCHOSS: Ein Badezimmer mit WC, Elternschlafzimmer, ein Badezimmer mit WC, automatische Dachfenster. Zugang zum Dachboden mit Schiebetrappe. OPTIONAL: 3 Schlafzimmer (ca. 20 m2) oder 4 Schlafzimmer (ca. 15 m2) - Siehe Pläne. Parkplätze pro Wohnung mit Vorbereitung für Elektrotankstellen Elektrische Jalousien, Dreifachverglasung PVC/Alu

Kosten

Kaufpreis:
CHF 1'890'000

Angaben

Objektkategorie
Eigentum
Objektreferenz
aa0d6394-fc39-4a0f-b15c-0231a2ff3e2b
Adresse
La Vignettaz 20
PLZ/Ort
1170 Aubonne
Region
Morges
Wohnfläche
220 m²
Anzahl Zimmer
5.5
Baujahr
2025

Merkmale und Ausstattung

Haustiere erlaubt
Balkon
Kinderfreundlich

Kontakt

  • Infinimmo Sàrl
  • Rue Roger de Lessert 6, 1164, Buchillon
  • Nummer Anzeigen

Auch inseriert auf:

homegate.ch