Wohnobjekt

Moderne 4.5-Zimmer-Wohnung Westhöhe in Eschenz mit Seenähe

CHF 860'000

 | 

117 m²

 | 

4.5 Zimmer

Hauptstrasse 40, 8264 Eschenz

Moderne 4.5-Zimmer-Wohnung Westhöhe in Eschenz mit Seenähe - Karte
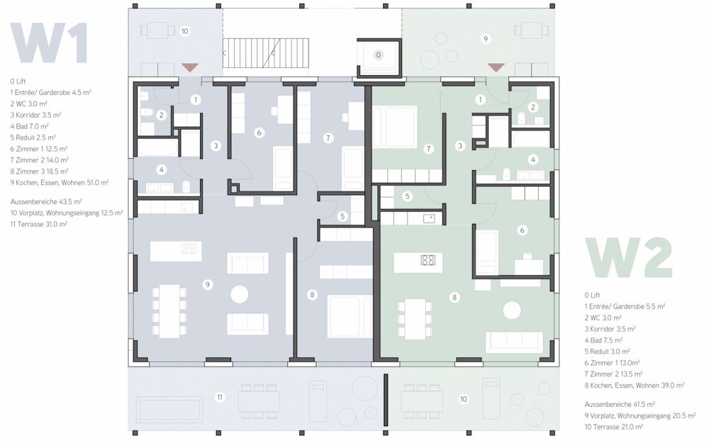
Entdecken Sie diese exklusive 4.5-Zimmer-Wohnung im ersten Obergeschoss eines brandneuen Minergie-Standard Gebäudes in Eschenz. Mit einer grosszügigen Wohnfläche von 117 m² bietet diese Immobilie modernen Komfort und nachhaltige Lebensqualität.
Highlights der Wohnung:
Geräumiger Wohnbereich: Perfekt für Familien oder Paare, die Wert auf Platz und Aussicht legen
Zwei moderne Badezimmer: Für zusätzlichen Komfort und Privatsphäre.
Balkon: Ideal zum Entspannen und Geniessen der Umgebung mit malerischer Aussicht
Barrierefreier Zugang: Rollstuhlgerecht gestaltet für maximale Zugänglichkeit inkl. Lift.
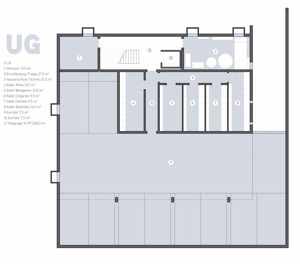
Garage und Parkplatz: Sicherer Stellplatz für Ihr Fahrzeug. (Tiefgaragenplatz 32`000 CHF)
Aufzug: Für bequemen Zugang zu allen Etagen.
Schöne Aussicht: Geniessen Sie den Blick auf die malerische Umgebung.
Lage und Umgebung:
Unverbaubare Weitsicht Richtung Süden
Sonnige Lage, besonders im Sommer
Nahe gelegener Bahnhof und See
Nur 3 Gehminuten zur Bushaltestelle "Höfen"
7 Gehminuten zum Landi Supermarkt
10 Gehminuten zur Primarschule Eschenz
15 Gehminuten zum Bahnhof Stein am Rhein
Diese Neubauwohnung, die 2026 fertiggestellt wird, vereint modernes Design mit Energieeffizienz und bietet eine perfekte Balance zwischen städtischem Komfort und ländlicher Ruhe. Die zentrale Lage in Eschenz ermöglicht einen einfachen Zugang zu allen wichtigen Einrichtungen des täglichen Bedarfs.
Ob Sie eine Familie gründen, im Home-Office arbeiten oder einfach einen komfortablen Rückzugsort suchen - diese Wohnung bietet Ihnen alle Möglichkeiten. Verpassen Sie nicht die Chance, Teil dieser exklusiven Wohnanlage zu werden und Ihr neues Zuhause in der charmanten Gemeinde Eschenz zu finden.
Weitere Details unter www.weitsicht-eschenz.ch

Kosten

Kaufpreis:
CHF 860'000

Angaben

Objektkategorie
Eigentum
Objektreferenz
3207e6e5-74d8-4e0f-a0e8-6d9096a7731b
Adresse
Hauptstrasse 40
PLZ/Ort
8264 Eschenz
Region
Frauenfeld
Wohnfläche
117 m²
Anzahl Zimmer
4.5
Etage
1
Baujahr
2027

Merkmale und Ausstattung

Balkon
Lift
Garage
Schöne Aussicht
Parkplatz
Rollstuhlgängig
Minergie

Kontakt

  • ImmoSwiss AG
  • Bälisteigstrasse 2, 8264, Eschenz
  • Nummer Anzeigen

Auch inseriert auf:

homegate.ch