Wohnobjekt

Moderne 3.5-Zimmer-Garten-Wohnung mit 103 m2 eigenem Garten

CHF 679'000

 | 

88 m²

 | 

3.5 Zimmer

Hauptstrasse 40, 8264 Eschenz

Moderne 3.5-Zimmer-Garten-Wohnung mit 103 m2 eigenem Garten - Karte
Entdecken Sie diese exklusive 3.5-Zimmer-Gaten-Wohnung in Eschenz, einem charmanten Ort in der Nähe des Bodensees. Diese Neubauwohnung, die 2026 fertiggestellt wird, vereint modernen Komfort mit nachhaltiger Bauweise und bietet einen perfekten Rückzugsort für anspruchsvolle Bewohner.
Highlights der Wohnung:
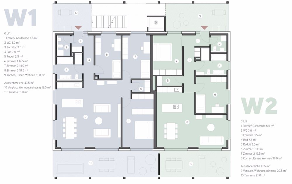
Grosszügiger Wohnraum: 88 m² Wohnfläche mit einer Deckenhöhe von 2.45 m für ein luftiges Ambiente und einem Lift der zu Ihrer Etage führt.
Moderne Ausstattung: Inkl. Geschirrspüler Kücheninsel und zeitgemässem Komfort
Barrierefreiheit: Rollstuhlgerecht konzipiert mit Aufzug für maximale Zugänglichkeit
Aussenbereich: Terasse mit schöner Aussicht für entspannte Momente im Freien mit einem grosszügigem privaten Garten
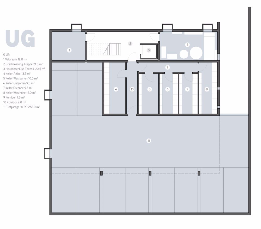
Parkmöglichkeiten: Eigene Garage und zusätzliche Parkplätze vorhanden (Tiefgaragenplatz 32`000 CHF)
Nachhaltigkeit: Minergie-Standard für energieeffizientes Wohnen
Lage und Umgebung:
Unverbaubare Weitsicht Richtung Süden
Sonnige Position mit viel Licht, vor allem im Sommer
Nahe am Bahnhof für bequeme Verbindungen
Kurze Distanz zum See für Freizeitaktivitäten
Einkaufsmöglichkeiten (Landi) in 7 Gehminuten erreichbar
Primarschule Eschenz nur 10 Gehminuten entfernt
Bushaltestelle "Höfen" in unmittelbarer Nähe (2 Gehminuten)
Diese Wohnung bietet eine seltene Kombination aus moderner Architektur, Nachhaltigkeit und einer attraktiven Lage. Ideal für Paare, kleine Familien oder Einzelpersonen, die Wert auf Komfort, Barrierefreiheit und eine angenehme Umgebung legen. Die Nähe zum Bodensee und die gute Infrastruktur machen diese Immobilie zu einer ausgezeichneten Wahl für alle, die das Stadtleben mit der Ruhe der Natur verbinden möchten.
Nutzen Sie diese Gelegenheit, um Teil dieser exklusiven Wohnanlage zu werden und Ihren Traum vom modernen Wohnen in einer der schönsten Regionen der Schweiz zu verwirklichen.

Kosten

Kaufpreis:
CHF 679'000

Angaben

Objektkategorie
Eigentum
Objektreferenz
0891a70d-9518-4470-ad8f-1a156a407726
Adresse
Hauptstrasse 40
PLZ/Ort
8264 Eschenz
Region
Frauenfeld
Wohnfläche
88 m²
Anzahl Zimmer
3.5
Etage
EG
Baujahr
2027

Merkmale und Ausstattung

Balkon
Lift
Garage
Schöne Aussicht
Parkplatz
Rollstuhlgängig
Minergie

Kontakt

  • ImmoSwiss AG
  • Bälisteigstrasse 2, 8264, Eschenz
  • Nummer Anzeigen

Auch inseriert auf:

homegate.ch