Wohnobjekt

Ihr neues Zuhause: nachhaltig, solide, zeitgemäss

keine Preisangabe

 | 

224 m²

 | 

6.5 Zimmer

Grundstrasse, 8580 Amriswil

Ihr neues Zuhause: nachhaltig, solide, zeitgemäss - Karte
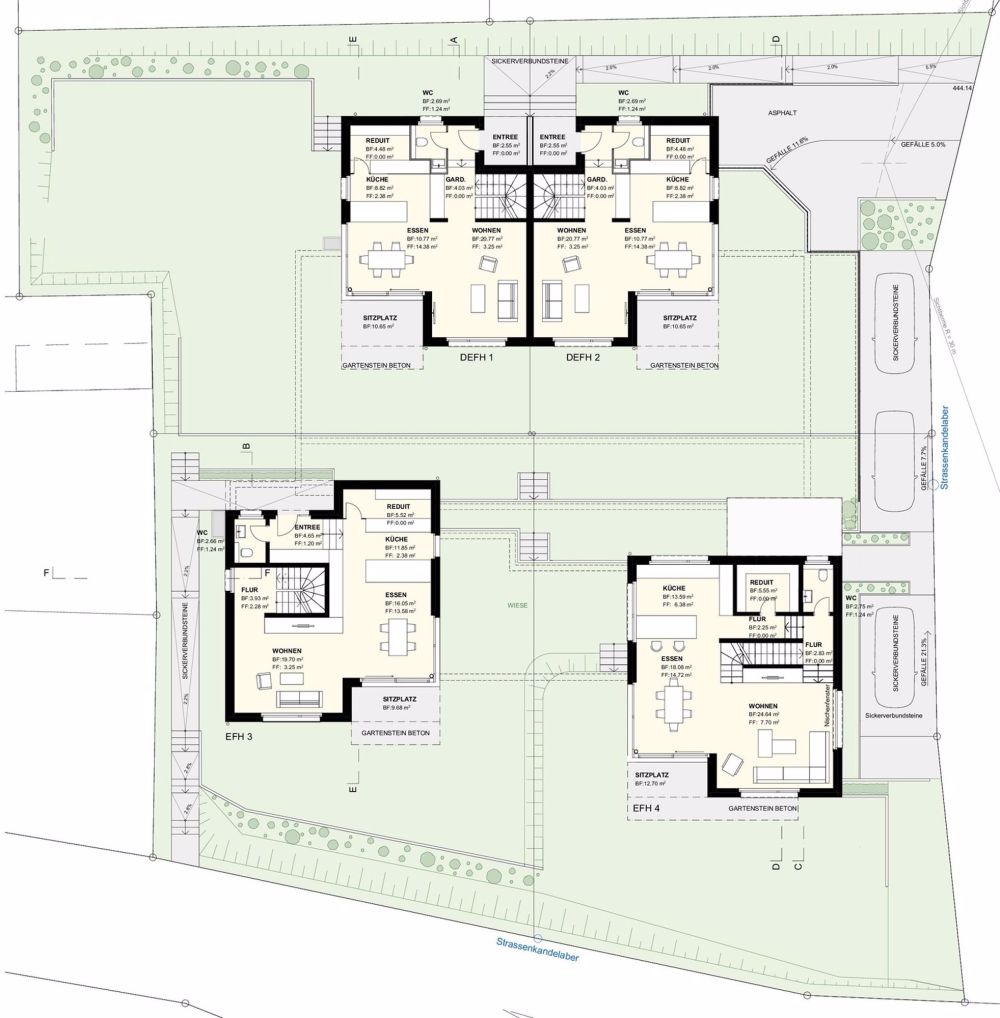
Willkommen in AMRIS-TERRA, das weit über reines Bauen hinausgeht. Hier schaffen wir Wohnraum, der Menschen, Generationen und Ideen verbindet. Es ist ein Ort, an dem Geschichten entstehen, und Sie können ein Teil davon sein. Ein solides, gesundes, nachhaltiges und zeitgemässes Zuhause. Mit zwei Doppelhaushälften und zwei freistehenden Einfamilienhäusern bieten wir Ihnen modernen Wohnraum in einer ruhigen und dennoch bestens erschlossenen Lage. Ihre Vorteile auf einen Blick: Hochwertige Architektur sowie Ausbau-Standard mit klaren Linien und einem nachhaltigen Konzept Massivbauweise Wärmeerzeugung durch Erdsonden Wärmepumpe mit Free-/ Cooling Grosszügige Gärten für Ihr persönliches Freizeitparadies Nahe Anbindung an den öffentlichen Verkehr und die Region Bodensee Verkehrsberuhigte Umgebung – ideal für Familien mit Kindern Geniessen Sie modernes Wohnen mit allen Annehmlichkeiten und einer hohen Lebensqualität. Das Einfamilienhaus "Feronia" beinhaltet: 6 1/5-Zimmer, ausserdem Kellerraum, Technikraum und Waschraum mit Waschturm im UG, sowie Sitzplatz und Garten im EG ca. 224 m² Nettowohnfläche, ca. 301 m² Nutzfläche, verteilt auf vier Etagen drei Nasszellen ca. 1221 m³ Gebäudevolumen ca. 420 m² Grundstücksfläche Parzellennummer 2826 2 Einstellplätze in der Tiefgarage und ein Aussenabstellplatz verfügbar optionale Ausbaupakete für Sonderwünsche zur Individualisierung möglich, wie z.B. einseitige Indach-Photovoltaikanlage zu einem Mehrpreis von ca. CHF 28'000.-- Kontaktieren Sie uns jetzt und verlangen Sie unsere ausführliche Verkaufsdokumentation.

Verfügbarkeit

Ab Sofort

Kosten

Kaufpreis:
keine Preisangabe

Angaben

Objektkategorie
Eigentum
Objektreferenz
bb382e46-9592-4ced-8c89-a3a23c70ee3c
Adresse
Grundstrasse
PLZ/Ort
8580 Amriswil
Region
Arbon
Wohnfläche
224 m²
Grundstücksfläche
420 m²
Anzahl Zimmer
6.5
Baujahr
2026

Merkmale und Ausstattung

Schöne Aussicht
Kinderfreundlich

Kontakt

  • STAUB Immobilien Treuhand AG
  • Zürcherstrasse 120, 8500, Frauenfeld
  • Nummer Anzeigen

Auch inseriert auf:

homegate.ch