Wohnobjekt

Tesserete, 3,5 Zimmer in neuem Bau im Kontext von nur 8 Einheiten

CHF 855'000

 | 

74 m²

 | 

3.5 Zimmer

6950 Tesserete

Tesserete, 3,5 Zimmer in neuem Bau im Kontext von nur 8 Einheiten - Karte
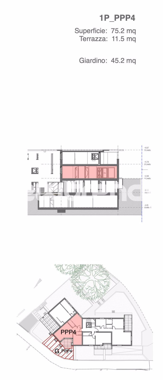
Im Herzen von Tesserete, wo Komfort und modernes Design aufeinandertreffen, entsteht diese exklusive 3,5-Zimmer-Wohnung in neuem Bau, die für ein raffiniertes und ruhiges Leben konzipiert wurde. Mit einer Wohnfläche von 74 m² zeichnet sich die Residenz durch das Gleichgewicht zwischen Funktionalität und ästhetischer Harmonie aus. Die Räume, die darauf ausgelegt sind, das natürliche Licht aufzunehmen und zu schätzen, bieten ausgewogene und moderne Flächen, ideal für diejenigen, die in einem gepflegten und komfortablen Umfeld leben möchten. Der Eingang öffnet sich zu einem einladenden Atrium, das zu den verschiedenen Zonen der Wohnung führt. Die Anordnung umfasst ein Badezimmer mit Dusche und zwei Schlafzimmer: eines mit direktem Zugang zur Terrasse und ein Schlafzimmer mit eigenem Badezimmer, das Privatsphäre und Komfort gewährleistet. Der Tagbereich, geräumig und hell, beherbergt das Wohnzimmer, das Esszimmer und eine moderne offene Küche, die direkt zur Terrasse und zum privaten Garten führt, perfekt für entspannte Momente im Freien. Hier zu leben bedeutet, ein ruhiges und grünes Umfeld zu genießen, ohne auf die Nähe zu den wichtigsten Dienstleistungen und Verbindungen zu verzichten. Es ist die ideale Gelegenheit für diejenigen, die ein Zuhause suchen, das Wohlbefinden, Eleganz und architektonische Innovation in einer einzigartigen Lösung vereint. Kontaktieren Sie uns für weitere Informationen oder um einen Besuch zu organisieren und die Qualität dieses Wohnangebots in Tesserete live zu entdecken. Tel: 091 921 00 31 Rif: 3006.4 Zusammenfassung: Diese exklusive 3,5-Zimmer-Wohnung verfügt über 74 m² Wohnfläche und ist wie folgt aufgeteilt: - Atrium; - Badezimmer mit Dusche; - Zimmer mit Zugang zur Terrasse; - Schlafzimmer mit eigenem Badezimmer; - Wohnzimmer, Esszimmer mit offener Küche und Zugang zur Terrasse und zum Garten.STANDORT / UMFELD Tesserete ist der Hauptort der Gemeinde Capriasca und das Zentrum der meisten Aktivitäten und Dienstleistungen im Tal. Es gibt Schulen, Geschäfte, Banken, das Sportzentrum und öffentliche Einrichtungen, die es zu einer richtigen Kleinstadt machen. Capriasca ist eine Zone mit natürlichen und vielfältigen Landschaften und sehr gefragten Wohngebieten, da es nur wenige Kilometer von der Stadt Lugano (ca. 8 km) entfernt ist, aber im Grünen liegt.Wäscherei mit Waschmaschine und Trockner für den exklusiven Gebrauch.Bildung Kinderkrippe: 950 m / 5 min mit dem Auto Grundschule: 950 m / 5 min Mittelschule: 700 m / 5 min Gymnasium: 8,4 km / 15 min Universität: 7,9 km / 15 min Verkehr Haltestelle öffentliche Verkehrsmittel: 100 m / 1 min (Bus alle 30 Minuten ca.) Haltestelle mit Fahrradverleih: 100 m / 1 min Bahnhof: 8,4 km / 15 min Autobahnzufahrt: 8,5 km / 15 min Einkaufsmöglichkeiten, Geschäfte, Dienstleistungen Apotheke: 350 m / 3 min Supermärkte: Migros (220 m), Coop (500 m), Denner (200 m) Restaurants, Bars: 7 im Umkreis von 700 m Postamt: 400 m Banken: 2 im Umkreis von 400 m Tankstelle, Garage: 400 m Freizeit Sportarena: in 250 m / 4 min Entfernung befindet sich die neue Arena, in der verschiedene Aktivitäten und Kurse wie Schwimmen, Leichtathletik, Tennis, Volleyball, Skatepark, Klettern, Fußball (Sonderpreise für Einwohner) angeboten werden Strand/Schwimmbad: in 250 m neue Badeanlage mit Sonderpreisen für Einwohner Natur: in der Nähe können verschiedene Aktivitäten in der Natur wie Orientierungslauf, Klettersteig, Wandern, Spaziergänge, Skigebiete für Kinder durchgeführt werden.

Kosten

Kaufpreis:
CHF 855'000

Angaben

Objektkategorie
Eigentum
Objektreferenz
cf6d77c6-4939-4d53-93da-5caa92095a83
PLZ/Ort
6950 Tesserete
Region
Lugano
Wohnfläche
74 m²
Anzahl Zimmer
3.5
Etage
1
Baujahr
2026

Kontakt

  • New Trends SA
  • Via Pretorio 11, 6900, Lugano
  • Nummer Anzeigen

Auch inseriert auf:

immoscout24.ch