Wohnobjekt

Nuovo appartamento con grande giardino in zona comoda e tranquilla

CHF 895'000

 | 

118 m²

 | 

4.5 Zimmer

Via ai Prati, 6514 Sementina

Nuovo appartamento con grande giardino in zona comoda e tranquilla - Karte
La Residenza ai Prati sorgerà nell’omonima via con comodo accesso da Via al Ticino, in zona molto ben servita e nelle immediate vicinanze dei principali servizi.
La zona è molto pregiata e la Via ai Prati è particolarmente tranquilla, essendo una piccola strada di quartiere con transito solo per i residenti.
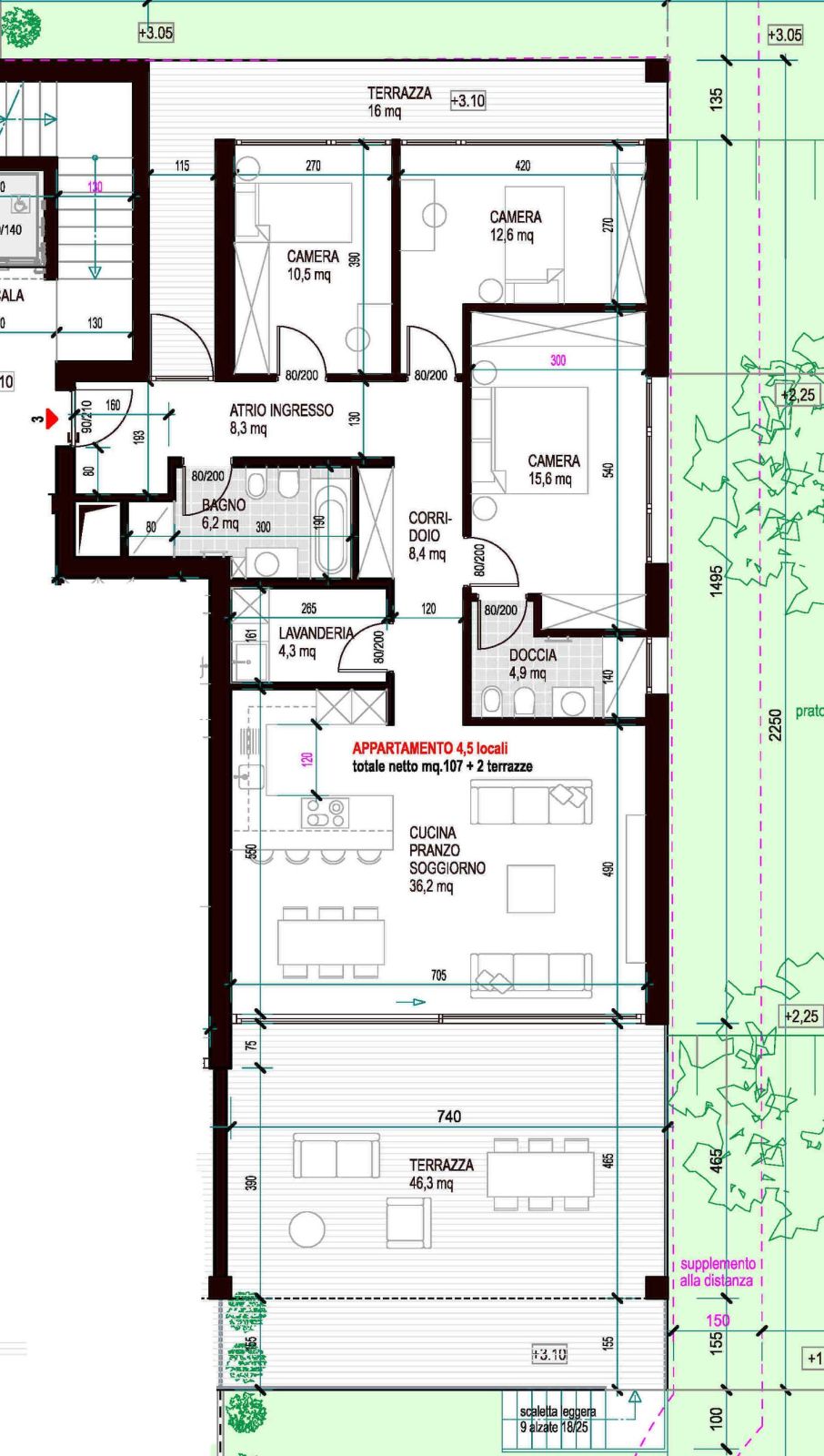
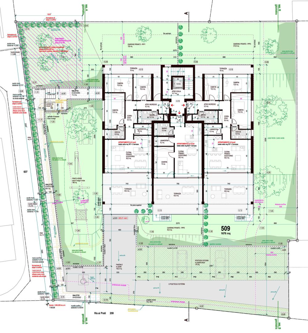
La residenza è composta da 12 appartamenti: 4 unità di 2 ½ locali e 8 unità di 4 ½ locali che sono distribuiti tre per piano e ripartiti tra il livello 1 ed il livello 4.
L’edificio verrà realizzato in stile costruttivo tradizionale, con elementi in beton ed in muratura e con isolazione termica delle facciate.
Particolare attenzione è stata data agli aspetti energetici: Impianto a regolazione individuale per ogni locale, termopompa aria/acqua e distribuzione calore con serpentine a bassa temperatura posate a pavimento e pannelli solari fotovoltaici posati sul tetto.
Gli appartamenti offrono spazi architettonici valorizzati sia dalla tipologia di distribuzione che dalla scelta personale delle rifiniture.
Ogni abitazione dispone della sua lavanderia privata ubicata all’interno dell’appartamento.
Gli spazi esterni molto importanti sono garantiti sia dai giardini al piano terreno che dalle grandi terrazze coperte che per le abitazioni di 4 ½ locali sono doppie.
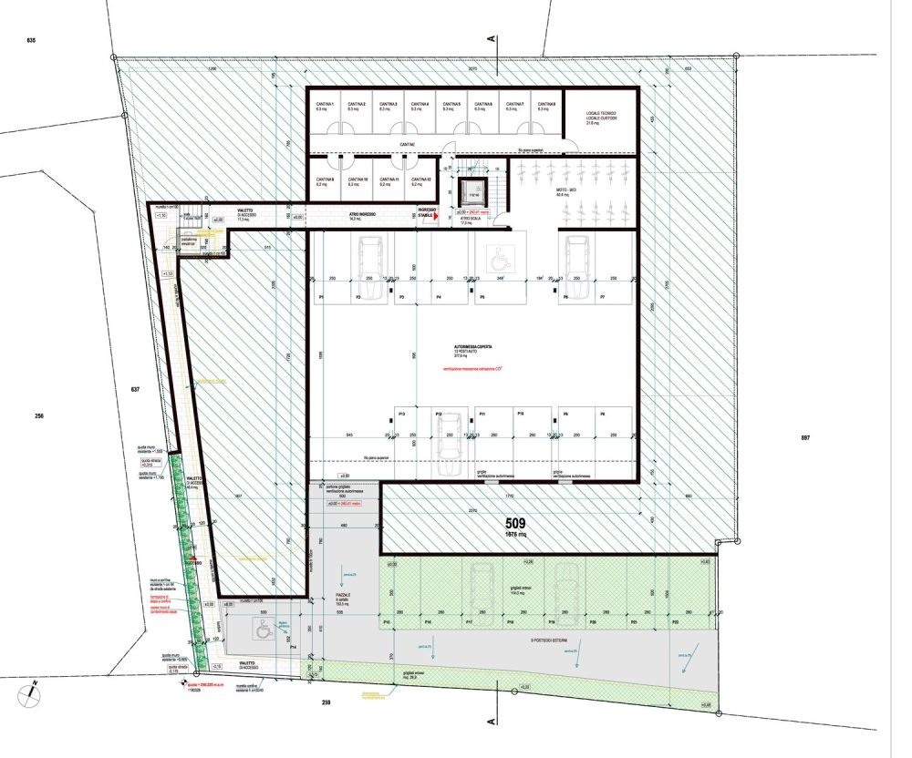
Al piano interrato della residenza si trovano l’autorimessa e le cantine, i posteggi esterni sono ubicati al piano terreno, che sono assegnati e già compresi nel prezzo.
L'appartamento 3 dispone di un posto auto coperto.

Kosten

Kaufpreis:
CHF 895'000

Angaben

Objektkategorie
Eigentum
Objektreferenz
e4571f04-c705-479c-bc93-68274ceeac7e
Adresse
Via ai Prati
PLZ/Ort
6514 Sementina
Region
Bellinzona
Wohnfläche
118 m²
Anzahl Zimmer
4.5
Etage
1
Baujahr
2026

Merkmale und Ausstattung

Balkon
Kabelfernsehen
Lift
Garage
Schöne Aussicht
Parkplatz
Kinderfreundlich
Rollstuhlgängig

Kontakt

Claudio Falcetti
  • Claudio Falcetti
  • L'Idea Immobiliare SA
  • gibt Ihnen gerne Auskunft.
  • Nummer Anzeigen

Auch inseriert auf:

homegate.ch