Wohnobjekt

NUOVO 3.5 LOCALI IN COSTRUZIONE CON TERRAZZA A RIVERA

CHF 590'000

 | 

70 m²

 | 

3.5 Zimmer

6802 Rivera

NUOVO 3.5 LOCALI IN COSTRUZIONE CON TERRAZZA A RIVERA - Karte
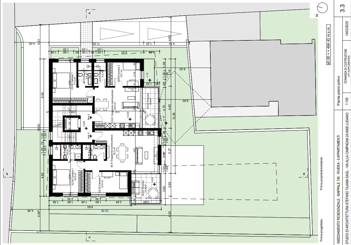
Proponiamo in una palazzina di sole 5 unità, un moderno appartamento di 3.5 locali su progetto e consegna prevista per l’estate 2027, pensato per offrire comfort, funzionalità e tecnologie all’avanguardia a pochi passi dai principali servizi nello strategico comune di Rivera a soli 15 minuti d’auto da Lugano e a 10 da Bellinzona e prossimo ai principali servizi.L’appartamento, situato al primo piano, gode di una superficie lorda di 84 mq ed è dotato di una piacevole terrazza di 11.6 mq, accessibile direttamente dal soggiorno.La distribuzione interna della zona notte è studiata per garantire praticità e privacy:Camera matrimoniale con bagno en-suite finestrato, completo di lavandino doppio, bidet e doccia. Arricchisce questo spazio la possibilità di installare la lavatrice.Camera singola, servita dal secondo bagno dotato di lavabo doppio e doccia. L’immobile si distingue per finiture di pregio e materiali di prima scelta. Le tapparelle elettriche assicurano comfort e privacy, mentre l’impianto di riscaldamento a termopompa con serpentine a pavimento garantisce un clima ideale tutto l’anno: le serpentine funzionano sia per il riscaldamento invernale sia per il raffrescamento estivo, assicurando un’elevata efficienza energetica.L’edificio è inoltre dotato di pannelli solari, a ulteriore vantaggio della sostenibilità e del contenimento dei consumi.La posizione strategica di Rivera offre un perfetto equilibrio tra tranquillità e ottimi collegamenti, rendendo questa proprietà la scelta ideale per chi desidera un’abitazione moderna, efficiente e ben organizzata, in un contesto residenziale di qualità.Posteggi (non inclusi nel prezzo di vendita):- Parcheggio doppio in autorimessa: CHF 60’000- Parcheggio singolo in autorimessa: CHF 45’000- Possibilità di parcheggio esterno: CHF 20’000Nello stesso stabile sono inoltre disponibili altri tre appartamenti di 4.5 e 3.5 locali a partire da CHF 530’000. Per maggiori informazioni non esitate a contattarci.NS/17151

Kosten

Kaufpreis:
CHF 590'000

Angaben

Objektkategorie
Eigentum
Objektreferenz
b4c11260-2689-4fdd-9562-ffb4f0869f90
PLZ/Ort
6802 Rivera
Region
Lugano
Wohnfläche
70 m²
Anzahl Zimmer
3.5
Etage
1
Baujahr
2027

Merkmale und Ausstattung

Balkon

Kontakt

  • METROPOLIS MPV Real Estate Sagl
  • Via Cantonale 43, 6928, Manno
  • Nummer Anzeigen

Auch inseriert auf:

homegate.ch