Wohnobjekt

PPP1-2.5 locali-grande giardino privato e piscina

CHF 548'400

 | 

76 m²

 | 

2.5 Zimmer

Via Pianasci 3, 6572 Quartino

PPP1-2.5 locali-grande giardino privato e piscina - Karte
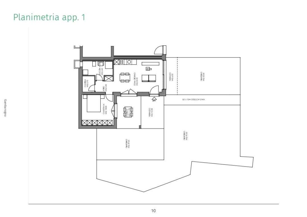
Solo residenza primariaA Quartino-Gambarogno proponiamo nuovo Residence in costruzione di soli 9 appartamenti in un contesto tranquillo e soleggiato con grandi spazi verdi, piscina esterna e zona fitness per i residenti.Ogni unità avrà un terrazzo a disposizione e sarà inserita in contesto architettonico di assoluto valore, le finiture saranno di ottima qualità e avranno la possibilità di essere personalizzate dai futuri proprietari.Unità nr. 1 al PT di 2.5 locali:- Accesso diretto dal giardino con entrata indipendente;- Soggiorno open-space con cucina a vista e uscita diretta sul portico;- Camera da letto con uscita sul portico;- Bagno con doccia e colonna lavasciuga;- Deposito/cantina direttamente nell'appartamento;- Terrazzo e grande giardino privato;Parcheggi esterni chf 15'000.- cadaunoConsegna primavera 2026 - Personalizzabile

Kosten

Kaufpreis:
CHF 548'400

Angaben

Objektkategorie
Eigentum
Objektreferenz
92f322f2-1d9b-49dd-8110-30eee28948d3
Adresse
Via Pianasci 3
PLZ/Ort
6572 Quartino
Region
Locarno
Wohnfläche
76 m²
Grundstücksfläche
195 m²
Anzahl Zimmer
2.5
Etage
EG
Baujahr
2025

Merkmale und Ausstattung

Lift
Parkplatz

Kontakt

  • 3B Real Estate Sagl
  • Piazzetta San Carlo 2, 6900, Lugano
  • Nummer Anzeigen

Auch inseriert auf:

homegate.ch