Wohnobjekt

NUOVA COSTRUZIONE A FAIDO  CASA UNIFAMILIARE 4,5 LOCALI CON GIARDINO E VISTA MONTAGNA

CHF 668'000

 | 

142 m²

 | 

4.5 Zimmer

6763 Osco

NUOVA COSTRUZIONE A FAIDO  CASA UNIFAMILIARE 4,5 LOCALI CON GIARDINO E VISTA MONTAGNA - Karte
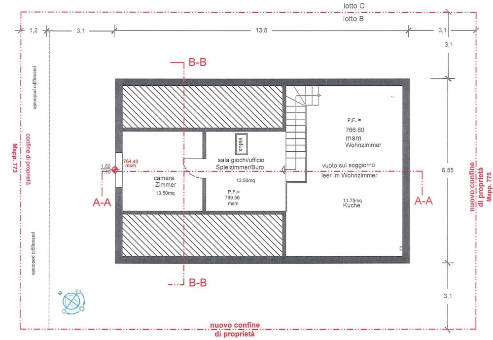
Allinterno di una nuova operazione immobiliare composta da sole tre unità abitative, proponiamo in vendita una casa unifamiliare indipendente, con consegna prevista entro fine 2025.
Ogni abitazione disporrà di posteggi esterni di proprietà e sarà garantita una distanza di oltre 6 metri tra le proprietà, a tutela della privacy e della qualità dellabitare.
La proprietà, (LOTTO A) immersa nel verde e con ottima esposizione solare, offre una splendida vista aperta sulla montagna, ed è perfetta per famiglie o come investimento di valore.
Questa offerta properti si contraddistingue per:
" Superficie abitabile al piano terra di circa 115 m²
" Ampio soggiorno con cucina open space doppia altezza
" Tre camere da letto
" Due bagni completi con lavanderia
" Locale tecnico
" Comoda scala interna che conduce al piano superiore
" Piano mansardato di circa 27 m² con due locali supplementari (studio, area relax, o ulteriori camere)
" Giardino privato
" Due posti auto esterni di proprietà
Optional disponibile: con un supplemento, possibilità di creare una unità abitativa indipendente con seconda cucina, camera e bagno, ideale per ospiti, affitto o nucleo familiare esteso.
Standard costruttivo:
" Edilizia tradizionale di qualità
" Impianto fotovoltaico incluso
" Pompa di calore con riscaldamento a pavimento
Posizione strategica:
" A pochi minuti da stazione ferroviaria e fermata bus
" Uscita autostradale facilmente raggiungibile
" Servizi nelle vicinanze: ospedale, poste, supermercati, banche, scuole medie e superiori
Unopportunità unica per vivere o investire in una zona tranquilla ma ben collegata, circondata dalla natura e da tutti i comfort moderni.
Contattaci per maggiori informazioni e per visionare il progetto!
Avete anche voi un immobile da commercializzare? Offriamo condizioni eque e trasparenti!

Kosten

Kaufpreis:
CHF 668'000

Angaben

Objektkategorie
Eigentum
Objektreferenz
9592e12d-818c-4bf4-bb03-5a73e197dc98
PLZ/Ort
6763 Osco
Region
Distretto di Leventina
Wohnfläche
142 m²
Grundstücksfläche
350 m²
Anzahl Zimmer
4.5
Etage
EG
Baujahr
2025

Merkmale und Ausstattung

Haustiere erlaubt
Parkplatz

Kontakt

Rosa Maria Giannini
  • Rosa Maria Giannini
  • Properti AG
  • gibt Ihnen gerne Auskunft.
  • Nummer Anzeigen

Auch inseriert auf:

homegate.ch