Wohnobjekt

NEUBAU IN FAIDO - EINFAMILIENHAUS MIT 4,5 ZIMMERN, GARTEN UND BERGBLICK

CHF 668'000

 | 

142 m²

 | 

4.5 Zimmer

6763 Osco

NEUBAU IN FAIDO - EINFAMILIENHAUS MIT 4,5 ZIMMERN, GARTEN UND BERGBLICK - Karte
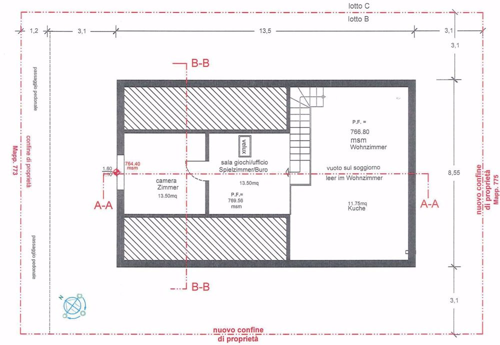
Im Rahmen eines neuen Wohnbauprojekts, das aus nur drei Wohneinheiten besteht, bieten wir ein einzelnes, unabhängiges Einfamilienhaus zur Verkauf, mit einer geplanten Fertigstellung bis Ende 2025. Jedes Wohnhaus verfügt über eigene Außenparkplätze und eine Garantie für einen Abstand von über 6 Metern zwischen den Eigentumswohnungen, um die Privatsphäre und die Wohnqualität zu schützen. Das Grundstück, (LOTT B) eingebettet in die Natur und mit optimaler Sonneneinstrahlung, bietet eine atemberaubende Aussicht auf die Berge und ist ideal für Familien oder als Wertinvestition. Dieses Angebot zeichnet sich durch folgende Merkmale aus: " Wohnfläche im Erdgeschoss von ca. 115 m² " Großes Wohnzimmer mit offener Küche und Doppelhohe " Drei Schlafzimmer " Zwei vollständige Badezimmer mit Waschküche " Technikraum " Bequeme Innentreppe, die zum Obergeschoss führt " Dachgeschoss von ca. 27 m² mit zwei zusätzlichen Räumen (Studium, Entspannungsbereich oder weitere Schlafzimmer) " Privater Garten " Zwei Außenparkplätze in Eigentum Optional verfügbar: Mit einem Aufpreis ist es möglich, eine unabhängige Wohneinheit mit zweiter Küche, Schlafzimmer und Bad zu schaffen, ideal für Gäste, Vermietung oder erweiterte Familien. Baustandard: " Traditionelle, hochwertige Bauweise " Photovoltaikanlage inklusive " Wärmepumpe mit Fußbodenheizung Strategische Lage: " Ein paar Minuten von der Bahnhof und Bushaltestelle entfernt " Autobahnausfahrt leicht erreichbar " Dienstleistungen in der Nähe: Krankenhaus, Post, Supermärkte, Banken, Mittel- und Oberstufenschulen Ein einzigartiges Angebot, um in einer ruhigen, aber gut verbundenen Gegend zu leben oder zu investieren, umgeben von der Natur und allen modernen Annehmlichkeiten. Kontaktieren Sie uns für weitere Informationen und um das Projekt zu besichtigen! Haben Sie auch ein Immobilienobjekt zum Verkaufen? Wir bieten faire und transparente Bedingungen!

Kosten

Kaufpreis:
CHF 668'000

Angaben

Objektkategorie
Eigentum
Objektreferenz
78c991e4-924b-468f-8680-3522d78fb942
PLZ/Ort
6763 Osco
Region
Distretto di Leventina
Wohnfläche
142 m²
Grundstücksfläche
350 m²
Anzahl Zimmer
4.5
Etage
EG
Baujahr
2025

Merkmale und Ausstattung

Haustiere erlaubt

Kontakt

  • Properti AG
  • Flurstrasse 62, 8048, Zürich
  • Nummer Anzeigen

Auch inseriert auf:

homegate.ch