Kaufen
Mieten
Premium-Abo
FAQ
Inserieren
Anbieter
Immobilien Ratgeber
Testimonials & Referenzen
Marketing
Newsletter anmelden
Jetzt Anmelden!
Kontakt
Über uns
AGB
Kaufen
Mieten
Premium-Abo
FAQ
Inserieren
Mehr..
Anbieter
Immobilien Ratgeber
Testimonials & Referenzen
Marketing
Newsletter anmelden
Merkliste
Anmelden
Anmelden
Passwort vergessen?
Benutzername oder E-Mail-Adresse
Passwort
Angemeldet bleiben
Anmelden
Noch nicht registriert?
Kostenlos registrieren und Suchprofil erstellen
Als Immobilien-Anbieter registrieren
Mein Konto
Meine Suchprofile
Einstellungen
Premium Abonnement
Hilfebereich
Logout
Exklusiv Recherchiert
Publiziert am 21.10.2025.
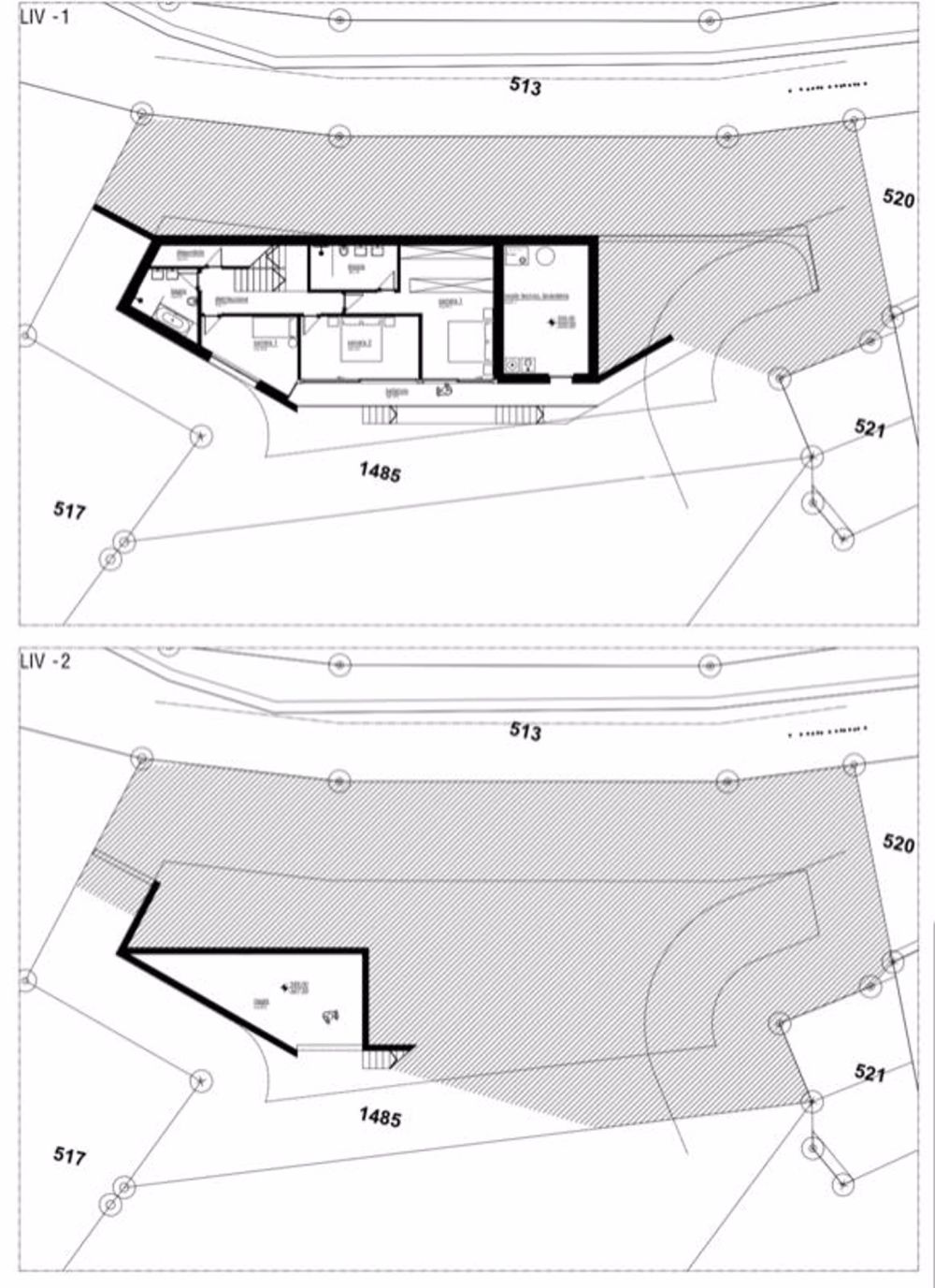
Wohnobjekt
Neue Moderne 4.5 Zimmer-Haus in Ronchini Maggiatal
CHF
1'150'000
|
160
m
²
|
4.5
Zimmer
Kontakt
Auch inseriert auf:
urbanhome.ch
6673 Maggia
Karte anzeigen
Karte vergrössern
4.5 Zimmer Villa
Mehr Text sehen
Kosten
Kaufpreis:
CHF 1'150'000
Angaben
Objektkategorie
Eigentum
Objektreferenz
72cf62c3-761a-48c7-8577-7b6449ed0c9d
PLZ/Ort
6673
Maggia
Region
Distretto di Vallemaggia
Wohnfläche
160 m²
Anzahl Zimmer
4.5
Baujahr
2026
Kontakt
Auch inseriert auf:
urbanhome.ch
Ihre letzten Ansichten