Wohnobjekt

Nuovo Progetto residenziale Mirador in Via Tesserete

CHF 3'980'000

 | 

175 m²

 | 

4.5 Zimmer

Via Tesserete 64, 6900 Lugano

Nuovo Progetto residenziale Mirador in Via Tesserete - Karte
WWW.RESIDENZAMIRADOR.CH
La Residenza Mirador è il nuovo progetto architettonico-residenziale della NOCASA Baumanagement AG in collaborazione con lo Studio Mino Caggiula Architects. La consegna è prevista entro marzo 2024.
La residenza sorgerà a Lugano, in Via Tesserete 66, in un terreno terrazzato su 8 livelli per un totale di 44 appartamenti di varie tipologie: 2.5, 3.5 e 4.5 locali con una superficie commerciale da ca 80 m2 fino a 272 m2.
Un punto territoriale privilegiato, che permette di raggiungere facilmente ogni servizio ma al tempo stesso di essere integrati totalmente nella bellezza della natura che li circonda.
Gli appartamenti sono progettati per garantire un'apertura panoramica mozzafiato.
Questa residenza soddisfa le richieste dei clienti più esigenti, architettura ricercata, finiture di alto standing, prestigiose aree comuni, tra cui piscina interna ed esterna, SPA e una grande palestra.
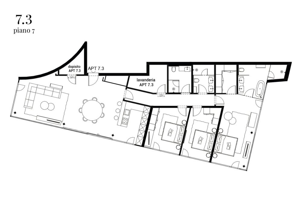
L’appartamento Nr. 7.3 è l'attico più bello e prestigioso della residenza posto al settimo piano e composto da 4.5 locali:
-ampia zona giorno con cucina a vista e grandi vetrate
-3 camere da letto
-3 bagni
- terrazza parzialmente coperta che circonda l'intero perimetro dell'appartamento
- lavanderia privata dentro l'appartamento
- cantina privata sullo stesso piano
I posti auto in garage sono acquistabili al prezzo di chf 65,000 cadauno.
Appartamento 7.3
superficie appartamento: 174,6 m2
terrazzo: 157 m2
giardino: 55,9 m2
cantina: 30,2 m2
superficie commerciale: 276,5 m2
Prezzo: chf 3`980`000

Verfügbarkeit

Bezugstermin:
1. April 2024

Kosten

Kaufpreis:
CHF 3'980'000

Angaben

Objektkategorie
Eigentum
Objektreferenz
35f67b1e-f89d-4beb-880e-abf2f107b11d
Adresse
Via Tesserete 64
PLZ/Ort
6900 Lugano
Region
Lugano
Wohnfläche
175 m²
Anzahl Zimmer
4.5
Etage
7
Baujahr
2024

Merkmale und Ausstattung

Balkon
Lift
Garage
Schöne Aussicht
Parkplatz
Kinderfreundlich
Minergie

Kontakt

Giulio Di Stefano
  • Giulio Di Stefano
  • Norbert Candinas AG
  • gibt Ihnen gerne Auskunft.
  • Nummer Anzeigen

Auch inseriert auf:

homegate.ch