Wohnobjekt

Bellissimo 3,5 Locali con grande Giardino presso la RESIDENZA MIRADOR

CHF 1'780'000

 | 

3.5 Zimmer

Via Tesserete 64, 6900 Lugano

Bellissimo 3,5 Locali con  grande Giardino presso la RESIDENZA MIRADOR - Karte
WWW.RESIDENZAMIRADOR.CH
La Residenza Mirador è il nuovo progetto architettonico-residenziale della NOCASA Baumanagement AG in collaborazione con lo Studio Mino Caggiula Architects. La consegna è prevista per autunno 2023.
La residenza sorgerà a Lugano, in Via Tesserete 66, in un terreno terrazzato su 8 livelli per un totale di 44 appartamenti di varie tipologie: 2.5, 3.5 e 4.5 locali con una superficie commerciale da ca 80 m2 fino a 272 m2.
Un punto territoriale privilegiato, che permette di raggiungere facilmente ogni servizio ma al tempo stesso di essere integrati totalmente nella bellezza della natura che li circonda.
Gli appartamenti sono progettati per garantire un'apertura panoramica mozzafiato.
Questa residenza soddisfa le richieste dei clienti più esigenti, architettura ricercata, finiture di alto standing, prestigiose aree comuni, tra cui piscina interna ed esterna, SPA e una grande palestra.
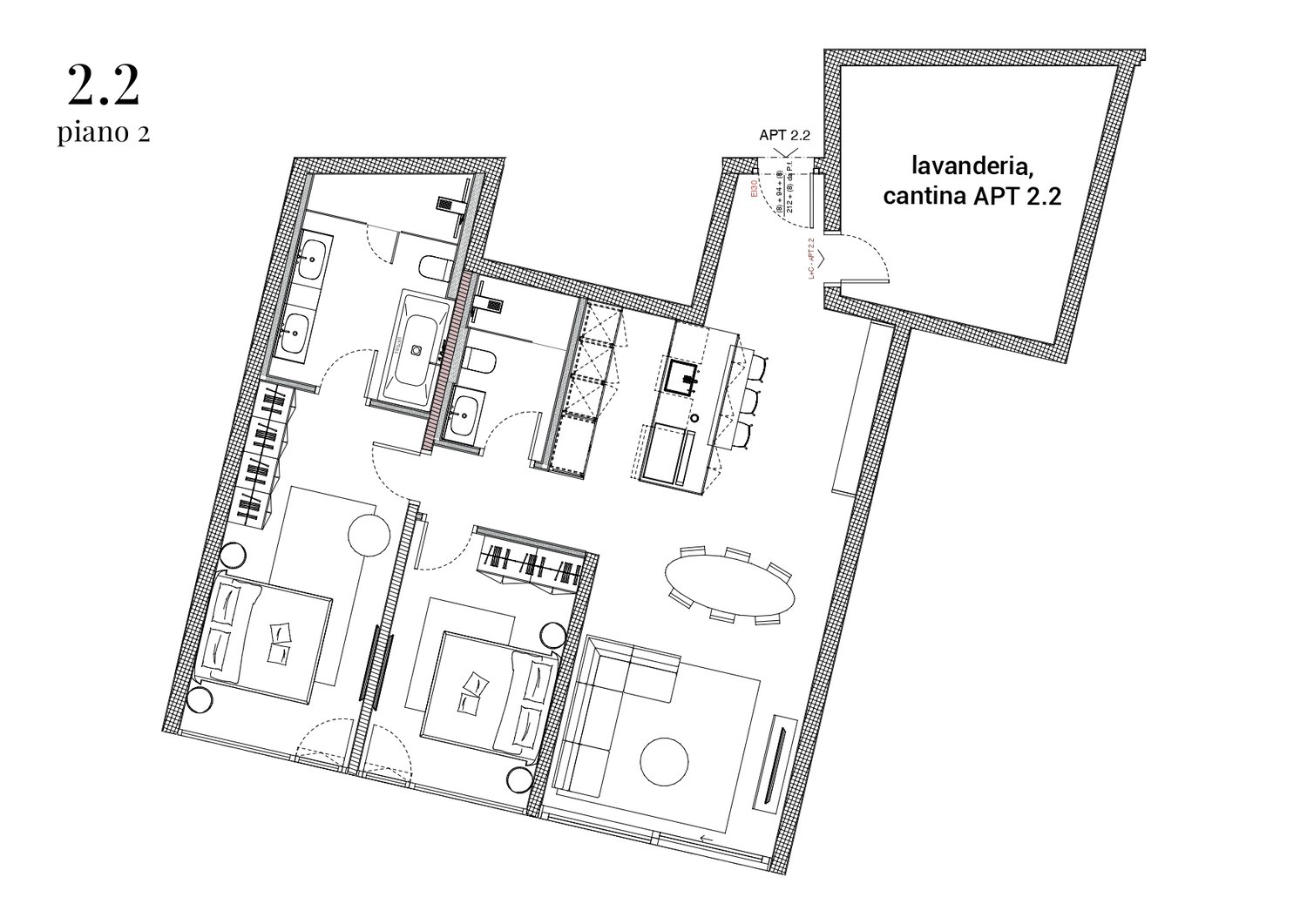
L’appartamento Nr. 2.2 posto al piano 2 della Residenza Mirador, è composto da 3.5 locali:
- ampia zona giorno con cucina a vista e grandi vetrate
- 2 camere da letto
- 2 bagni
- terrazza coperta
- grandissimo giardino frontale
- cantina con lavanderia privata dentro l'appartamento
I posti auto in garage sono acquistabili al prezzo di chf 65,000 cadauno.
Appartamento Nr. 2.2
appartamento: 123,9 m2
terrazzo: 102,2 m2
cantina: 17,6 m2
superficie commerciale: 182,1 m2

Kosten

Kaufpreis:
CHF 1'780'000

Angaben

Objektkategorie
Eigentum
Objektreferenz
c14b5aa1-f300-4cee-8080-bef9b30613a1
Adresse
Via Tesserete 64
PLZ/Ort
6900 Lugano
Region
Lugano
Anzahl Zimmer
3.5
Etage
2
Baujahr
2024

Merkmale und Ausstattung

Balkon
Lift
Garage
Schöne Aussicht
Parkplatz
Kinderfreundlich
Minergie

Kontakt

  • Norbert Candinas AG
  • Masanserstrasse 40, 7000, Chur
  • Nummer Anzeigen

Auch inseriert auf:

homegate.ch