Wohnobjekt

Attico in vendita a Lugano con Terrazza, Giardino e Vista Lago

CHF 2'808'000

 | 

188 m²

 | 

4.5 Zimmer

Via Tesserete 64, 6900 Lugano

Attico in vendita a Lugano con Terrazza, Giardino e Vista Lago - Karte
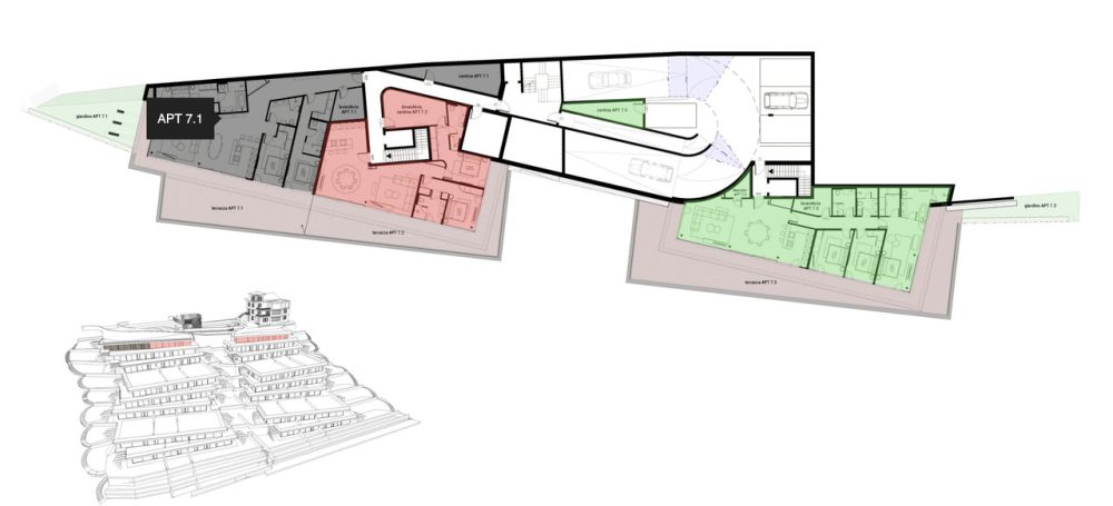
Lugano - Residenza Mirador | Elegante attico 4.5 locali con ampia terrazza panoramicaAll'interno della prestigiosa Residenza Mirador, in Via Tesserete 66 a Lugano, proponiamo in vendita un raffinato attico di 4.5 locali situato al 7° piano di un moderno complesso residenziale immerso nel verde.La residenza, sviluppata su più livelli terrazzati, gode di una posizione privilegiata che coniuga la comodità dei servizi cittadini con la tranquillità e la bellezza del contesto naturale circostante.La Residenza Mirador offre servizi esclusivi di alto standing, tra cui piscine interna ed esterna, area SPA e una moderna palestra, garantendo uno stile di vita di elevata qualità.L'appartamento 7.1 è un prestigioso attico della Residenza Mirador. Grazie alla posizione privilegiata, questo appartamento gode di una luminosità molto pronunciata e di una vista aperta spettacolare, sul lago e sulla montagna. La zona giorno è molto grande, con una moderna cucina a vista. La zona notte è composta da tre camere da letto con i rispettivi bagni. Lo spazio esterno può essere sfruttato grazie alla presenza di una bella terrazza e di un giardino. La comoda cantina al piano è un plus significativo per la vivibilità dell'appartamento.Posti auto in autorimessa disponibili al prezzo di CHF 65'000.- ciascuno.Una soluzione ideale per chi desidera vivere Lugano in un contesto esclusivo, con comfort, privacy e vista panoramica.Lugano - Residenza Mirador | Elegantes 4,5-Zimmer-Penthouse mit grosser TerrasseIn der prestigeträchtigen Residenza Mirador, in der Via Tesserete 66 in Lugano, bieten wir ein elegantes 4,5-Zimmer-Penthouse im 7. Stock eines modernen Wohnkomplexes, umgeben von Grün, zum Verkauf an.Stock einer modernen Wohnanlage im Grünen. Die Residenz, die sich über mehrere Terrassenebenen erstreckt, genießt eine privilegierte Lage, die die Bequemlichkeit der städtischen Dienstleistungen mit der Ruhe und Schönheit der umliegenden Natur verbindet.Die Mirador Residenz bietet exklusive Dienstleistungen von hohem Niveau, darunter Innen- und Außenschwimmbäder, einen SPA-Bereich und ein modernes Fitnessstudio, die einen hochwertigen Lebensstil garantieren.Die Wohnung 7.1 ist ein prestigeträchtiges Penthouse in der Mirador Residenz. Dank ihrer privilegierten Lage genießt diese Wohnung viel Licht und einen spektakulären Blick auf den See und die Berge. Der Wohnbereich ist sehr groß und verfügt über eine moderne offene Küche. Der Schlafbereich besteht aus drei Schlafzimmern mit ihren jeweiligen Badezimmern. Der Außenbereich kann dank einer schönen Terrasse und einem Garten genutzt werden.Der praktische Keller auf der Etage ist ein deutliches Plus für die Lebensqualität der Wohnung.Parkplätze in der Garage sind zu einem Preis von CHF 65'000 pro Stück verfügbar.Eine ideale Lösung für diejenigen, die in Lugano in einem exklusiven Rahmen leben möchten, mit Komfort, Privatsphäre und PanoramablickLugano - Residenza Mirador | Elegant 4.5-room penthouse with large panoramic terraceInside the prestigious Residenza Mirador, at Via Tesserete 66 in Lugano, we offer for sale a refined 4.5-room penthouse located on the 7th floor of a modern residential complex surrounded by greenery.The residence, developed on several terraced levels, enjoys a privileged location that combines the convenience of city services with the tranquility and beauty of the surrounding natural environment.The Mirador Residence offers exclusive services of high standing, including indoor and outdoor swimming pools, SPA area and a modern gymnasium, ensuring a high quality lifestyle.Apartment 7.1 is a prestigious penthouse at Mirador Residence. Due to its privileged location, this apartment enjoys very pronounced brightness and spectacular open views, of the lake and the mountain. The living area is very large, with a modern open kitchen. The sleeping area consists of three bedrooms with their respective bathrooms. The outdoor space can be exploited thanks to the...

Verfügbarkeit

Bezugstermin:
8. Februar 2026

Kosten

Kaufpreis:
CHF 2'808'000

Angaben

Objektkategorie
Eigentum
Objektreferenz
1c86e40e-8b27-403f-8593-d3176c206270
Adresse
Via Tesserete 64
PLZ/Ort
6900 Lugano
Region
Lugano
Wohnfläche
188 m²
Anzahl Zimmer
4.5
Etage
7
Baujahr
2024

Kontakt

  • Sequoia Consulting Sagl
  • Via Vedeggi 66b, 6983, Magliaso
  • Nummer Anzeigen

Auch inseriert auf:

homegate.ch