Wohnobjekt

Elegante 3.5-Zimmer-Wohnung in exklusivem Projekt - nur 8 Einheiten in Losone

CHF 985'000

 | 

102 m²

 | 

3.5 Zimmer

Via Ubrio, 6616 Losone

Elegante 3.5-Zimmer-Wohnung in exklusivem Projekt - nur 8 Einheiten in Losone - Karte
Losone Die Liegenschaft befindet sich in der Via Ubrio von Losone, unweit des Golfplatzes von Losone. In der nähe finden sich alle wichtigen Dienstleistungen (Einkaufszentren, Ärzte, Bushaltestellen, etc.). Das Grundstück stösst direkt an das nicht bebaubare Gebiet entlang des Flusses Maggia an. Der Hauseingang sowie die Garageneinfahrt befinden sich auf der Nordseite des Gebäudes, während die Loggien und Terrassen der Appartements mehrheitlich nach Süden ausgerichtet sind, um die natürliche Lichteinstrahlung maximal zu nutzen.
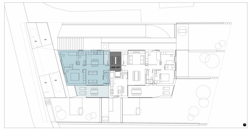
Elegante 3.5-Zimmer-Wohnung in exklusivem Projekt - nur 8 Einheiten in Losone Komfort und Design in einem einzigartigen Umfeld:Diese 3.5-Zimmer-Wohnung im 2. Obergeschoss in Losone bietet eine ideale Wohnlösung - sowohl als Erstwohnsitz wie auch als Feriendomizil. Eingebettet im Grünen und angrenzend an eine staatliche, nicht überbaubare Waldzone, zeichnet sich das Gebäude durch ein schlichtes, zeitgemässes Design aus. Süd- und ostseitig ausgerichtete Terrassen und Loggien sorgen für optimale natürliche Lichtverhältnisse.
Die Wohnung überzeugt mit einem grosszügigen Wohnbereich mit offenem Wohn- und Essraum sowie einer modernen Küche. Von hier aus gelangen Sie direkt auf die sonnige, grosszügige Terrasse mit schönem Blick ins Grüne, ideal für entspannte Stunden im Freien. Es stehen zwei Schlafzimmer zur Verfügung und zwei voll ausgestattete Badezimmer sowie ein internes Reduit/Waschraum bieten zusätzlichen Komfort und Funktionalität.Zur Einheit gehören zudem ein privater Parkplatz in der Tiefgarage sowie zwei Kellerabteile.
Das gesamte Gebäude ist auf hohen Wohnkomfort ausgelegt und verfügt über Bodenheizung und -kühlung, ein integriertes Entfeuchtungs- und Luftreinigungssystem sowie eine Vorbereitung für eine Wasseraufbereitungsanlage.
Die Liegenschaft ist in Massivbauweise (Stahlbeton) erstellt und innen wie aussen mit hochwertigen Materialien ausgestattet. Sie umfasst drei oberirdische Geschosse sowie ein ausgebautes Dachgeschoss unter dem Satteldach. Jede Einheit verfügt über eine überdachte Loggia oder grosszügige Aussen-Terrassen; die Erdgeschosswohnungen besitzen private Gärten. Die Überbauung bietet eine Tiefgarage mit Zufahrt über eine Wechselverkehrsrampe, vier Aussenparkplätze, überdachte Aussenbereiche für Fahrräder und einen multifunktionalen Gemeinschaftsgarten.Besonderes Augenmerk wurde auf Energieeffizienz und Wohnkomfort gelegt - unter anderem durch Photovoltaikmodule und moderne Gebäudetechnik, welche zu einem hohen Wohlfühlstandard beitragen. Ein Wohnkonzept, in dem sich architektonisches Design, Funktionalität und hochwertige Materialien harmonisch vereinen.
Preise für Parkplätze
Garagenparkplatz: CHF 40'000Aussenparkplatz: CHF 30'000Motorradplatz in der Garage: CHF 10'000Berechnung der Verkaufsfläche
Die Verkaufsfläche umfasst: die Bruttogeschossflächen (inkl. Innen- und Aussenwände), 50% der gedeckten Terrassen und Attikaterrassen, 33% der ungedeckten Terrassen, 10% der Gartenflächen sowie 20% der Kellerflächen.
HinweisDie gezeigten Bilder und Renderings dienen ausschliesslich Illustrationszwecken und sind nicht Bestandteil eines Vertrages.
Für weitere Wohn- und Gewerbeangebote besuchen Sie:
www.straciproperties.ch
[email protected]
Marialuisa Straci
Tel. +41 79 268 50 85

Kosten

Kaufpreis:
CHF 985'000

Angaben

Objektkategorie
Eigentum
Objektreferenz
6820b21f-7486-4c5c-a664-dc20dd2b6975
Adresse
Via Ubrio
PLZ/Ort
6616 Losone
Region
Locarno
Wohnfläche
102 m²
Anzahl Zimmer
3.5
Etage
2
Baujahr
2027

Merkmale und Ausstattung

Balkon
Lift
Garage
Parkplatz
Kinderfreundlich
Rollstuhlgängig

Kontakt

Marialuisa Straci
  • Marialuisa Straci
  • Straci Properties Sagl
  • gibt Ihnen gerne Auskunft.
  • Nummer Anzeigen

Auch inseriert auf:

homegate.ch