Wohnobjekt

Nuova casa unifamiliare

CHF 525'000

 | 

90 m²

 | 

4.5 Zimmer

Altirolo, 6745 Giornico

Nuova casa unifamiliare - Karte
Nuova costruzione di tre case unifamiliari - Il progetto prevede la realizzazione di tre case monofamiliari indipendenti con il proprio accesso veicolare/pedonale e giardino. La costruzione si trova nella frazione di Altirolo, un piccolo nucleo che si trova a pochi passi dal paese di Giornico. La posizione è molto tranquilla e la vista aperta su tutta la vallata.
La costruzione viene eseguita con l’uso di materiali di ottima qualità e con un’impiantistica moderna. Ogni casa è circondata da un bel giardino con una terrazza accessibile direttamente
dal soggiorno e della cucina. La proprietà dispone di un vano cantina spazioso e di due posteggi coperti facilmente accessibili dalla strada comunale.
Sono a sua disposizione e insieme al costruttore possiamo rispondere a tutte le vostre domande e accompagnarvi durante una visita sul cantiere.
Disponibile quale abitazione primaria
Informazione sull’immobile
Tipo dell’immobile: nuova costruz. di case monofamiliari
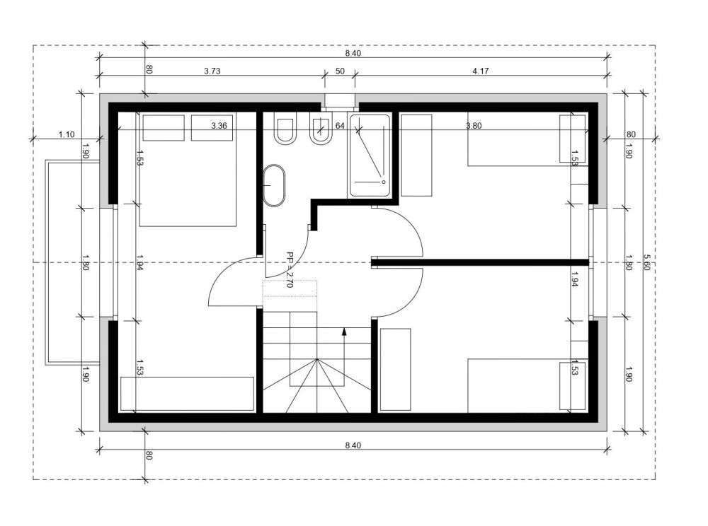
Superficie abitabile lorda: 94 m2 ca. Terreno: 200 m2 ca.
Giardino: 150 m2 ca. Anno di costruzione: 2024/2025 Piani: 2
Locali: 4,5
Bagni: 2
Pavimento zona giorno: Piastrelle
Pavimento zona notte: Piastrelle
Riscaldamento: Termopompa, serpentine a pavimento
Cantina: molto grande (ca. 15 m2) +Ripostiglio
Lavanderia: Si, in bagno
Posteggi: 2
Posizione: soleggiata e tranquilla
Scuole: nelle vicinanze
Negozi: In paese
Mezzi pubblici: Si
Distanza prossima città: Biasca, 9 km ca.
Distanza autostrada: Biasca 8 km ca.
------------------------------------------------------------------------------
Neubau von drei freistehenden Häusern - Das Projekt umfasst den Bau von drei freistehenden Einfamilienhäusern mit eigener Zufahrt und eigenem Garten. Der Bau befindet sich im Weiler Altirolo, einem kleinen Ortsteil, nur wenige Schritte vom Dorf Giornico entfernt. Die Lage ist sehr ruhig und der Blick ist offen auf das ganze Tal.
Der Bau wurde unter Verwendung hochwertiger Materialien und moderner Anlagentechnik ausgeführt. Jedes Haus ist umgeben von einem schönen Garten mit einer Terrasse, die direkt vom Wohnzimmer und der Küche aus zugänglich sind.
Das Anwesen verfügt über einen geräumigen Kellerraum und zwei gedeckten Parkplätze, die von der Gemeindestraße aus leicht zugänglich sind.
Ich stehe Ihnen gerne zur Verfügung und zusammen mit dem Bauträger können wir alle Ihre Fragen beantworten. Gerne begleiten wir Sie auf einer Besichtigung vor Ort.
Erstwohnsitz
Objektangaben
Objekttyp: Neubau von Einfamilienhäuser
Bruttowohnfläche: 94 m2 ca.. Grundstück: 200 m2 ca.
Garten: 150 m2 ca.
Baujahr: 2024/2025
Geschosse: 2
Zimmer: von 4,5 Bäder: 2
Bodenbelag Wohnbereich: Keramikplatten
Bodenbelag Schlafbereich: Keramikplatten
Heizung: Wärmepumpe, Bodenheizung
Keller: Ja, gross (ca. 15 m2) + Abstellraum
Waschküche: Ja, im Bad
Parkplätze: 2
Lage: sonnig und ruhig
Schulen: In der Nähe
Einkaufsmöglichkeiten: In der Nähe
Oeff. Verkehrsmittel: Ja
Distanz zur nächsten Stadt: Biasca, 9 km ca..
Distanz zur Autobahn: Biasca 8 km ca.

Kosten

Kaufpreis:
CHF 525'000

Angaben

Objektkategorie
Eigentum
Objektreferenz
6d85d2c0-415f-4e48-8d44-968d4c596be1
Adresse
Altirolo
PLZ/Ort
6745 Giornico
Region
Distretto di Leventina
Wohnfläche
90 m²
Grundstücksfläche
200 m²
Anzahl Zimmer
4.5
Baujahr
2025

Merkmale und Ausstattung

Balkon
Schöne Aussicht
Parkplatz

Kontakt

Fiorenza De Savelli
  • Fiorenza De Savelli
  • Immocasa Inn Sagl
  • gibt Ihnen gerne Auskunft.
  • Nummer Anzeigen

Auch inseriert auf:

homegate.ch