Wohnobjekt

Wohnung mit 1,5 Zimmern von 43 m², 14 m² Portikus und 36 m² Garten im 1. Stock

CHF 350'000

 | 

43 m²

 | 

1.5 Zimmer

Via Sirana 11, 6814 Lamone

Wohnung mit 1,5 Zimmern von 43 m², 14 m² Portikus und 36 m² Garten im 1. Stock - Karte
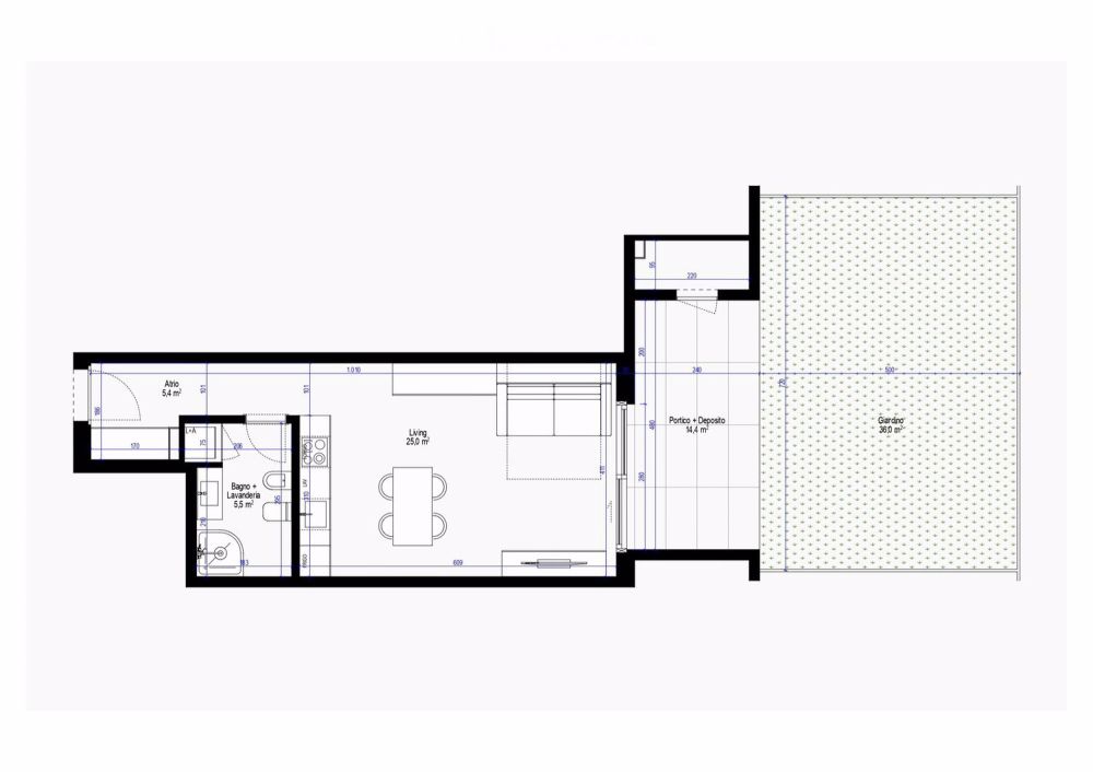
Im Neubau bieten wir eine Wohnung mit 1,5 Zimmern (43 m2), 14 m2 Portikus und 36 m2 Garten im ersten Stock an. Das Gebäude befindet sich in Lamone in der Nähe des Ortskerns, im Wohngebiet, am Anfang der Via Sirana. Ein paar hundert Meter entfernt befinden sich die neue Kindergartenschule und die Grundschule. Lamone ist gut mit öffentlichen Verkehrsmitteln erschlossen, mit dem intermodalen Bahnhof (FFS, Bus, Autopostale und ATP) und im Ort gibt es Geschäfte, Postamt, Apotheken und in kurzer Entfernung mehrere Supermärkte. Die Residenz erstreckt sich über drei Etagen, ein halbunterirdisches Geschoss mit Garage und Kellern und 2 Etagen mit 6 Wohnungen. Im ersten Stock 3 Wohnungen mit Garten und im zweiten und letzten Stock weitere 3 Wohnungen. Besondere Sorgfalt wurde auf das ästhetische und architektonische Erscheinungsbild der Fassaden gelegt, mit der Verwendung von weißem Beton und Einlagen aus hellem Naturstein. Die Heiz- und Kühlanlage, über Fußbodenheizungen, wird von einer Luft-Wasser-Wärmepumpe gespeist. Das Dach ist flach mit einer großen Photovoltaikanlage (76 Panels), die einen extrem niedrigen Energieverbrauch gewährleistet. Die Ausstattung der Wohnungen (Küche, Sanitärgeräte, Fußböden und Beläge) ist frei wählbar und im Verkaufspreis für einen Betrag von Fr. 35'000 enthalten. Im angegebenen Preis ist eine Kellerwohnung mit Fenster von 6 m2 im halbunterirdischen Geschoss inbegriffen. Verfügbarkeit von internen Boxen mit 3 Metern Breite für Fr. 55'000 und externen Parkplätzen für Fr. 25'000. Bitte Makler entschuldigen. Danke.

Verfügbarkeit

Verfügbar ab:
31. Oktober 2026

Kosten

Kaufpreis:
CHF 350'000

Angaben

Objektkategorie
Eigentum
Objektreferenz
8747ffac-6228-4f2b-869c-ba59aa831f9d
Adresse
Via Sirana 11
PLZ/Ort
6814 Lamone
Region
Lugano
Wohnfläche
43 m²
Anzahl Zimmer
1.5
Etage
1
Baujahr
2026

Merkmale und Ausstattung

Balkon
Kabelfernsehen
Lift
Garage
Kinderfreundlich
Rollstuhlgängig

Kontakt

  • Nummer Anzeigen

Auch inseriert auf:

homegate.ch