Wohnobjekt

Appartamento 2.5 locali al 3P

CHF 440'000

 | 

53 m²

 | 

2.5 Zimmer

6512 Giubiasco

Appartamento 2.5 locali al 3P - Karte
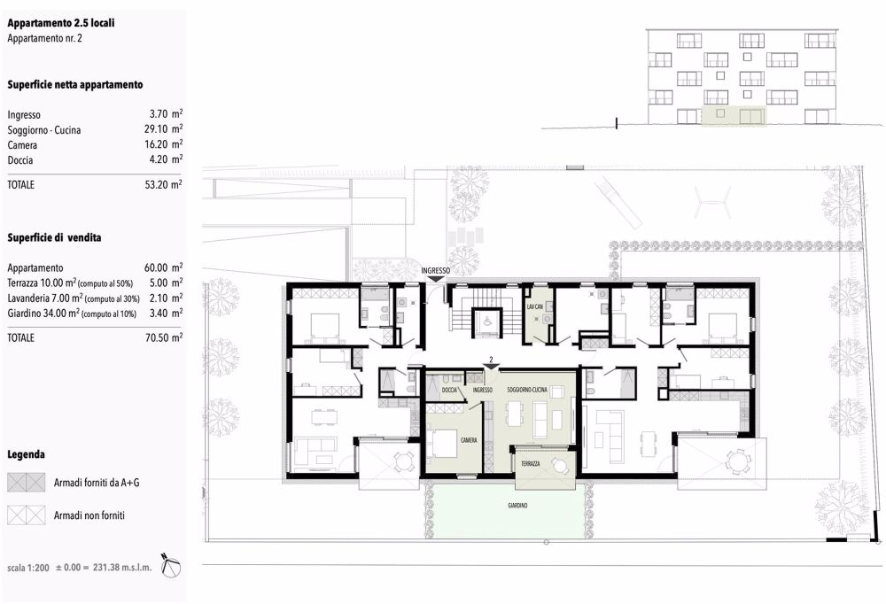
Piacevole appartamento di 2.5 locali dalle dimensioni generose, luminoso, ottime le finiture, la produzione di calore avviene tramite termopompa acqua-acqua, così come il raffrescamento, impianto elettrico KNX con tende da sole e lamelle motorizzate. Locale lavanderia privato sul piano, incluso di lavabo e colonna lava - asciuga. A soli 5 minuti a piedi dal centro, permette di raggiungere rapidamente, a piedi o in macchina, tutti i servizi, le scuole, i centri commerciali, la stazione ferroviaria, i collegamenti autostradali e le zone verdi per lo svago e lo sport. Attualmente affittato, ottimo anche come investimento! CHF 35'000.00 Posteggio in autorimessa + CHF 15'000.00 posteggio esterno.

Kosten

Kaufpreis:
CHF 440'000

Angaben

Objektkategorie
Eigentum
Objektreferenz
d633da8f-3931-41c1-85a9-fb2f08929973
PLZ/Ort
6512 Giubiasco
Region
Bellinzona
Wohnfläche
53 m²
Grundstücksfläche
34 m²
Anzahl Zimmer
2.5
Etage
3
Baujahr
2024

Merkmale und Ausstattung

Haustiere erlaubt
Balkon
Kabelfernsehen
Lift
Garage
Schöne Aussicht
Kinderfreundlich
Rollstuhlgängig

Kontakt

  • Immoprogramm SA
  • Viale Stazione 4, 6500, Bellinzona
  • Nummer Anzeigen

Auch inseriert auf:

homegate.ch