Wohnobjekt

Residenza di pregio a Comano, Vendesi Appartamento 3.5 locali 1Piano

CHF 1'550'000

 | 

110 m²

 | 

3 Zimmer

via nasora, 6949 Comano

Residenza di pregio a Comano, Vendesi Appartamento 3.5 locali 1Piano - Karte
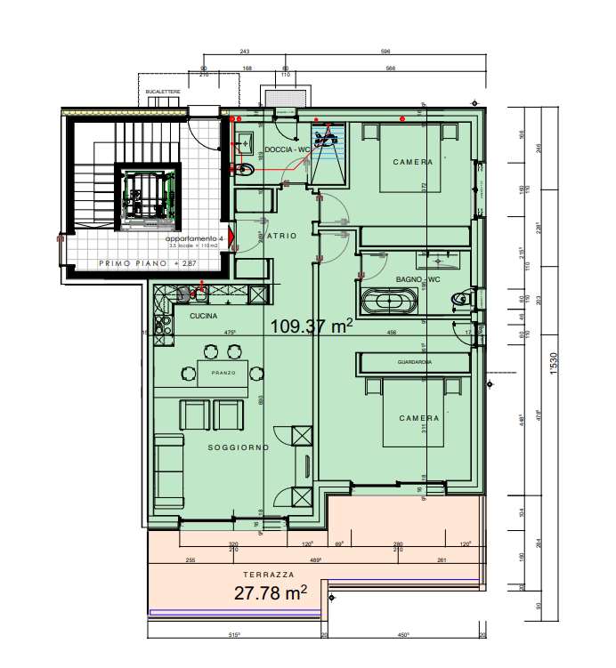
Comano è un comune residenziale molto apprezzato situato a pochi minuti dal centro di Lugano, immerso nel verde e caratterizzato da una qualità della vita elevata. La zona è tranquilla, ben servita e ideale per famiglie, professionisti e chi cerca un contesto sicuro e rilassante, senza allontanarsi troppo dalla città. Grazie alla sua posizione collinare, molte proprietà godono di una splendida vista panoramica sul lago e sulle montagne. Proponiamo in vendita un appartamento al Primo Piano di una residenza di nuova costruzione a Comano, consegna prevista per primavera 2028.L'appartamento dispone di due camere da letto, una zona giorno con cucina a vista. Presenti due bagni, di cui uno con vasca e l'altro con doccia.Personalizzabile su richiesta.Parziale Vista LagoAmpia terrazzaInclusi nel prezzo:- 2 posti auto in autorimessa- 1 locale cantina privato Specifiche: Impianto di riscaldamento: Pompa di calorePredisposizione per aria condizionataPredisposizione colonna lavasciugaPossibilità di residenza secondariaPer maggiori informazioni contattare Niccolò Debernardis 079 814 45 44 oppure tramite mail [email protected]

Kosten

Kaufpreis:
CHF 1'550'000

Angaben

Objektkategorie
Eigentum
Objektreferenz
cd98c82f-5d30-417e-ba31-d34185274ead
Adresse
via nasora
PLZ/Ort
6949 Comano
Region
Lugano
Wohnfläche
110 m²
Grundstücksfläche
68 m²
Anzahl Zimmer
3
Etage
1

Merkmale und Ausstattung

Lift
Parkplatz

Kontakt

  • Zenit Real Estate Sagl
  • Via S. Balestra 12, 6900, Lugano
  • Nummer Anzeigen

Auch inseriert auf:

homegate.ch