Wohnobjekt

Consegna a breve – La tua nuova casa sostenibile a Caslano, a due passi dal lungolago

CHF 790'000

 | 

97 m²

 | 

3.5 Zimmer

Via Golf 15, 6987 Caslano

Consegna a breve – La tua nuova casa sostenibile a Caslano, a due passi dal lungolago - Karte
Fine Cantiere - Consegna Primavera 2026
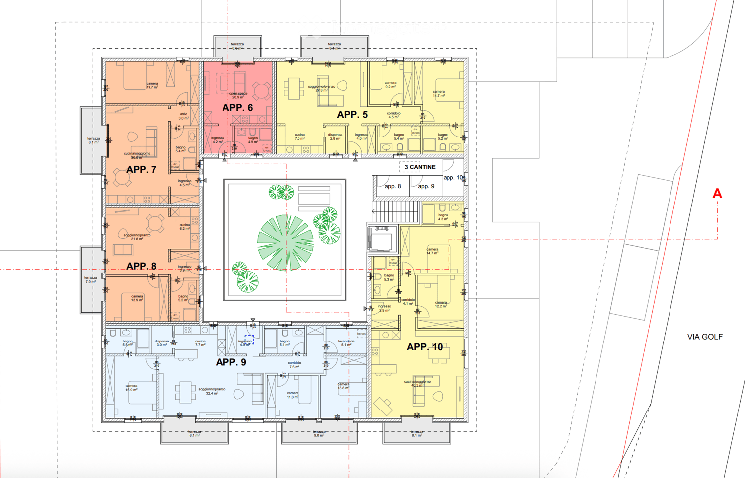
A due passi dal lungolago di Caslano realizziamo la Residenza ’’Villa Oasi’’ con 10 appartamenti di alto standing. Unico nel suo genere con possibilità di residenza primaria e secondaria.
Il cantiere è già in fase avanzata
Ultimi 5 Appartamenti in vendita
Appartamenti con terrazza
1.5 / 2.5 / 3.5 / 4.5 Locali
36.9 / 133.6 mq
Consegna primavera 2026
Sostenibilità a 360°: Struttura in legno e impianto fotovoltaico
Il terreno è situato in una posizione tranquilla e strategica in quanto in pochi minuti si raggiunge il nucleo, il lungolago, i negozi, la stazione e il Golf Club di Lugano.
--
Progettazione
Studio d'architettura Middeke & Associati
--
Maggiori dettagli e brochure completa si trovano in allegato nel documento PDF. Con piacere rimaniamo a vostra disposizione per ulteriori informazioni. Wir beraten Sie gerne auch auf Deutsch.
--
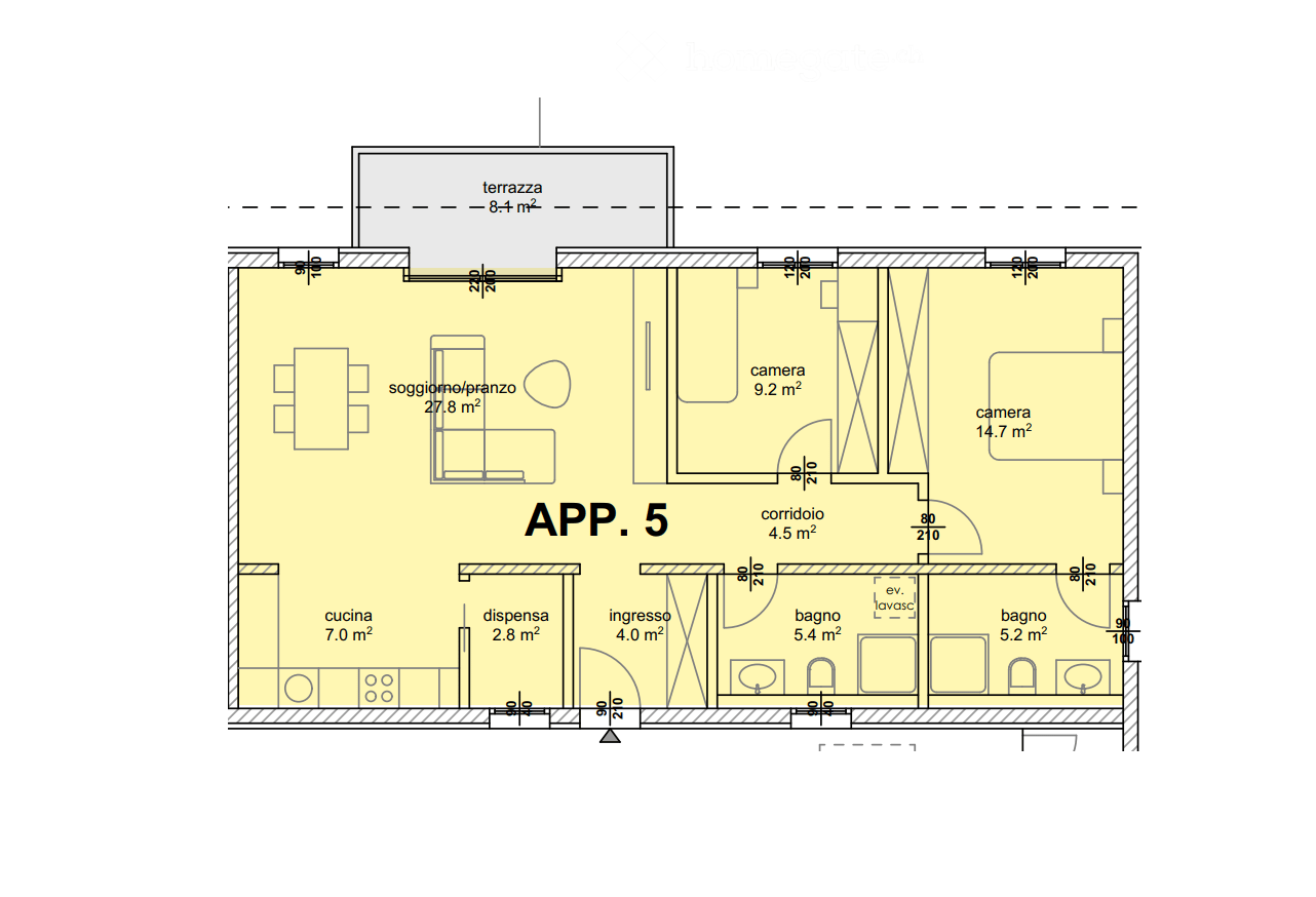
Appartamento presentato:
APPARTAMENTO 05 - Residenza primaria
Primo Piano - 3 1⁄2 locali - 105 ‰
Superficie utile lorda appartamento 97.80 mq
Terrazza 9.60 mq
Sup. netta appartamento 81.30 mq
--
Residenza primaria e secondaria
Unico nel suo genere a Caslano realizziamo una nuova costruzione di alto standing. Gli appartamenti in vendita sono disponibili per residenza primaria e secondaria, ideale anche per interessati che risiedono al di fuori del Canton Ticino.
Modifiche personalizzate possibili
Sono possibili adattamenti di varia natura che permettono la soddisfazione di cambiamenti estetici dentro le proprie future mura oppure esigenze essenziali come l’accessibilità all’interno degli appartamenti in età avanzata.
Sostenibilità a 360°
L’intero progetto si basa su materiali e funzionalità sostenibili e rispettose verso l’ambiente. La costruzione su due piani viene realizzata in legno e l’approvvigionamento energetico della termopompa viene supportata dall’energia prodotta da un impianto fotovoltaico installato sul tetto piano.
Servizi aggiuntivi
Grazie alla vicinanza ad una rinomata struttura per anziani a Magliaso vi è la possibilità di usufruire vari servizi a domicilio in completa comodità e semplicità.

Verfügbarkeit

Bezugstermin:
1. Mai 2026

Kosten

Kaufpreis:
CHF 790'000

Angaben

Objektkategorie
Eigentum
Objektreferenz
1b165d0a-5f0c-4844-91fc-4e571550cd2f
Adresse
Via Golf 15
PLZ/Ort
6987 Caslano
Region
Lugano
Wohnfläche
97 m²
Anzahl Zimmer
3.5
Etage
1
Baujahr
2025

Merkmale und Ausstattung

Balkon
Lift
Schöne Aussicht
Parkplatz
Kinderfreundlich
Rollstuhlgängig
Minergie

Kontakt

Middeke
  • Middeke
  • gibt Ihnen gerne Auskunft.
  • Nummer Anzeigen

Auch inseriert auf:

homegate.ch