Wohnobjekt

Villetta indipendente in prossima edificazione a Cadenazzo in nuovo complesso residenziale

CHF 800'000

 | 

5 Zimmer

6593 Cadenazzo

Villetta indipendente in prossima edificazione a Cadenazzo in nuovo complesso residenziale - Karte
In un contesto pittoresco nel Canton Ticino e nella ambita regione di Cadenazzo si trova questa accogliente casa unifamiliare, perfetta per famiglie o coppie.
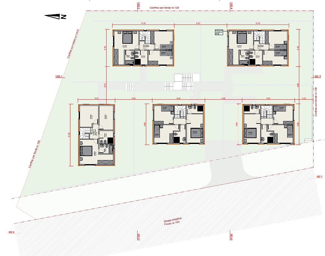
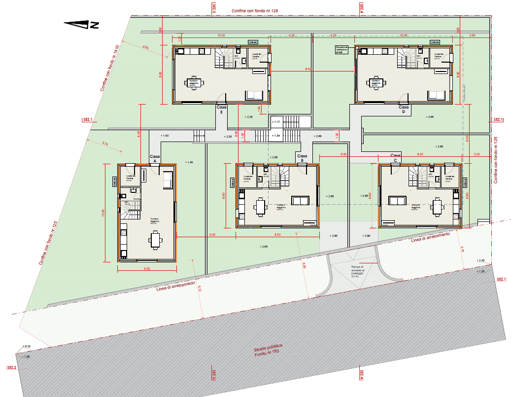
Situata all'interno di un piccolo complesso residenziale composto da 5 villette indipendenti, questa proprietà è attualmente in fase di prossima edificazione e rappresenta una rara opportunità per chi desidera una casa moderna in una zona ben servita e a misura di famiglia.
Distribuita su due livelli, la villetta offre una superficie abitabile di circa 110 m² (esclusi piano interrato e autorimessa). Il luminoso soggiorno invita al relax quotidiano, mentre la cucina moderna farà impazzire ogni appassionato di cucina. Con 3 camere da letto e 3 servizi, gli spazi sono pensati per offrire il massimo comfort e la giusta privacy.
Completano l'offerta una cantina al piano interrato e 2 posti auto in autorimessa collegata direttamente all'abitazione.
La posizione soleggiata, centrale e child-friendly rende questa villa un'oasi di tranquillità a pochi passi da ristoranti, caffè, negozi e strutture ricreative. Il sistema di riscaldamento centralizzato garantisce comfort in ogni ambiente della casa.
Questa proposta properti si distingue per:
Architettura moderna e design funzionaleVilletta indipendente su 2 piani in prossima edificazionePosizione soleggiata e centrale a Cadenazzo3 camere da letto, 3 bagni, ampio salone2 posti auto in autorimessa e cantina sotterraneaComfort residenziale esclusivo e finiture di alto livelloAmbiente urbano con vicinanza a tutti i serviziIdeale per famiglie e per un'abitazione orientata al futuro
Siete interessati? Contattateci per una visita non vincolante! Avete anche voi un immobile da commercializzare? Offriamo condizioni eque e trasparenti!

Kosten

Kaufpreis:
CHF 800'000

Angaben

Objektkategorie
Eigentum
Objektreferenz
57a5c84f-e813-4445-8333-c4329d8e1aec
PLZ/Ort
6593 Cadenazzo
Region
Bellinzona
Grundstücksfläche
300 m²
Anzahl Zimmer
5
Baujahr
2026

Merkmale und Ausstattung

Haustiere erlaubt
Parkplatz

Kontakt

Marko Antunovic
  • Marko Antunovic
  • Properti AG
  • gibt Ihnen gerne Auskunft.
  • Nummer Anzeigen

Auch inseriert auf:

homegate.ch