Wohnobjekt

Neubauwohnung 4.5 mit großem Portikus

CHF 980'000

 | 

128 m²

 | 

4.5 Zimmer

Via al Chioso 8, 6934 Bioggio

Neubauwohnung 4.5 mit großem Portikus - Karte
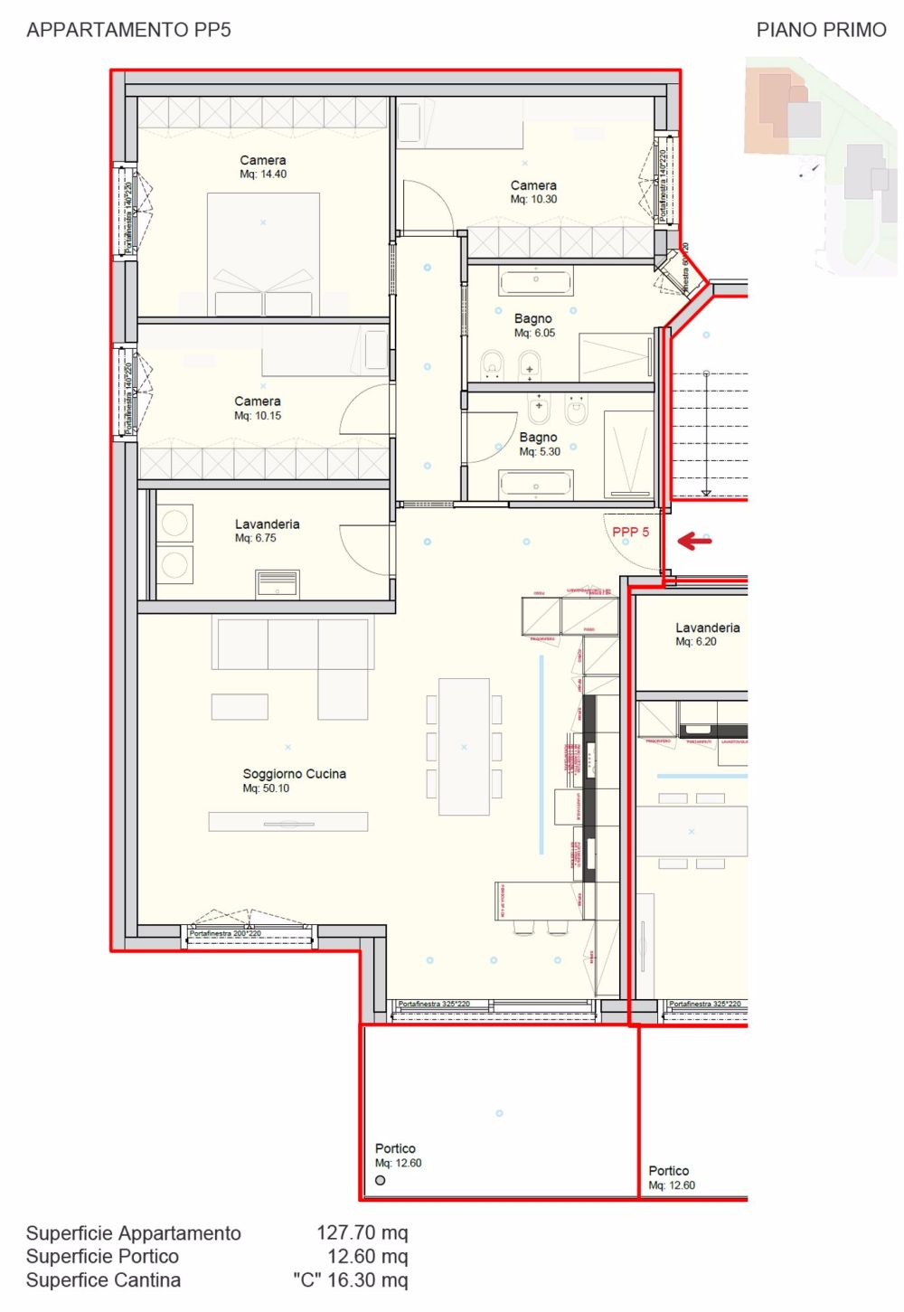
WOHNUNG 4.5 IM ERSTEN STOCK MIT GROßEM PORTIKUS Die neue Residenz befindet sich in der Bauphase im Zentrum der Gemeinde Bioggio in der Via al Chioso 8, aufgeteilt in 2 kleine Gebäude mit je 6 Wohnungen, in zwei Typen: 3.5 und 4.5. Die Gebäude sind in einer privilegierten Lage: sonnig und ruhig, mit großen, nach Süden ausgerichteten Portiken und viel Grün. Alle wichtigen Dienstleistungen sind in der Nähe und zu Fuß erreichbar (Schulen, Kindergarten, Apotheken, Supermärkte, Gemeindeverwaltung, Bars, Restaurants, Bank, Post, FLP-Haltestelle) Die Wohnung besteht aus: Eingang, Waschküche, 2 Einzelzimmern, 1 Doppelzimmer, 2 Badezimmern und einem Wohn-Esszimmer mit Theke und großer Schiebetür mit Zugang zum Portikus für erholsame Momente. Ein privater Keller ist im Untergeschoss vorgesehen und im Preis inbegriffen. Die kleine Wohnanlage ist mit besonderer Aufmerksamkeit für Energie- und Schall-effizienz geplant und ausgeführt, um Wohnungen mit hohem Wohnkomfort und geringen Heiz- und Kühlkosten zu schaffen. Zwei komfortable, überdachte Parkplätze im Untergeschoss sind zum Preis von CHF 50'000 cada verfügbar. Ideal als Erstwohnsitz, Zweitwohnsitz oder auch als Investition aufgrund der strategischen Lage und der günstigen Steuern, da Bioggio einen der niedrigsten Multiplikationsfaktoren im Kanton Tessin hat. Einige Merkmale der neuen Konstruktion: - Energieeffizienzklasse CECE "A" (50% höhere Energieeffizienz als die gesetzlichen Anforderungen) - Photovoltaikanlage 12,8 kW (Minergie-Standard) - Luft-Wasser-Wärmepumpe, teilweise mit den eigenen auf dem Dach installierten Photovoltaikpaneelen betrieben - Fußbodenheizung und -kühlung - Luftentfeuchtungsanlage - Äußere Wärmedämmung mit 16 cm Dicke - Ventilierte Fassade - Glasgeländer - Moderne Holz-Aluminium-Fenster mit Dreifachverglasung (Schiebeelemente mit Wand- und Bodenanschluss) - Hochwertige Innenverkleidungen nach Kundenwunsch - Aufzug - Designer-Unterstützung für Innenauswahl - Komplette Küche mit Geräten, aus modernen, hochwertigen Materialien gefertigt (im Showroom direkt zu besichtigen) Geplante Übergabe im Sommer 2026 Wohnung 4.5 im ersten Stock (Ref: PP5) Wohnfläche 127,70 m² Portikus 12,60 m² Keller 16,30 m² Verkaufsfläche 138,60 m² Preis 980'000,00 CHF Direkt vom Bauunternehmer Giteco Sagl, Generale Bauunternehmung, 091 235 90 62 - [email protected] für weitere Informationen ohne Verpflichtung Möglichkeit, die Wohnung als Zweitwohnsitz zu erwerben

Verfügbarkeit

Verfügbar ab:
1. Juni 2026

Kosten

Kaufpreis:
CHF 980'000

Angaben

Objektkategorie
Eigentum
Objektreferenz
5cca17ef-7845-48d5-b0bf-c1ac81e87a67
Adresse
Via al Chioso 8
PLZ/Ort
6934 Bioggio
Region
Lugano
Wohnfläche
128 m²
Anzahl Zimmer
4.5
Etage
1
Baujahr
2025

Merkmale und Ausstattung

Balkon
Lift
Garage
Schöne Aussicht
Kinderfreundlich
Rollstuhlgängig
Minergie

Kontakt

  • Giteco Sagl
  • Via Peschiera 25, 6982, Agno
  • Nummer Anzeigen

Auch inseriert auf:

homegate.ch