Wohnobjekt

Nuovo esclusivo appartamento in zona comoda e strategica

CHF 465'000

 | 

63 m²

 | 

2.5 Zimmer

Via Vallone, 6500 Bellinzona

Nuovo esclusivo appartamento in zona comoda e strategica - Karte
La Residenza Sila 9, che sorgerà in zona Geretta con accesso da Via Vallone, dista solo un chilometro e mezzo dalla nuova stazione FFS ed è poco discosta dal centro cittadino.
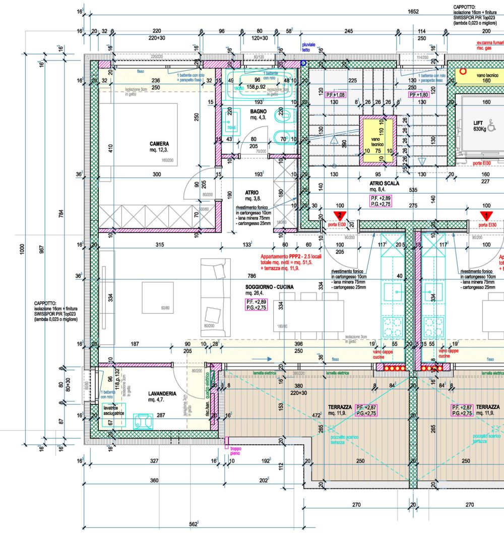
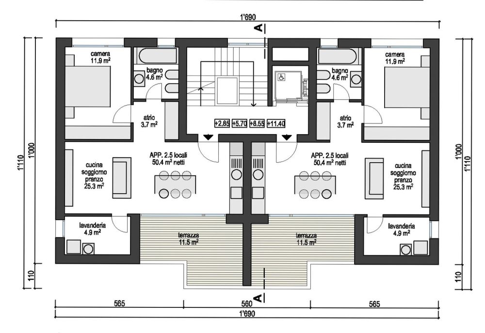
La residenza è composta da soli 8 appartamenti di 2 ½ locali, distribuiti due per piano e ripartiti tra il livello 1 ed il livello 4.
L’edificio verrà realizzato in stile costruttivo tradizionale, con elementi in beton ed in muratura e con isolazione termica delle facciate.
Particolare attenzione è stata data agli aspetti energetici: Impianto a regolazione individuale per ogni locale, termopompa aria/acqua e distribuzione calore con serpentine a bassa temperatura posate a pavimento e pannelli solari posati sul tetto per produzione acqua calda sanitaria.
L’abitazione è libera sui tre lati, gli spazi architettonici sono valorizzati sia dalla tipologia di distribuzione che dalla scelta personale delle rifiniture.
Ogni abitazione dispone della sua lavanderia privata ubicata all’interno dell’appartamento.
Gli spazi esterni sono garantiti dalle belle terrazze coperte.
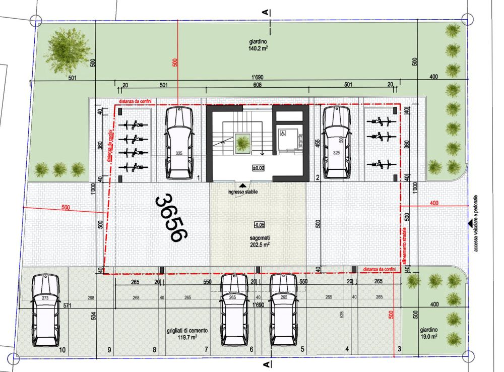
Al piano terreno della Residenza si trovano i posti auto coperti oppure i posteggi esterni, che sono acquistabili separatamente per permetterne la scelta in base alla disponibilità.
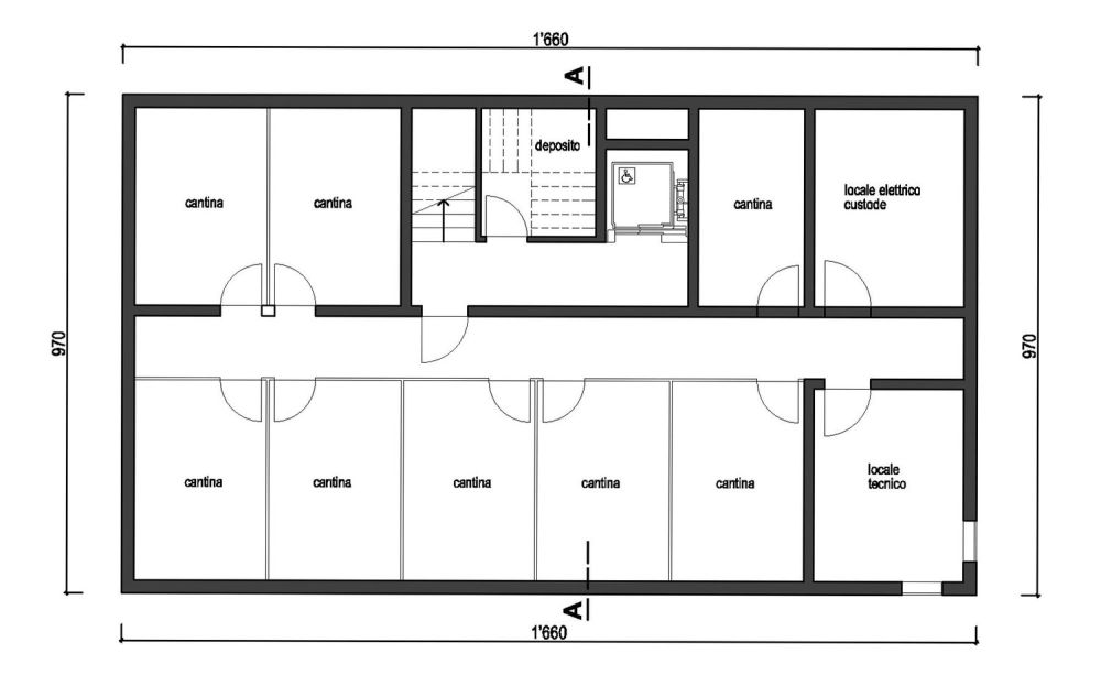
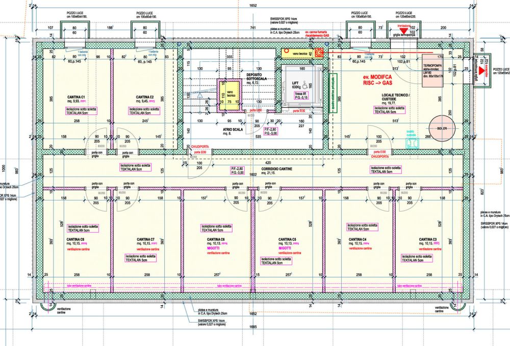
Al piano interrato comodamente raggiungibile con ascensore sono ubicate le cantine, il locale custode ed il locale tecnico.

Verfügbarkeit

Verfügbar ab:
28. April 2026

Kosten

Kaufpreis:
CHF 465'000

Angaben

Objektkategorie
Kauf
Objektreferenz
82164ac4-2cac-41f0-bde8-2d7cdfe0af60
Adresse
Via Vallone
PLZ/Ort
6500 Bellinzona
Region
Bellinzona
Wohnfläche
63 m²
Anzahl Zimmer
2.5
Etage
1
Baujahr
2025

Merkmale und Ausstattung

Balkon
Kabelfernsehen
Lift
Schöne Aussicht
Parkplatz
Kinderfreundlich
Rollstuhlgängig

Kontakt

Claudio Falcetti
  • Claudio Falcetti
  • L'Idea Immobiliare SA
  • gibt Ihnen gerne Auskunft.
  • Nummer Anzeigen

Auch inseriert auf:

homegate.ch