Wohnobjekt

Neubau / Erstbezug: MFH "Weitblick" / 4½-Zimmerwohnung_1OG

CHF 674'000

 | 

103 m²

 | 

4.5 Zimmer

Dorfstrasse 19, 9621 Oberhelfenschwil

Neubau / Erstbezug: MFH "Weitblick" / 4½-Zimmerwohnung_1OG - Karte
Über das Neubauprojekt
 

Im Dorfkern von Oberhelfenschwil entsteht ein Mehrfamilienhaus im Eigentumsstandard mit insgesamt acht Wohneinheiten. Der Baustart ist im Januar 2025 erfolgt und der Bezug der Wohnungen ist auf Juli 2026 geplant. Die Wohnungsgrössen variieren von 2.5 bis 4.5 Zimmer.

Alle Wohnungen sind durch die Lage und Anordnung optimal besonnt und verfügen über einen atemberaubenden Weitblick. Die Grundrisse sind modern und entsprechen dem heutigen Zeitgeist.

Das Mehrfamilienhaus verfügt über einen Lift und pro Wohnung steht mindestens ein Tiefgaragenplatz zur Verfügung. Ferner werden auch zusätzliche Abstellplätze im freien realisiert.

Die besonnten Veranden laden zum verweilen ein. Geniessen Sie künftig Ihr Feierabendbier auf dem Balkon mit herrlichem Blick ins Grüne.

Dank dem Anschluss an das Fernwärmenetz und einer Photovoltaikanlage wird der Neubau mit einer effizienten Gebäudetechnik ausgestattet. Dies gewährleistet nicht nur ein nachhaltiges Wohnen, sondern auch niedrige Betriebskosten.

Die grosszügigen Kellerabteile bieten ein ausreichendes Platzangebot.

Die Details über alle verfügbaren Wohnungen finden Sie unter folgendem Link: www.weitblick-oberhelfenschwil.ch

Die Eigentumswohnungen in der Übersicht
Insgesamt entstehen acht Wohneinheiten sowie neun Tiefgaragenplätze und drei Abstellplätze.

Erdgeschoss


2½-Zimmerwohnung
mit ca. 72 m² Wohnfläche und ca. 12 m² Sitzplatz
3½-Zimmerwohnung
mit ca. 94 m² Wohnfläche und ca. 12 m² Sitzplatz
1. Obergeschoss


4½-Zimmerwohnung
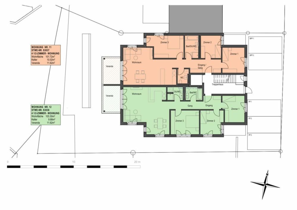
mit ca. 101 m² Wohnfläche und ca. 12 m² Veranda
4½-Zimmerwohnung
mit ca. 103 m² Wohnfläche und ca. 12 m² Veranda
2. Obergeschoss


4½-Zimmerwohnung
mit ca. 101 m² Wohnfläche und ca. 12 m² Veranda
4½-Zimmerwohnung
mit ca. 103 m² Wohnfläche und ca. 12 m² Veranda
Dachgeschoss (Maisonette)


3½-Maisonettewohnung
mit ca. 136 m² Wohnfläche und ca. 12 m² Veranda
4½-Maisonettewohnung mit ca. 148 m² Wohnfläche und und ca. 12 m² Veranda
Alle Wohnungen verfügen zudem über einen Abstellraum und bieten zusäzlichen Stauraum.

Bis auf die 2½-Zimmerwohnung verfügen alle Wohnungen über zwei Nasszellen. Es ist zudem vorgesehen, dass die Wohnungen über eine Waschmaschine und Tumbler ausgestattet werden.

Die zukünftigen Eigenheimbesitzer haben die Möglichkeit, den gesamten Innenausbau, einschliesslich Küche, Badezimmer und Boden-/Wand-/Deckenbeläge, nach ihren eigenen Vorstellungen zu gestalten. Die detaillierten Kostenbudgets sind im ausführlichen Baubeschrieb enthalten und der Architekt wird die fachliche Begleitung während des gesamten Prozesses sicherstellen.

Die Details über alle verfügbaren Wohnungen finden Sie unter www.weitblick-oberhelfenschwil.ch

Verfügbarkeit

Verfügbar ab:
1. Juli 2026

Kosten

Kaufpreis:
CHF 674'000

Angaben

Objektkategorie
Eigentum
Objektreferenz
c6f61708-9e8d-4151-a81b-42b8614aa80f
Adresse
Dorfstrasse 19
PLZ/Ort
9621 Oberhelfenschwil
Region
Toggenburg
Wohnfläche
103 m²
Anzahl Zimmer
4.5
Etage
1
Baujahr
2025

Merkmale und Ausstattung

Balkon
Lift
Garage
Parkplatz
Kinderfreundlich

Kontakt

  • Zoller Partner AG
  • Marktgasse 3, 9500, Wil SG
  • Nummer Anzeigen

Auch inseriert auf:

icasa.ch
Anbieter kontaktieren
Anbieter kontaktieren