Wohnobjekt

Exklusiver Neubau: 3.5 Zimmer Wohnung im Obergeschoss

CHF 785'000

 | 

96 m²

 | 

3.5 Zimmer

Gmeindstrasse 18, 9462 Montlingen

Exklusiver Neubau: 3.5 Zimmer Wohnung im Obergeschoss - Karte
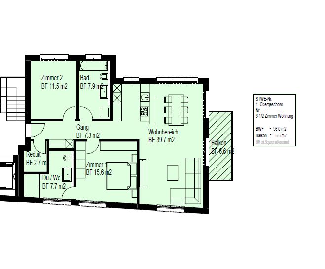
Diese stilvolle Etagenwohnung bietet eine komfortable Wohnfläche von 96 m² und verbindet modernes Wohnen mit durchdachter Raumaufteilung. Der helle Wohn- und Essbereich bildet das Herzstück der Wohnung und wird durch grosse Fensterfronten lichtdurchflutet, wodurch ein freundliches und einladendes Wohnambiente entsteht. Die Küche ist modern ausgestattet und nahtlos in den Essbereich integriert. Das grosszügige Elternschlafzimmer bietet Rückzugsraum und Ruhe und verfügt über einen begehbaren Kleiderschrank sowie ein En-Suite-Badezimmer mit Dusche, WC und Lavabo. Ein zusätzliches Zimmer eignet sich ideal als Kinder-, Gäste- oder Arbeitszimmer. Der Balkon lädt zum Entspannen im Freien ein und bietet Platz für gemütliche Stunden. Das zweite Badezimmer ist funktional und stilvoll gestaltet und verfügt über Badewanne, WC, Lavabo sowie den Platz für einen Waschturm mit Waschmaschine und Tumbler. Ein praktischer Hauswirtschaftsraum ergänzt das Raumangebot und sorgt für zusätzlichen Komfort im Alltag. Die Wohnung ist ideal gelegen und verbindet modernen Wohnkomfort mit funktionalen Räumen. Die Nähe zu öffentlichen Verkehrsmitteln, Einkaufsmöglichkeiten und Freizeiteinrichtungen macht sie zu einem attraktiven Zuhause, das alle Wünsche erfüllt.Diese stilvolle Etagenwohnung befindet sich in der idyllischen Ortschaft Montlingen, eingebettet in die wunderschöne Landschaft des St. Galler Rheintals in der Ostschweiz. Montlingen bietet eine perfekte Mischung aus ländlichem Charme und der Nähe zu städtischen Annehmlichkeiten. Die Region besticht durch eine beeindruckende Alpenkulisse und zahlreiche Erholungs- sowie Freizeitmöglichkeiten, sei es Wandern, Radfahren oder ein gemütlicher Spaziergang entlang des Rheins. Die Gemeinde ist bekannt für ihre lebendige Gemeinschaft und ihre hohe Lebensqualität. In der Umgebung finden sich verschiedene Einkaufsmöglichkeiten, Restaurants und Cafés, die keine Wünsche offenlassen. Zudem sind Schulen sowie Kinderbetreuungseinrichtungen gut erreichbar, was Montlingen besonders für Familien attraktiv macht. Die verkehrstechnische Anbindung ist hervorragend: Die Anbindung an die Autobahn A13 ermöglicht eine schnelle Erreichbarkeit von umliegenden Städten, während der öffentliche Verkehr mit regelmässigen Busverbindungen eine zusätzliche Flexibilität bietet. Dies macht Montlingen zu einem idealen Wohnort sowohl für Pendler als auch für Naturliebhaber, die die Ruhe der ländlichen Umgebung schätzen.Die Highlights im Überblick: - Grosszügiger Wohn- und Essbereich - Zwei Badezimmer - Badezimmer En-Suite im Elternschlafzimmer - Einbaugarderobe im Eingangsbereich - Tiefgaragenparkplätze - Allgemeiner Veloraum - Kellerabteil im UG - PV Anlage

Kosten

Kaufpreis:
CHF 785'000

Angaben

Objektkategorie
Eigentum
Objektreferenz
98466c33-f423-4a0f-a33f-5c637d333a61
Adresse
Gmeindstrasse 18
PLZ/Ort
9462 Montlingen
Region
Rheintal
Wohnfläche
96 m²
Anzahl Zimmer
3.5
Etage
3
Baujahr
2026

Merkmale und Ausstattung

Lift

Kontakt

Sandro Schmid
  • Sandro Schmid
  • RL Immo GmbH
  • gibt Ihnen gerne Auskunft.
  • Nummer Anzeigen

Auch inseriert auf:

homegate.ch