Wohnobjekt

4 1/2-Zimmer Gartenwohnung in Gams

CHF 1'082'000

 | 

134 m²

 | 

4.5 Zimmer

Grabserstrasse 21, 9473 Gams

4 1/2-Zimmer Gartenwohnung in Gams - Karte
Zentrale Infos In der ländlich gelegenen Wohngemeinde Gams, unweit von Buchs, Lichtenstein und dem Naherholungsgebiet der Toggenburger Alpen, bauen wir an zentraler, schöner Wohnlage ein kleines Mehrfamilienhaus mit drei grosszügigen Wohnungen. Die Dachwohnung ist bereits reserviert. Ihre Vorteile zusammengefasst:
- Zentrumsnahes Wohnen
- Hauptwohnseite Süd/Ost ausgerichtet
- Gute Besonnung, da Nachbargebäude Einfamilienhäuser
- Nur drei Wohneinheiten garantieren ruhiges, persönliches Wohnen
- Solide, zeitgemässe Bauqualität nach den heutigen Normen
- Zwei Tiefgaragenplätze pro Wohnung möglich
- Direkter Zugang von Tiefgarage zum Haus/Lift
- Abstellfläche für Fahrräder oder Kinderwagen in der Tiefgarage
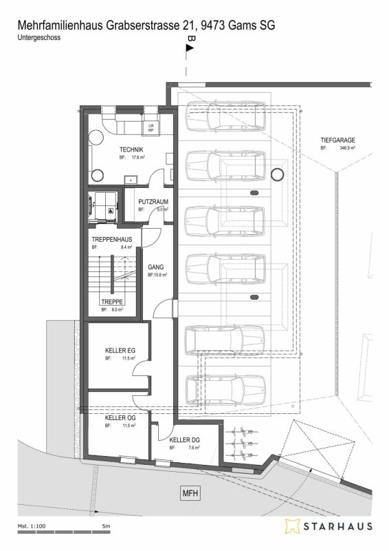
- Pro Wohnung ein Kellerraum im Untergeschoss
- Geräumiges Entrée mit Garderobe und Putzschrank
- Waschmaschine und Tumbler in der Wohnung
- Küche mit Kochinsel
- Lichtdurchflutete Räume
- Zwei Nasszellen mit zwei Duschen
- Grosszügiger, überdachter Sitzplatz
- Gartenanteil von 170 m2
- Fussbodenheizung mit Free-Cooling System
- Tiefe Unterhaltskosten dank Aufbereitung Warmwasser mittels PV-Anlage
- Ansprechender, hochwertiger Innenausbau
- Bushaltestelle in zwei Minuten erreichbar
- Autobahnanschluss Haag oder Buchs in 10 Minuten erreichbar
- Golfplatz von Gams in unmittelbarer Nähe
Verkaufspreise:
4.5-Zimmer-Gartenwohnung EG CHF 1'082'000.004.5-Zimmer-Wohnung Obergeschoss CHF 1'042'000.003.5-Zimmer-Wohnung Dachgeschoss verkauftTiefgaragenplatz CHF 38'000.00
Haben wir Ihr Interesse geweckt und könnte diese Wohnung Ihr neues Zuhause werden? Persönliche Ausbauwünsche und Materialwahl können aktuell noch berücksichtigt werden. Wir freuen uns auf Ihre Kontaktaufnahme:
Starhaus AG, Jeannette Osterwalder 079 280 98 75

Kosten

Kaufpreis:
CHF 1'082'000

Angaben

Objektkategorie
Eigentum
Objektreferenz
a0b32521-f66c-412b-b427-622e4c04f2c0
Adresse
Grabserstrasse 21
PLZ/Ort
9473 Gams
Region
Werdenberg
Wohnfläche
134 m²
Anzahl Zimmer
4.5
Etage
EG
Baujahr
2026

Merkmale und Ausstattung

Lift
Garage
Parkplatz
Kinderfreundlich
Rollstuhlgängig

Kontakt

Jeannette Osterwalder
  • Jeannette Osterwalder
  • Starhaus AG
  • gibt Ihnen gerne Auskunft.
  • Nummer Anzeigen

Auch inseriert auf:

homegate.ch