Wohnobjekt

Neubauprojekt über den Dächern von Eschenbach

keine Preisangabe

 | 

183 m²

 | 

4.5 Zimmer

Säntisstrasse, 8733 Eschenbach SG

Neubauprojekt über den Dächern von Eschenbach - Karte
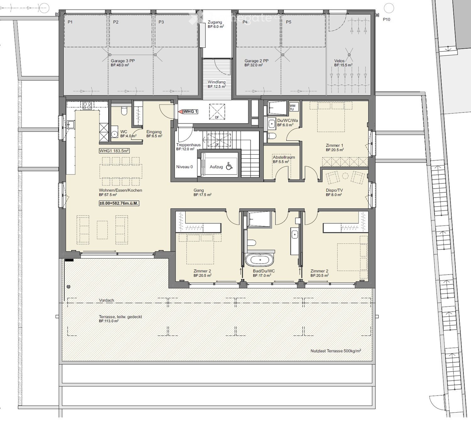
An privilegierter Lage entsteht dieses exklusive Neubauprojekt mit nur fünf Eigentumswohnungen. Voraussichtlicher Bezugstermin ist Herbst 2026. Die mit dem Blick fürs Ganze und der Liebe zum Detail konzipierten Eigentumswohnungen überzeugen mit raffinierter Architektur und einem ganzheitlich durchdachten Grundriss, welcher im Zusammenspiel mit dem hochwertigen Ausbaustandard optimale Voraussetzungen für beste Wohn- und Lebensqualität bietet. Die grosszügigen Aussenflächen (zwischen 38m2 und 113m2) setzen den Blick in die Weite perfekt in Szene.
Wohnungen: Die Wohnungen wurden mit hochwertigen Mehrfrontenküchen ausgestattet mit einer Granit Shiva Black Arbeitsplatte. Zudem besitzen die Küchen Geräte der Marke V-ZUG , hier z.B. ein Glaskeramik-Kochfeld Induktion, Dampfabzug Umluft sowie ein Backofen Combair und CombiSteamer. Die Nasszellen haben nebst einem Geberit Dusch-WC zeitlose Feinsteinzeugplatten und eine Waschmaschine wie auch Tumbler der Marke Schulthess.
Lage und Umgebung: Die ruhige, sonnige und einzigartige Lage bietet eine ideale Kombination aus Natur, Privatsphäre und guter Erreichbarkeit der umliegenden Infrastruktur. Hier wohnen Sie in einem exklusiven Umfeld mit viel Lebensqualität und einem unvergleichlichen Panorama. Diese Neubau-Wohnungen sind ideal für Familien oder Paare, die modernen Wohnkomfort in einer friedlichen Umgebung suchen. Geniessen Sie das Beste aus beiden Welten: die Ruhe der Natur und die Annehmlichkeiten einer gut erschlossenen Gemeinde.
Weitere Details unter: www.wohnung-mit-fernsicht.ch
Gerne stellen wir Ihnen auf Wunsch die Verkaufsdokumentation zu. Wir sind nur einen Anruf weit entfernt.

Kosten

Kaufpreis:
keine Preisangabe

Angaben

Objektkategorie
Eigentum
Objektreferenz
fba9df4c-7d45-4093-aa64-caeb610628ac
Adresse
Säntisstrasse
PLZ/Ort
8733 Eschenbach SG
Region
See-Gaster
Wohnfläche
183 m²
Anzahl Zimmer
4.5
Baujahr
2026

Merkmale und Ausstattung

Balkon
Lift
Garage
Schöne Aussicht
Kinderfreundlich

Kontakt

Im
  • Im
  • gibt Ihnen gerne Auskunft.
  • Nummer Anzeigen

Auch inseriert auf:

homegate.ch