Wohnobjekt

EFH-Neubau-Projekt in Engelburg mit unverbaurer Aussicht

CHF 1'395'000

 | 

157 m²

 | 

6.5 Zimmer

Chapfhaldenstrasse 3, 9032 Engelburg

EFH-Neubau-Projekt  in Engelburg mit unverbaurer Aussicht - Karte
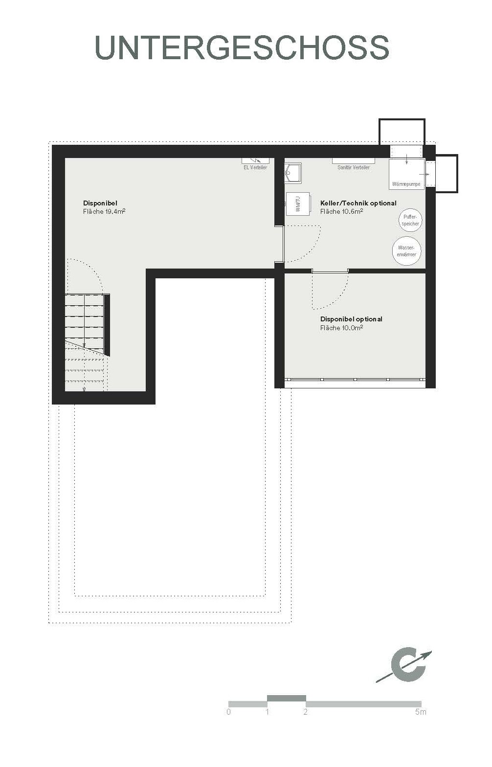
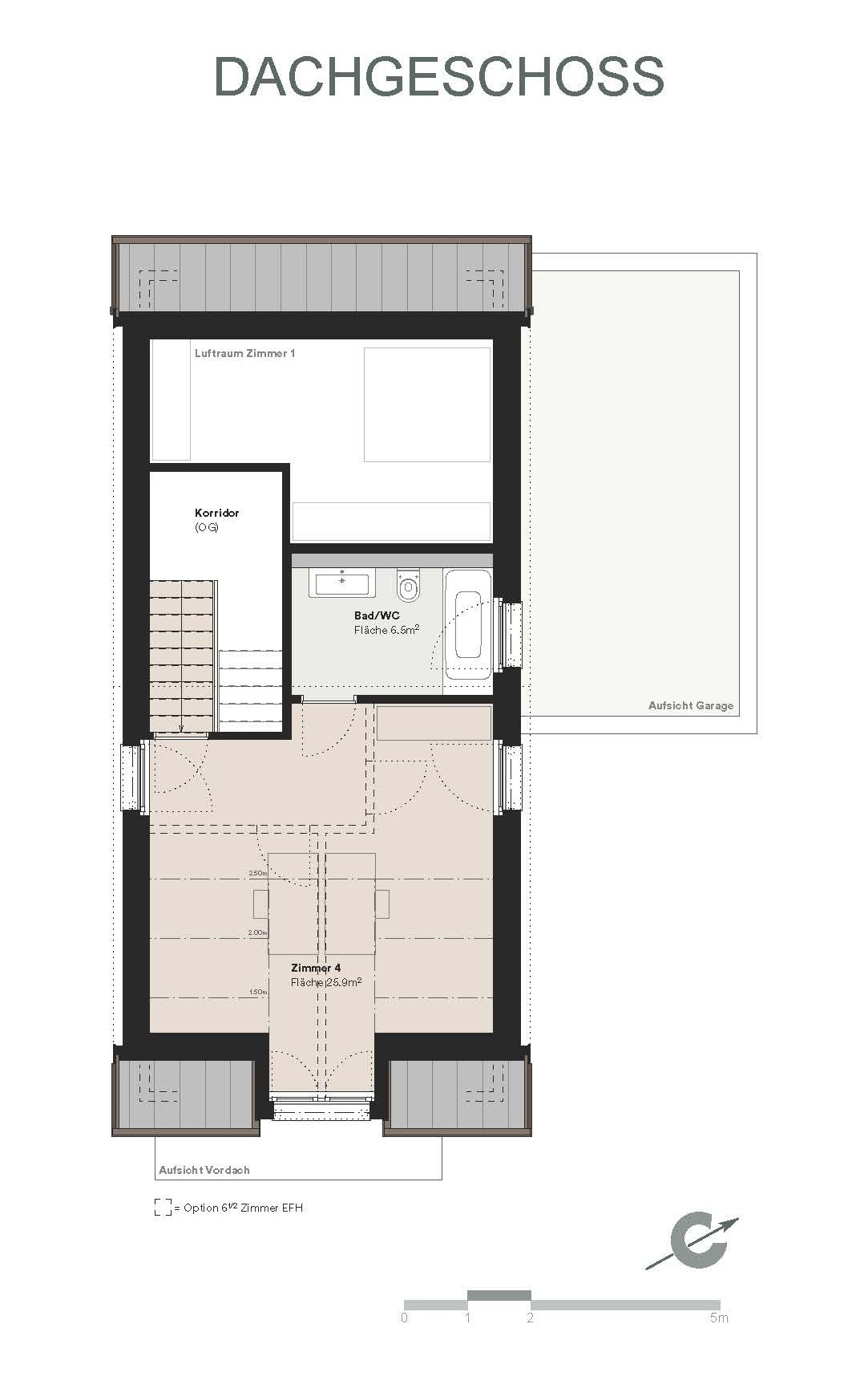
Im Wohnquartier Chapf in Engelburg, an sehr sonniger und ruhiger Wohnlage mit unverbaubarer Aussicht auf das Säntismassiv, die Stadt St. Gallen und Wittenbach, verkaufen wir drei projektierte, freistehende 5 1/2 - 6 1/2 Zimmer-Einfamilienhäuser
mit Einzel-/Doppelgaragen und Aussen-Parkplätzen. Die Architektur überzeugt durch klare, strukturierte Linien, lichtdurchflutete
Räume und eine hochwertige Ausstattung, die sich ganz nach Ihren
individuellen Bedürfnissen richtet. Sie können den Ausbau noch mitbestimmen! Je nach Ausbau entstehen 5 1/2 oder 6 1/2 Zimmer. Grosszügig geplante Fensteröffnungen lassen viel Tageslicht ins Haus und schaffen eine warme, wohnliche Atmosphäre. Durchdachte Grundrisse bieten genügend Raum für die ganze Familie und ermöglichen individuelles Wohnen mit Stil. Die drei Einfamilienhäuser liegen in einem Einfamilienhausquartier mit beruhigten 30-Zonen-Quartierstrassen und werden durch eine eigene Sackstrasse (Kinderspielstrasse) erschlossen. Die Lage ist perfekt und erfüllt auch hohe Ansprüche an die Infrastruktur:
1 Gehminute von der ÖV-Bushaltestelle entfernt
Schulen und Einkaufsmöglichkeiten in naher Distanz erreichbar
das Zentrum / der Bahnhof der Stadt St. Gallen liegt 9 Fahrminuten mit dem Auto und 18 Fahrminuten mit den ÖV entfernt
Gleichzeitig beginnt die Erholung direkt vor Ihrer Haustür mit Natur pur und zahlreichen Möglichkeiten für Spaziergänge, Wanderungen oder einfach zum Durchatmen.
Verkaufspreis ab Fr. 1'395'000.--
Interessiert? Gerne senden wir Ihnen ein detailliertes Verkaufsdossier. Wir freuen uns über Ihre schriftliche Kontaktnahme!

Kosten

Kaufpreis:
CHF 1'395'000

Angaben

Objektkategorie
Eigentum
Objektreferenz
8ec98802-169e-413e-87c0-f781db122389
Adresse
Chapfhaldenstrasse 3
PLZ/Ort
9032 Engelburg
Region
St. Gallen
Wohnfläche
157 m²
Grundstücksfläche
450 m²
Anzahl Zimmer
6.5
Baujahr
2026

Merkmale und Ausstattung

Balkon
Garage
Schöne Aussicht
Parkplatz
Kinderfreundlich
Minergie

Kontakt

  • cosyhome ag
  • Poststrasse 2, 9000, St. Gallen
  • Nummer Anzeigen

Auch inseriert auf:

homegate.ch