Wohnobjekt

Neubau: Wohn-/Geschäftshaus - Mehrgenerationen-Haus (Minergie-P)

CHF 2'290'000

 | 

350 m²

Howartstrasse, 9642 Ebnat-Kappel

Neubau: Wohn-/Geschäftshaus - Mehrgenerationen-Haus (Minergie-P) - Karte
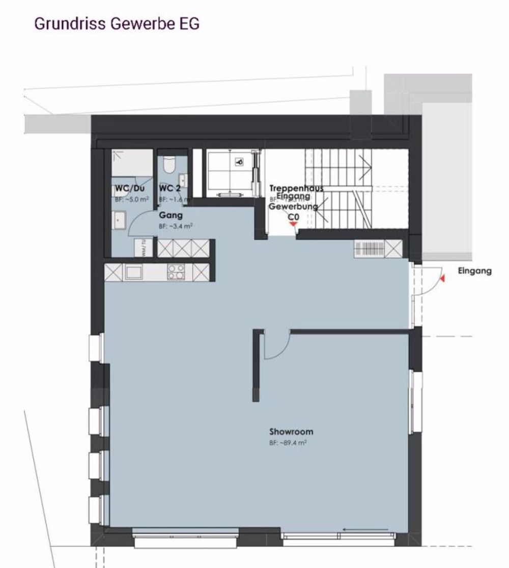
Wohn-/Geschäftshaus - Mehrgenerationenhaus in Minergie-P-Bauweise Am sonnigen Hang in Ebnat-Kappel, entlang der kaum befahrenen Howartstrasse, entstehen ein Wohn- und Geschäftshaus sowie zwei Mehrfamilienhäuser mit Büros im Eigentumsstandard. Das zum Verkauf stehende Wohn- und Geschäftshaus bzw. Mehrgenerationen-Haus ist durch die Lage und Anordnung optimal besonnt. Die Grundrisse sind modern und entsprechen dem heutigen Zeitgeist. Das Wohn- und Geschäftshaus verfügt über einen Lift vom Erdgeschoss bis ins 2. Obergeschoss, der auch eine gemeinschaftliche Tiefgarage im Untergeschoss erschliesst. In der Tiefgarage gehören 3 Doppel-Einstellplätze für insgesamt 6 Autos zum Wohn- und Geschäftshaus. Im Gartengeschoss befindet sich ein Gewerberaum (ca. 104 m² Nettowohnfläche) mit Kochzeile und Nasszelle, der beispielsweise als Home-Office, für kleingewerbliche Zwecke (Büro, Praxis, Coiffeur, etc.) oder für Hobby-Zwecke genutzt werden kann. Im 1. Obergeschoss ist eine 3½-Zimmer-Wohnung (ca. 90 m² Nettowohnfläche) mit einer ca. 12 m² Loggia untergebracht und im 2. Obergeschoss/Dachgeschoss befindet sich eine 5½-Zimmer-Maisonette-Wohnung (ca. 157 m² Nettowohnfläche) und einer ca. 59 m² grossen Dachterrasse. Das in Minergie-P-Bauweise erstellte Wohn- und Geschäftshaus ist sowohl in ökonomischer, wie auch in ökologischer Hinsicht vorbildlich. Eine optimale Gebäudetechnik (Luftwärme-Pumpe, kontrollierte Wohnungslüftung und Photovoltaik-Anlage) garantiert einerseits ein umweltschonendes Wohnen und andererseits tiefe Betriebskosten. Der gesamte Innenausbau wie Küchen, Nasszellen, Boden-/Wand-/Deckenbeläge kann selbstverständlich durch jede Käuferin bzw. durch jeden Käufer selber bestimmt werden. Ein entsprechendes Kosten-Budget ist im ausführlichen Baubeschrieb enthalten und die fachliche Begleitung durch den Architekten ist garantiert.

Kosten

Kaufpreis:
CHF 2'290'000

Angaben

Objektkategorie
Eigentum
Objektreferenz
3cb2cbde-c885-4ebc-9fe4-73ddfc3d84d5
Adresse
Howartstrasse
PLZ/Ort
9642 Ebnat-Kappel
Region
Toggenburg
Wohnfläche
350 m²
Baujahr
2023

Merkmale und Ausstattung

Lift
Minergie

Kontakt

  • Zoller Partner AG
  • Marktgasse 3, 9500, Wil SG
  • Nummer Anzeigen

Auch inseriert auf:

homegate.ch