Wohnobjekt

Grosszügige 4½-Zimmer-Wohnungen mit Balkon oder Maisonette-Charme – Bezug Herbst 2026

CHF 920'000

 | 

109 m²

 | 

4.5 Zimmer

Maugwilerstrasse 40, 9552 Bronschhofen

Grosszügige 4½-Zimmer-Wohnungen mit Balkon oder Maisonette-Charme – Bezug Herbst 2026 - Karte
An sonniger und ruhiger Lage in Bronschhofen-Maugwil (Gemeinde Wil SG) entsteht ein modernes Mehrfamilienhaus mit sechs Eigentumswohnungen in hochwertiger Massivbauweise.
Zum Verkauf stehen unter anderem drei 4½-Zimmer-Wohnungen mit unterschiedlichen Grundrissen und Grössen – wahlweise auf einer Ebene oder als grosszügige Maisonette über zwei Etagen. Alle Wohnungen überzeugen durch grosszügige Raumkonzepte, helle Wohnbereiche und eine Ausstattung, die modernes Design mit hoher Alltagstauglichkeit verbindet:
Grosszügiger Wohn- und Essbereich mit offener Küche
Küche mit Granitabdeckung und Induktionsherd mit integriertem Dampfabzug
Zwei komfortable Nasszellen – ein Badezimmer mit Badewanne und Dusche sowie ein zweites Duschbad mit Waschmaschine und Tumbler
Helle, gut möblierbare Räume mit optimaler Besonnung
Tiefgaragenplätze à CHF 35’000.– können zusätzlich erworben werden
Das Neubauprojekt bietet urbanen Wohnkomfort in ländlicher Umgebung – ideal für Paare und Familien, die Wert auf Raum, Licht und Qualität legen.
Verfügbare 4½-Zimmer-Wohnungen:
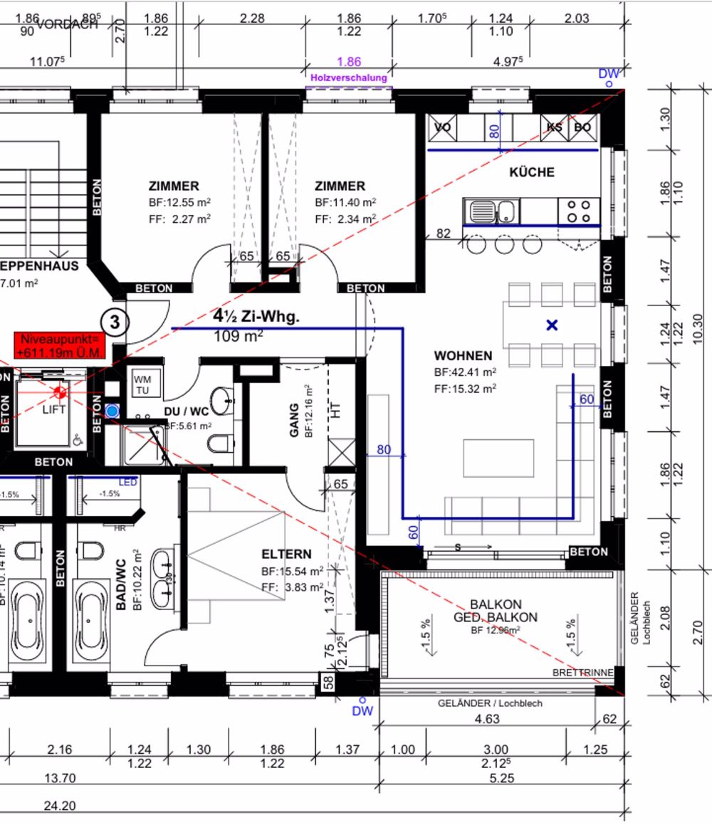
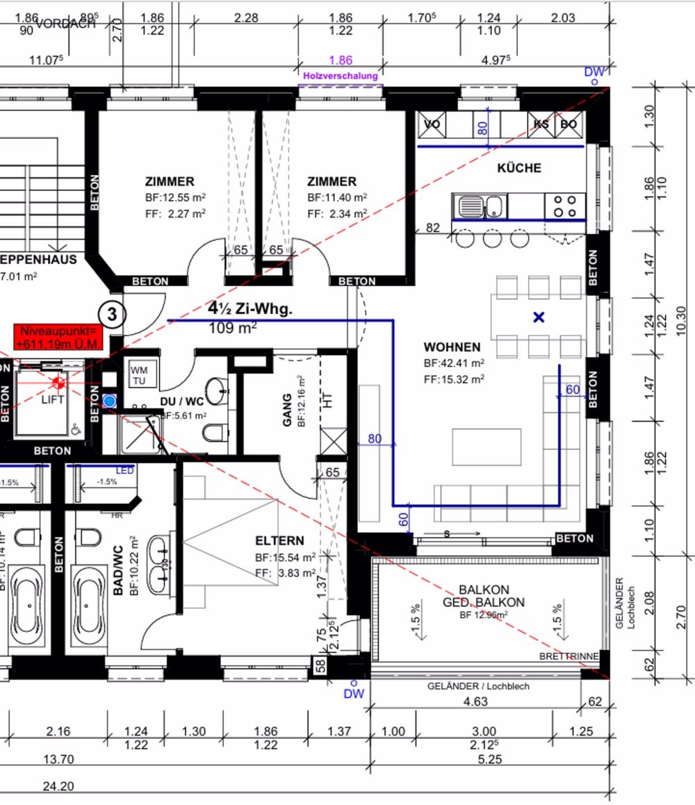
Obergeschosswohnung Nr. 3
ca. 109 m² Wohnfläche,
Gedeckter Balkon: 12.96 m²
Preis: CHF 920’000.–
4½-Zimmer-Maisonette Nr. 5 (1.+2. Dachgeschoss)
ca. 150 m² Wohnfläche
Loggia: 9.3 m²
Preis: CHF 965’000.–
4½-Zimmer-Maisonette Nr. 6 (1.+2. Dachgeschoss)
ca. 144 m² Wohnfläche
Loggia: 9.3 m²
Preis: CHF 965’000.–

Verfügbarkeit

Bezugstermin:
1. Oktober 2026

Kosten

Kaufpreis:
CHF 920'000

Angaben

Objektkategorie
Eigentum
Objektreferenz
38289a1f-65b0-4cd4-ad9a-2d25cab87310
Adresse
Maugwilerstrasse 40
PLZ/Ort
9552 Bronschhofen
Region
Wil
Wohnfläche
109 m²
Anzahl Zimmer
4.5
Etage
1
Baujahr
2026

Merkmale und Ausstattung

Balkon
Lift
Garage
Parkplatz
Kinderfreundlich
Rollstuhlgängig
Minergie

Kontakt

Reto Weber
  • Reto Weber
  • W&W Finanz AG
  • gibt Ihnen gerne Auskunft.
  • Nummer Anzeigen

Auch inseriert auf:

homegate.ch