Wohnobjekt

4.5-LETZTE CHANCE: NUR NOCH 1 NEUBAU-4.5-ZIMMER-WOHNUNGEN IN SUBINGEN

CHF 690'000

 | 

95 m²

 | 

4.5 Zimmer

Luzernstrasse 26, 4553 Subingen

4.5-LETZTE CHANCE: NUR NOCH 1 NEUBAU-4.5-ZIMMER-WOHNUNGEN IN SUBINGEN - Karte
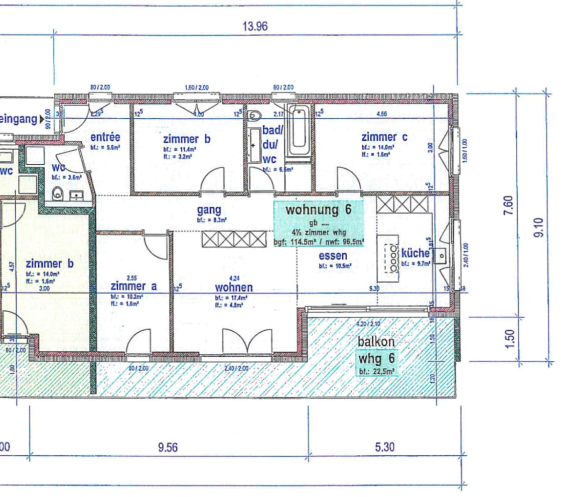
Neubau 2027: Diese lichtdurchflutete 4.5-Zimmer-Eigentumswohnung im 1. Obergeschoss (Ost) an der Luzernstrasse 26 in Subingen vereint moderne Architektur, Ruhe und Bergsicht - ideal für Alltag, Familie und Homeoffice.Wohnung & GrundrissCa. 95 m² Nettowohnfläche, BGF ca. 114.5 m²Grosszügiger Balkon ca. 22.5 m² mit BergsichtHeller Wohn-/Essbereich mit direktem BalkonzugangOffene Küche mit viel Stauraum3 Zimmer für Schlafen, Kinder oder BüroBad mit Dusche/WC plus separates Gäste-WCPraktischer Gang mit EinbauschränkenEigener Keller ca. 11 m² mit Waschmaschine/TumblerKomfort & EnergieLift - barrierearmer Zugang bis ins UntergeschossAngenehme BodenheizungEffiziente Luft-Wasser-Wärmepumpe, hochwertige GebäudehülleGebäude & ParkenKleines Mehrfamilienhaus mit 7 WohnungenTiefgarage im Haus; Einstellhallenplatz CHF 35'000Lage & AnbindungRuhige Wohnlage in Subingen mit guter ErreichbarkeitBhf. Deitingen ca. 2.5 km; A1-Anschluss Kriegstetten ca. 2.9 kmBus nach Solothurn Hbf ca. 15 Min.Erholung an der Emme und am Burgäschisee; Einkaufen in Subingen/DerendingenPreis & BezugKaufpreis CHF 690'000; Bezug ab Frühling 2027 (auf Anfrage)Moderner Ausbau, viel Tageslicht und ein grosser Aussenraum - die ideale 4.5-Zimmer-Wohnung in Subingen.

Kosten

Kaufpreis:
CHF 690'000

Angaben

Objektkategorie
Eigentum
Objektreferenz
a1eb1b12-8e3e-42e5-aff4-30928d98664e
Adresse
Luzernstrasse 26
PLZ/Ort
4553 Subingen
Region
Wasseramt
Wohnfläche
95 m²
Anzahl Zimmer
4.5
Etage
1
Baujahr
2027

Merkmale und Ausstattung

Balkon
Lift
Garage
Parkplatz

Kontakt

Markus Baschung
  • Markus Baschung
  • Baschung Immobilien GmbH
  • gibt Ihnen gerne Auskunft.
  • Nummer Anzeigen

Auch inseriert auf:

homegate.ch