Wohnobjekt

Modernes 5.5-Zimmer-Reihenhaus in Härkingen

CHF 1'100'000

 | 

145 m²

 | 

5.5 Zimmer

Fulenbacherstrasse 34, 4624 Härkingen

Modernes 5.5-Zimmer-Reihenhaus in Härkingen - Karte
Entdecken Sie dieses hochmoderne 5.5-Zimmer-Reihenhaus in Härkingen, das 2026 realisiert wird. Das Haus überzeugt mit folgenden Highlights:
Nachhaltige Bauweise: Minergie P-zertifiziert mit Solarpanels auf dem Dach und moderner Hybridbauweise
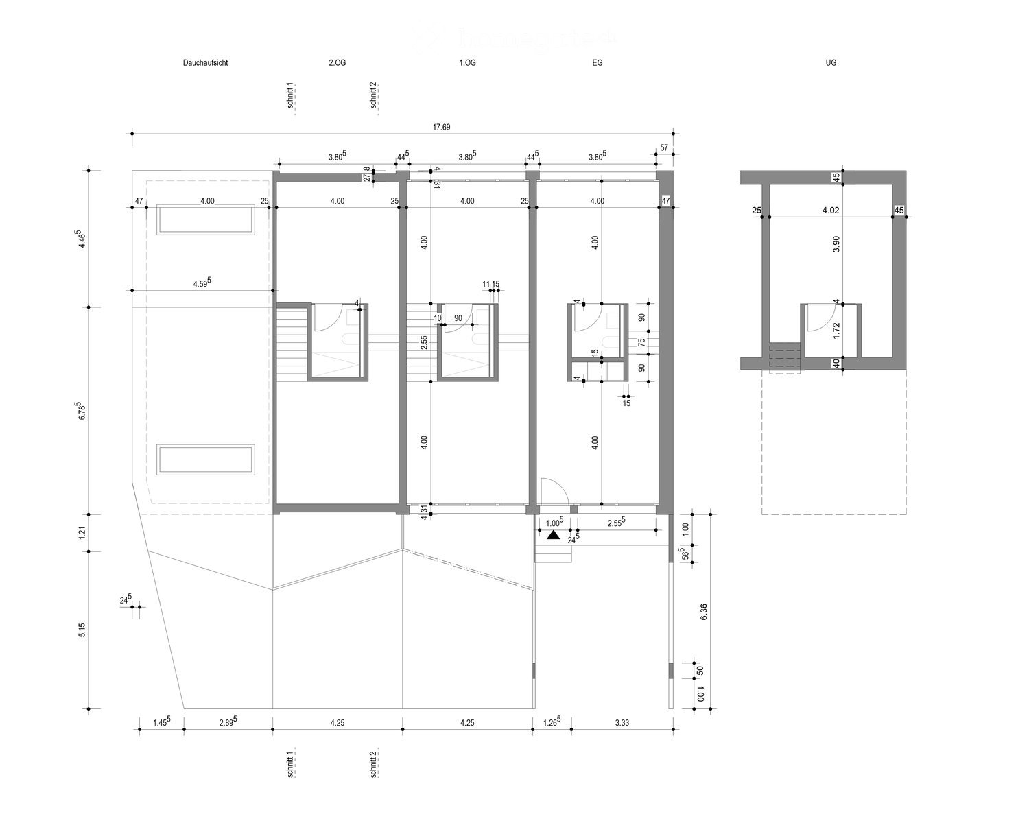
Grosszügige Raumaufteilung: 3 Schlafzimmer, 2 Bäder, offenes Wohnzimmer mit Küche
Outdoor-Bereiche: Balkon und Garten für entspannte Stunden im Freien
Komfortable Deckenhöhe: 2.5 Meter für ein grosszügiges Raumgefühl
Perfekte Lage für Familien: Die Primarschule Härkingen ist nur 1 Minute zu Fuss entfernt, während die Bushaltestelle "Pflug" in 3 Minuten erreichbar ist. Für den täglichen Einkauf steht ein Volg-Supermarkt in 14 Gehminuten zur Verfügung. Die Umgebung ist ruhig und bietet viel Sonnenschein, besonders in den Sommermonaten.
Dieses energieeffiziente Reihenhaus vereint moderne Architektur mit nachhaltiger Technologie und bietet Ihnen ein komfortables Zuhause in einer familienfreundlichen Gemeinde. Ideal für alle, die Wert auf Qualität, Nachhaltigkeit und eine zentrale Wohnlage legen.

Kosten

Kaufpreis:
CHF 1'100'000

Angaben

Objektkategorie
Eigentum
Objektreferenz
d3e16105-a585-4b63-9cf8-7e7ffa939ced
Adresse
Fulenbacherstrasse 34
PLZ/Ort
4624 Härkingen
Region
Gäu
Wohnfläche
145 m²
Grundstücksfläche
120 m²
Anzahl Zimmer
5.5
Baujahr
2026

Merkmale und Ausstattung

Balkon
Parkplatz
Kinderfreundlich
Minergie

Kontakt

Oegerli Markus
  • Oegerli Markus
  • gibt Ihnen gerne Auskunft.
  • Nummer Anzeigen

Auch inseriert auf:

homegate.ch