Wohnobjekt

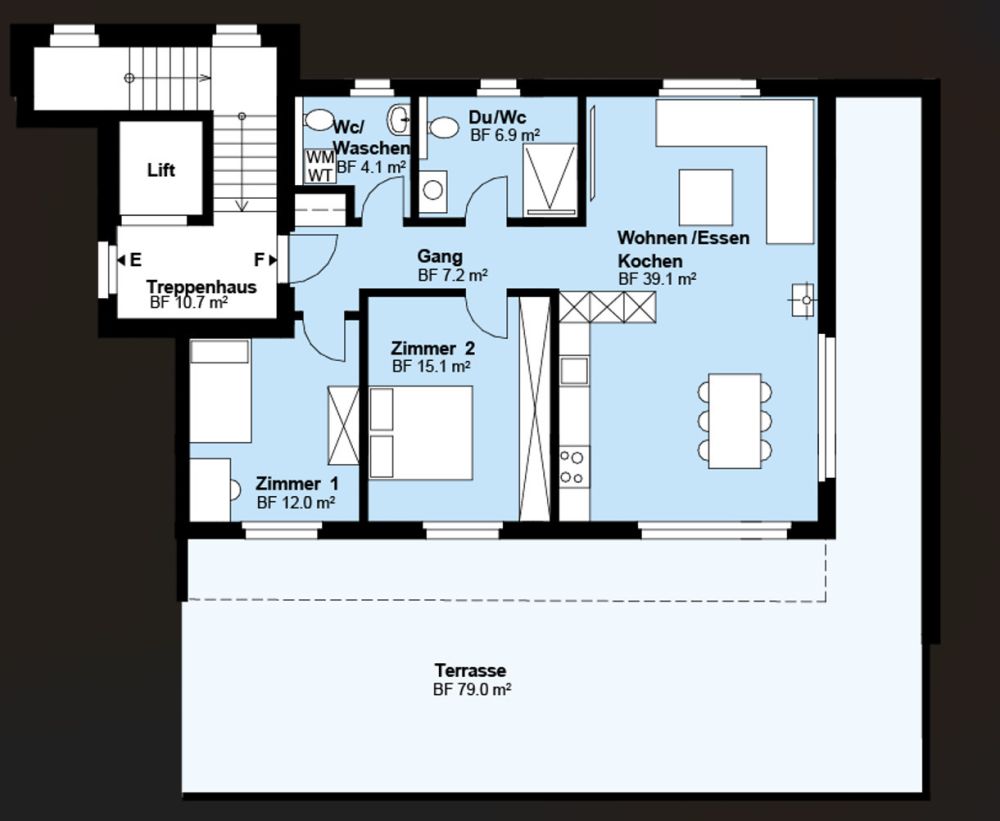
3.5 Z.-Attika-Wohnung (F), 84m2 Netto Wohnfläche, 79m2 Terrasse

CHF 760'000

 | 

100 m²

 | 

3.5 Zimmer

Fliederweg 19, 4562 Biberist

3.5 Z.-Attika-Wohnung (F), 84m2 Netto Wohnfläche, 79m2 Terrasse - Karte
Stadtnah wohnen, im Grünen lebenAm Fliederweg 19 in Biberist entsteht ein modernes Mehrfamilienhaus mit sechs hochwertigen Wohneinheiten die stilvolles Wohnen mit einem Maximum an Wohnqualität verbinden.Das Mehrfamilienhaus verfügt über vier 4.5-Zimmer und zwei 3.5-Zimmer-Attika-Wohnungen, liegt nur einen Katzensprung von Solothurn entfernt und vereint das Beste aus zwei Welten: Das entspannte Leben auf dem Land und die unmittelbare Nähe zu einer pulsierenden Stadt mit reichhaltigem Kultur-, Gastronomie- und Freizeitangebot.Die stilvoll gestalteten Grundrisse überzeugen durch ein offenes Wohnkonzept, dass zeitlose Eleganz mit maximalem Komfort verbindet.Der Innenausbau (Küche, Bäder, Boden-Wandbeläge und Elektroprojekt) kann anhand eines vorteilhaften Budgets mitgestaltet werden. Im Untergeschoss befindet sich die Tiefgarage, Fahrradraum, Kellerabteile und ein beheizter Aufenthaltsraum für regnerische Tage.Geplanter Bezugstermin ist Winter 2027.Angeboten wird die:3.5-Zimmer Attika-Wohnung F, mit 84m2 Netto-Wohnfläche, 79m2 Dachterrasse und Kellerabteil für CHF 760'000.- (Publizierte Visualisierungen im Inserat sind von der Whg. E)Weitere verfügbare Wohnungen finden Sie auf der Projekt-Webseite: www.fliederweg-biberist.ch2 Einstellhallenplätze für je CHF 35'000.- sind im Wohnungspreis nicht enthalten.Selbstverständlich stehen wir Ihnen für weitere Auskünfte oder einen Besprechungstermin gerne zur Verfügung.Sind Sie interessiert? Dann freuen wir uns über Ihre Kontaktaufnahme.

Kosten

Kaufpreis:
CHF 760'000

Angaben

Objektkategorie
Eigentum
Objektreferenz
468f9c4c-5d9e-41a9-95d4-3f8b1c629e60
Adresse
Fliederweg 19
PLZ/Ort
4562 Biberist
Region
Wasseramt
Wohnfläche
100 m²
Anzahl Zimmer
3.5
Baujahr
2026

Merkmale und Ausstattung

Lift
Garage
Parkplatz
Kinderfreundlich
Rollstuhlgängig

Kontakt

  • Swisstrend AG
  • Brunngrabenstrasse 2, 4500, Solothurn
  • Nummer Anzeigen

Auch inseriert auf:

homegate.ch