Wohnobjekt

Eine Symbiose aus Alt & Neu

CHF 850'000

 | 

97 m²

 | 

3.5 Zimmer

Allmendstrasse 16, 2544 Bettlach

Eine Symbiose aus Alt & Neu - Karte
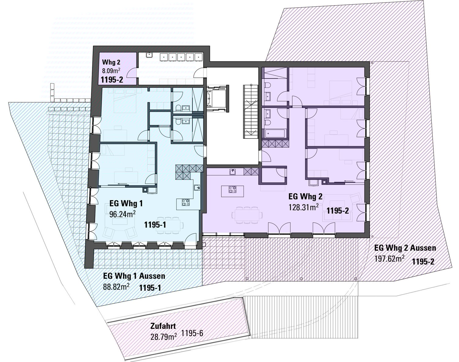
In einem 200-jährigen historischen Bauernhaus entstehen grosszügige & individuelle Wohnungen, welche die Authentizität der bestehenden Liegenschaft mit einer modernen Architektur verbinden. Geniessen Sie das attraktive Wohnen in Bettlach an einer erhöhten, sonnenverwöhnten Lage am Jurasüdhang mit schöner Weitsicht auf das Alpenpanorama. Die fünf exklusiven Eigentumswohnungen sind bequem mit dem Lift direkt von der Einstellhalle aus zugänglich und bieten barrierefreien Wohnkomfort. Grosszügige Wohnflächen, helle Räume und eine raffinierte Raumgestaltung bieten viel Platz für ein angenehmes Wohnfühlambiente. Der hochwertige Innenausbau verspricht beste Lebensqualität. Der helle Wohnbereich führt nahtlos zur modernen, offenen Küche mit Kochinsel, ausgestattet mit hochwertigen V-Zug-Geräten, Dampfgarer sowie Bora-Dampfabzug. Ein Schwedenofen lädt in der kalten Jahreszeit zum Verweilen ein. Jeweils zwei moderne Nasszellen überzeugen durch exklusiven Design. Sämtliche Wohnungen verfügen über attraktive Aussenräume; Garten, Terrassen, Sitzplätze oder Balkone. Mit Ihren individuellen Wünschen ergänzen Sie die hochwertige Architektur im Innenbereich.Nebenräume Das Untergeschoss beherbergt eine Einstellhalle mit 10 Parkplätzen, ein Veloabteil sowie vier Kellerräume. Optional können die Parkplätze mit Elektro-Ladestationen ausgestattet werden. Ein Wasch- und Trockenraum mit eigenen Waschmaschinen und Trocknern sowie ein weiterer Keller sind im Erdgeschoss eingeplant. Aussenraum Der grosse Garten mit einem idyllischen Bächlein und einer Vielzahl von Pflanzen und Bäumen lädt zum Entspannen und Geniessen in der Natur ein. Dieses stilvoll umgebaute Bauernhaus bietet die Möglichkeit, das Landleben in einer ruhigen und entspannten Atmosphäre zu geniessen, während die lebhaften Städte wie Solothurn und Biel in 10 bis 20 Minuten erreichbar sind. Ausbau & Energie Die Massivbauweise dieses Gebäudes garantiert nicht nur eine solide Struktur, sondern auch die ausgezeichnete Energieeffizienz. Eine moderne Photovoltaikanlage liefert nachhaltige, elektrische Energie für das Gebäude, währenddem die umweltfreundliche Erdsonden- Wärmepumpe für die Heiz- und Warmwasserversorgung verantwortlich ist. Das Fussbodenheizungssystem mit Kühlfunktion gewährleistet eine angenehme Raumtemperatur über das ganze Jahr. Die 3-fach Wärmeschutz-Isolierglasfenster bieten nicht nur eine optimale Wärmedämmung, sondern auch eine hervorragende Schallisolierung.

Kosten

Kaufpreis:
CHF 850'000

Angaben

Objektkategorie
Eigentum
Objektreferenz
16f0c389-7dc6-48a4-a482-d513431ee293
Adresse
Allmendstrasse 16
PLZ/Ort
2544 Bettlach
Region
Lebern
Wohnfläche
97 m²
Anzahl Zimmer
3.5
Etage
EG
Baujahr
2026

Merkmale und Ausstattung

Lift
Kinderfreundlich

Kontakt

Nicola Schneller
  • Nicola Schneller
  • Schneller Immobilien AG
  • gibt Ihnen gerne Auskunft.
  • Nummer Anzeigen

Auch inseriert auf:

homegate.ch