Wohnobjekt

Neubau - Top 3.5-Zi.-Attika-Wohnung in Reichenburg SZ

CHF 1'295'000

 | 

103 m²

 | 

3.5 Zimmer

Bahnhofstrasse 56, 8864 Reichenburg

Neubau - Top 3.5-Zi.-Attika-Wohnung in Reichenburg SZ - Karte
An attraktiver Lage an der Bahnhofstrasse 56 in Reichenburg im steuergünstigen Kanton Schwyz entsteht ein modernes Mehrfamilienhaus mit sechs grosszügigen Eigentumswohnungen. Reichenburg liegt idyllisch in der Nähe des Zürichsees, umgeben von den sanften Hügeln des Linthgebiets. Der Ort punktet mit seinem ländlichen Charme und einer hervorragenden Infrastruktur, die eine Vielzahl an Einkaufsmöglichkeiten sowie eine gute Verkehrsanbindung bietet.
Der Neubau profitiert von der unmittelbaren Nachbarschaft zu einem Landwirtschaftsgrundstück, wodurch er nicht nur von Ruhe, sondern auch von einem unverbaubaren Blick ins Grüne sowie auf die erste Hügelkette der Voralpen geniesst. Trotz der ruhigen Lage ist Ihr neues Zuhause hervorragend an die Verkehrswege angebunden: Der Bahnhof Reichenburg ist nur wenige Schritte entfernt und das Autobahnkreuz Reichenburg ermöglicht schnelle Verbindungen in Richtung Zürich, die Ostschweiz sowie in die Berge des Bündner- und Glarnerlands.
Diese exklusive 3.5-Zimmer-Attikawohnung mit 102.8 m2 und zwei grosszügigen Terrassen bietet Ihnen ein Wohnerlebnis mit viel Privatsphäre und schönem Blick in die Weite!
Ihre neues Zuhause bietet folgende Highlights:
Attraktive, offene Wohnküche mit exklusivem Ausbaustandard
Weingenuss aus Ihrem in der Küche integrierten Weinschrank mit Platz für bis 40 Flaschen – ein wahrer Blickfang!
Sofort heisses Wasser aus dem Küchenhahn dank eingebautem Quooker
Grosszügige Wohnatmosphäre durch zwei Terrassen mit insgesamt 52 m² und unterschiedlichen Ausrichtungen
Ein praktisches Reduit kombiniert mit dem Waschturm bietet viel Spielraum
Attrakives Badezimmer mit moderner Ausstattung
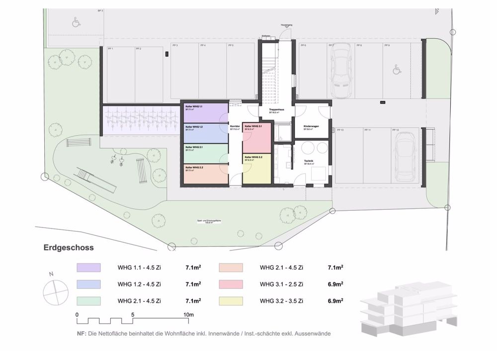
6.9 m2 grosses Kellerabteil im Erdgeschoss
Überschaubare Stockwerkeigentümer-Gemeinschaft mit nur 6 Einheiten
Gedeckte Parkplätze im Erdgeschoss sind für CHF 41'000.- verfügbar. Alle Parkplätze sind bereits mit der E-Mobility-Infrastruktur inklusive Lastenmanagement ausgestattet – Sie müssen nur noch Ihre Wallbox anschliessen, um Ihr Elektroauto bequem zu Hause zu laden.
Willkommen in Ihrem neuen Zuhause! Wir freuen uns, von Ihnen zu hören!

Kosten

Kaufpreis:
CHF 1'295'000

Angaben

Objektkategorie
Eigentum
Objektreferenz
46cedf5a-152d-43a9-b47e-078347af163b
Adresse
Bahnhofstrasse 56
PLZ/Ort
8864 Reichenburg
Region
March
Wohnfläche
103 m²
Anzahl Zimmer
3.5
Etage
3
Baujahr
2027

Merkmale und Ausstattung

Schöne Aussicht

Kontakt

  • Kiboko GmbH
  • Sihlboden 2, 8847, Egg SZ
  • Nummer Anzeigen

Auch inseriert auf:

immoscout24.ch