Wohnobjekt

Maisonette-Neubauwohnung | 30er-Zone und sicherer Schulweg

CHF 1'770'000

 | 

172 m²

 | 

6.5 Zimmer

Alte Gasse 8, 6440 Brunnen

Maisonette-Neubauwohnung | 30er-Zone und sicherer Schulweg - Karte
Im Zentrum von Brunnen, in einer verkehrsberuhigten 30er-Zone, sind zwei aneinandergrenzende Mehrfamilienhäuser mit jeweils zwei Wohneinheiten, je einem Gewerbeteil sowie einer gemeinsamen Einstellhalle geplant.
Insgesamt entstehen vier Wohnungen, zwei Gewerbeflächen und Parkplatzmöglichkeiten.
2 Gewerberäume EG, reserviert
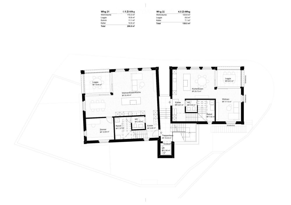
2.5-Zi-Whg, 1. OG, 60.7m2, Aussenfläche 8.6m2, CHF 800'000.-
3.5-Zi-Whg 1. OG, 83.5m2, Aussenfläche 104.5m2, RESERVIERT
4.5-Zi-Whg, 2.OG/DG, 123.8m2, Aussenfläche 8.6m2, CHF 1'400'000.-
6.5-Zi-Whg, 2.OG/DG, 172.3m2, Aussenfläche 10.8m2, CHF 1'770'000.-
6 Parkplätze à je CHF 50'000.-
Wohnungsmix und Highlights
Idealer Wohnungs-Mix: 2.5-, 3.5-, 4.5- und 6.5-Zimmer-Wohnungen
Für mehr Privatsphäre und Komfort wurden die Balkone versetzt angeordnet und jede Wohnung auf einer eigenen Etage geplant
Absolutes Highlight: Zwei Maisonettewohnungen in den oberen Stockwerken
Großzügige Grundrisse und erstklassige Wohnqualität
Bauzeitplan und Individualität
Baustart: Februar 2026
Rohbauende: ca. Ende 2026
Fertigstellung: ca. Sommer | Herbst 2027
Ausbauvarianten können nach Ihren Wünschen berücksichtigt werden
Schule
Die Schule (Kindergarten bis Oberstufe) liegt nur ca. 500m entfernt – und das auf einem sicheren und kinderfreundlichen Schulweg. Entlang der ruhigen Schulstrasse in der 30er-Zone, ohne Hauptverkehr und abseits belebter Strassen.
Gerne senden wir Ihnen die ausführliche Verkaufsdokumentation zu. Wir freuen uns auf Ihre Kontaktaufnahme.

Kosten

Kaufpreis:
CHF 1'770'000

Angaben

Objektkategorie
Eigentum
Objektreferenz
fb48961a-8e2e-4419-9cb9-275a45082082
Adresse
Alte Gasse 8
PLZ/Ort
6440 Brunnen
Region
Schwyz
Wohnfläche
172 m²
Anzahl Zimmer
6.5
Etage
2
Baujahr
2026

Merkmale und Ausstattung

Balkon
Lift
Garage

Kontakt

Marina Fischer | Fischer Immobilienberatung
  • Marina Fischer | Fischer Immobilienberatung
  • gibt Ihnen gerne Auskunft.
  • Nummer Anzeigen

Auch inseriert auf:

homegate.ch