Wohnobjekt

Doppeleinfamilienhaus mit Sicht in die Weinberge

CHF 1'021'000

 | 

165 m²

 | 

5.5 Zimmer

Langwis 4, 8219 Trasadingen

Doppeleinfamilienhaus mit Sicht in die Weinberge - Karte
5 1/2-Zimmer Doppeleinfamilienhaus
 

Im idyllischen Trasadingen bieten wir Ihnen Ihr neues Zuhause in einem familienfreundlichen, neuen Einfamilienhausquartier an. Es entstehen 5 Einfamilienhäuser und 2 Doppeleinfamilienhäuser.

Unser Projektvorschlag bezogen auf ein Hausteil des Doppeleinfamilienhauses bietet folgendes Raumangebot:

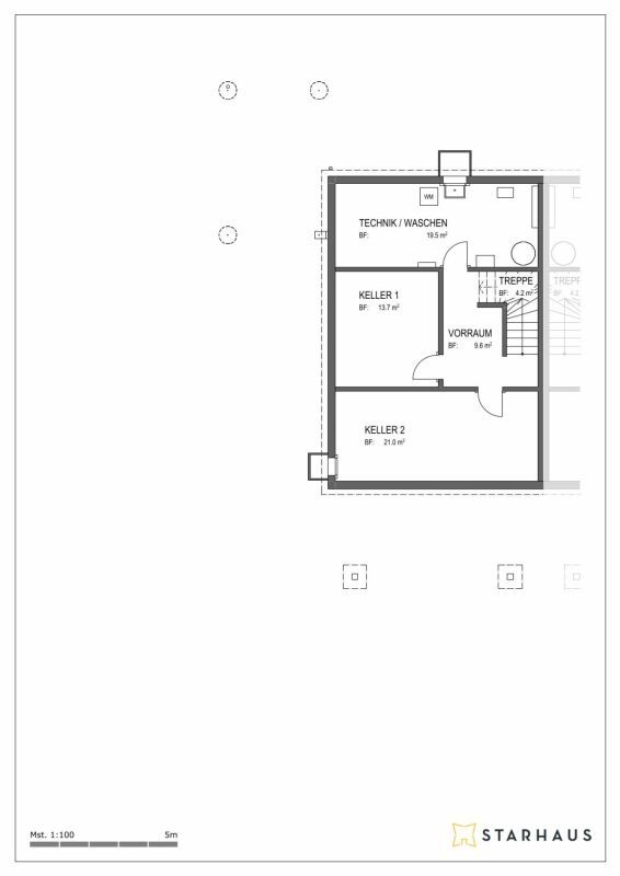
Untergeschoss: Geräumiger Vorraum mit Treppe zum Erdgeschoss
Technik/Waschen mit Heizung Luft/Wasser-Wärmepumpe (Bodenheizung), Wechselrichter für PV-Anlage, Boiler, Waschmaschine und Ausgussbecken
Zwei grosse Kellerräume

Erdgeschoss: Eingang mit Treppe zu Unter- und Obergeschoss
Gäste-WC
Küche mit Kochinsel
Büro
Wohn- und Esszimmer mit grossflächigen, raumhohen Fensterfronten die auf den gedeckten Sitzplatz bzw. in den Garten führen

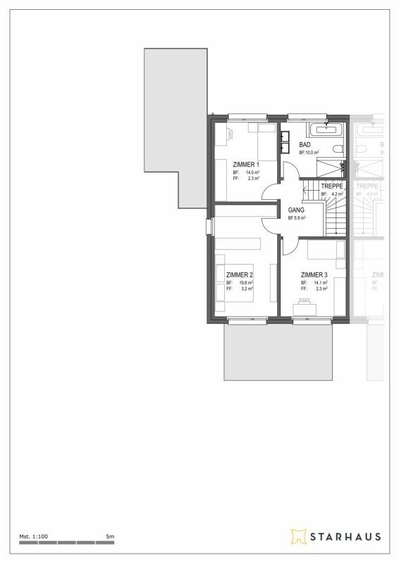
Obergeschoss: Gang mit Treppe zu Erdgeschoss
Grosses Elternzimmer mit Ankleide
Zwei grosszügige Zimmer
geräumiges Bad mit begehbarer Dusche, Badewanne und Doppellavabo

Als Option:
Auf Wunsch ist ein erweitertes Raumprogramm möglich: Zum Beispiel einen angebauten Carport oder eine Einzelgarage, ebenfalls ist ein Attikageschoss mit Flachdach umsetzbar.

Diese Projektidee ist eine Option, wie die Grundrisse gestaltet werden können. Gerne nehmen wir Ihre persönlichen Wünsche entgegen und planen Ihr individuelles Traumhaus.

Haben wir Ihr Interesse geweckt? Wir freuen uns auf Ihre Kontaktaufnahme.

Starhaus AG

Beatrice Metzger / Jeannette Osterwalder

[email protected]
         +41 71 788 20 00     

Was uns an diesem Projekt und an Trasadingen besonders gefällt!
Neues, bezahlbares Bauquartier mit Einfamilien-  oder Doppelhäusern
Bauherren können mitbestimmen und ihre individuellen Wünsche verwirklichen
Freunde oder Familien haben die Option, zwar in der Nähe von einander zu wohnen, aber doch in getrennten Häusern
Es sind kleinere Eigenheime für Singles oder Paare aber auch grössere Häuser für Familien mit Kindern möglich
Von Vorteil ist die Nähe zum Flughafen, zu  Zürich und Schaffhausen aber auch zu den benachbarten deutschen Städten
Zusammenarbeit mit ausgewiesenen Fachspezialisten mit langjähriger Projektrealisierung im Hausbau
Grenznähe mit all dem Mehrwert, die eine Grenzregion bietet
Erweiterte Einkaufsmöglichkeiten in Erzingen De, in 3 Minuten Fahrdistanz
Das Landleben und die Weinberge zu geniessen und trotzdem in rund einer halben Stunde am Flughafen zu sein
Bahnhof in Gehdistanz von 6 Minuten, Busverbindungen
Einkauf in Gehdistanz
Kindergarten, Primarschule im Dorf und Oberstufe im Nachbardorf Wilchingen
 
Baubeginn der ersten Häuser im Frühjahr 2025

Kosten

Kaufpreis:
CHF 1'021'000

Angaben

Objektkategorie
Eigentum
Objektreferenz
bc2c7c14-75e8-49d8-9636-fe705391f04b
Adresse
Langwis 4
PLZ/Ort
8219 Trasadingen
Region
Unterklettgau
Wohnfläche
165 m²
Grundstücksfläche
391 m²
Anzahl Zimmer
5.5
Baujahr
2026

Merkmale und Ausstattung

Kabelfernsehen
Parkplatz
Kinderfreundlich

Kontakt

  • Starhaus AG
  • Eisenbahnstrasse 41, 9400, Rorschach
  • Nummer Anzeigen

Auch inseriert auf:

icasa.ch
Anbieter kontaktieren
Anbieter kontaktieren