Wohnobjekt

Wunderschöne 2.5 Zimmer DG Maisonett Wohnung

CHF 690'000

 | 

93 m²

 | 

2.5 Zimmer

Oberdorf 42, 8222 Beringen

Wunderschöne 2.5 Zimmer DG Maisonett Wohnung - Karte
Wohnen mit Aussicht – 7 neue Eigentumswohnungen in 8222 Beringen
Neubau | 2.5 bis 5.5 Zimmer | 90–135 m² | Lift | Balkon/Terrasse | Baubeginn 2024
Ankommen, aufatmen, geniessen. In Beringen, nur wenige Minuten von Schaffhausen entfernt, entsteht ein modernes Mehrfamilienhaus mit 7 Eigentumswohnungen, die durch Qualität, Komfort und Weitsicht überzeugen.
Ob praktische 2.5-Zimmer-Wohnung oder grosszügige 5.5-Zimmer-Maisonette – hier finden Sie Ihr neues Zuhause.
Das erwartet Sie:
2.5 bis 5.5 Zimmer mit durchdachten Grundrissen
Balkon oder Terrasse mit Blick in den Klettgau
Lift von der Tiefgarage bis zur Wohnung – barrierefrei
Kellerabteile & 11 Tiefgaragenplätze
Rohbau wird im Moment erstellt.
Zentrale Lage nahe Schule, ÖV & Einkaufsmöglichkeiten
Wohnflächen & Typen:
90–135 m² Wohnfläche
Balkonflächen bis 23 m²
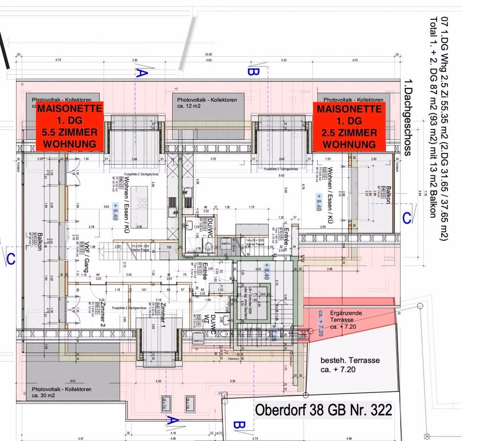
Maisonette-Wohnungen im Dachgeschoss
Jede Wohnung mit eigenem grosszügigen Keller
Aufteilung:
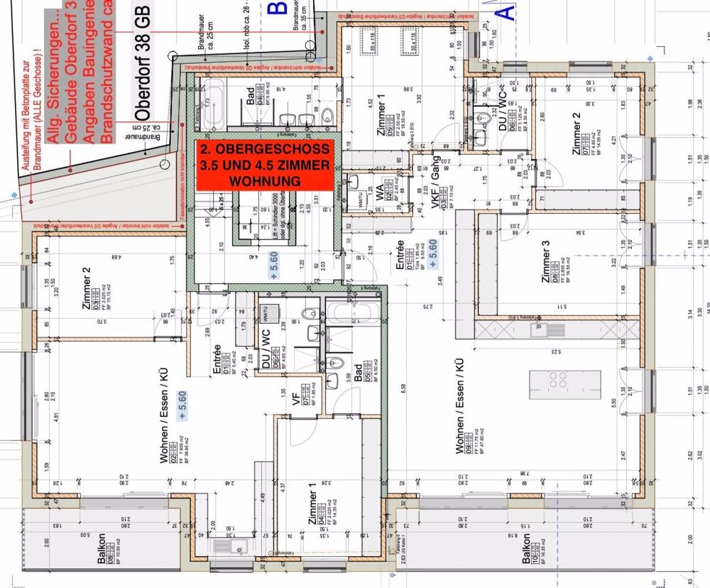
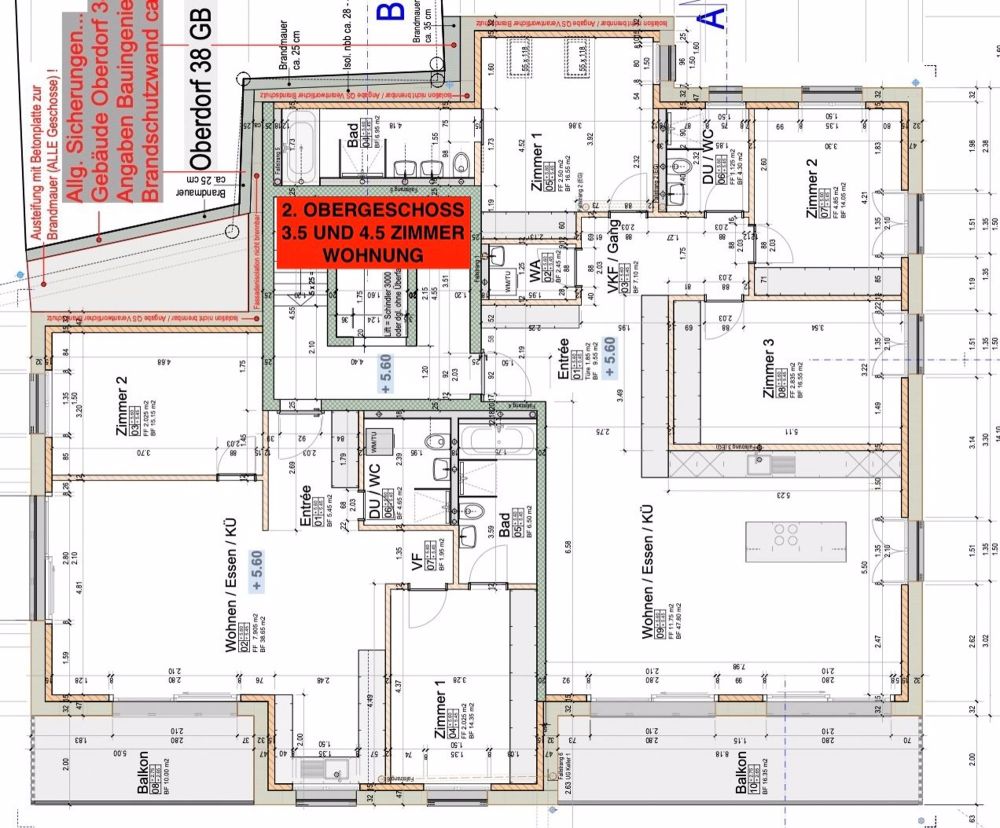
EG: 31/2 Zimmer Wohnung mit 110 m2, Sitzplatz 23 m2 und Keller 22m2 Fr. 790`000
1. OG: 31/2 Zimmer Wohnung mit 90m2, Balkon 10m2, Terrasse über der Tiefgarage und Keller 12 m2 Fr. 749`000
1. OG: 41/2 Zimmer Wohnung mit 125m2, Balkon 16.25 m2 und Keller 14.5 m2 VERKAUFT
2. OG : 31/2 Zimmer Wohnung mit 90m2, Balkon 10m2 und Keller 12 m2. VERKAUFT
2. OG: 41/2 Zimmer Wohnung mit 125m2, Balkon 16.25 m2 und Keller 14.5 m2. Fr. 960`000
DG: 51/2 Zimmer Maisonette Wohnung mit 135m2, Balkon 23m2 und Keller 15m2 VERKAUFT
DG: 21/2 Zimmer Maisonette Wohnung mit 93 m2, Balkon 14m2 und Keller 12m2. Fr. 690`000.-
11 Tiefgaragenplätze à Fr. 42`000.- und natürlich Besucherparkplätze
Lebenswert & zukunftssicher: Die Gemeinde Beringen punktet mit tiefer Steuerlast, hoher Lebensqualität und stabil wachsendem Immobilienmarkt (+25.7 % in 5 Jahren).
???? Jetzt anfragen & Exposé sichern – Ihr neues Zuhause wartet!

Kosten

Kaufpreis:
CHF 690'000

Angaben

Objektkategorie
Eigentum
Objektreferenz
37888067-69ae-42c5-babf-842870b3ea03
Adresse
Oberdorf 42
PLZ/Ort
8222 Beringen
Region
Schaffhausen
Wohnfläche
93 m²
Anzahl Zimmer
2.5
Etage
3
Baujahr
2025

Merkmale und Ausstattung

Haustiere erlaubt
Balkon
Kabelfernsehen
Lift
Garage
Schöne Aussicht
Parkplatz
Kinderfreundlich
Rollstuhlgängig

Kontakt

Andreas Weber
  • Andreas Weber
  • HT2 House & Technic GmbH
  • gibt Ihnen gerne Auskunft.
  • Nummer Anzeigen

Auch inseriert auf:

homegate.ch