Wohnobjekt

Moderne 4,5-Zimmer-Villa in Fontainemelon mit herrlicher Aussicht

CHF 905'000

 | 

4.5 Zimmer

2052 Fontainemelon

Moderne 4,5-Zimmer-Villa in Fontainemelon mit herrlicher Aussicht - Karte
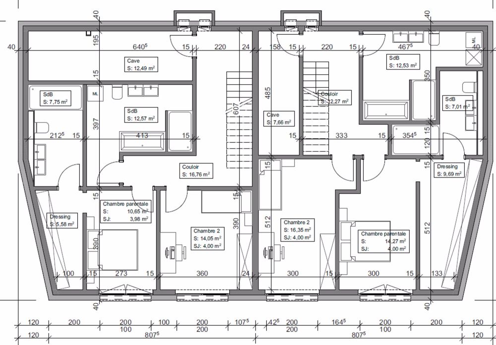
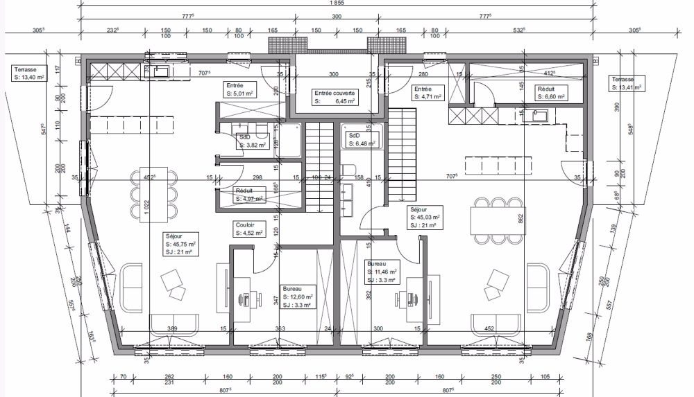
ZU VERKAUFEN - EINZELNE VILLA INNENBESCHREIBUNG Erdgeschoss oben Außen-Eingangshalle Parkplatz Eingangshalle Treppe zum unteren Geschoss Ein Badezimmer, Badewanne Ein Schlafzimmer Wohnbereich (Wohnzimmer, Esszimmer, Küche) mit Ausgang zum Außenbereich durch eine Fenstertür Terrasse Erdgeschoss unten Treppe zum oberen Erdgeschoss Flur 3 Schlafzimmer Ein Badezimmer, Dusche einschließlich Anschluss für Waschmaschine Technikraum – verfügbar Fahrradkeller AUßENBESCHREIBUNG Zugang zum Parkplatz Terrasse Westen « Sonnenuntergang » (Gemäß Plan der Außenanlagen und Vermessung für die parzellierte Aufteilung) BESCHREIBUNG DER WOHNFLÄCHEN Flächen in m2 gemäß Baugenehmigungsplänen / die Dicke der Wände und der technischen Schächte kann erhöht und bei der Ausführung des Werks im Ausführungsstadium erscheinen. CHF 940'000.00 mit einem Parkplatz ZU VERKAUFEN - ZWEI ANGRENZENDE VILLEN INNENBESCHREIBUNG Erdgeschoss oben Außen-Eingangshalle Parkplatz Eingangshalle Großer Abstellraum Treppe zum unteren Geschoss Ein Badezimmer, Dusche Büro / Schlafzimmer Wohnbereich (Wohnzimmer, Esszimmer, Küche) mit Ausgang zum Außenbereich durch eine Fenstertür Terrasse Fahrradkeller Erdgeschoss unten Treppe zum oberen Erdgeschoss Flur 2 Schlafzimmer Ein Elternschlafzimmer mit Ankleide und Badezimmer Ein Badezimmer mit Badewanne einschließlich Anschluss für Waschmaschine Technikraum – verfügbar – Keller AUßENBESCHREIBUNG Zugang zum Parkplatz Balkon und privater Garten (Gemäß Plan der Außenanlagen und Vermessung für die parzellierte Aufteilung) BESCHREIBUNG DER WOHNFLÄCHEN (NETTO-WOHNFLÄCHEN INNEN MIT ABZUG DER WÄNDE, MINDESTHÖHE 150CM) Flächen in m2 gemäß Baugenehmigungsplänen / die Dicke der Wände und der technischen Schächte kann erhöht und bei der Ausführung des Werks im Ausführungsstadium erscheinen. CHF 925’000.00 (geschätzt) mit einem Parkplatz CHF 955’000.00 (Westen) mit einem Parkplatz Zwei verbleibende Parkplätze; 20’000.00 / Platz Die Villen bieten ein integriertes Komfortkühlsystem – eine innovative Lösung, die die Heizungsschleifen des Fußbodenheizungssystems nutzt. Keine zusätzliche Installation erforderlich: Das Fußbodenheizungssystem ermöglicht eine naturliche Kühlung der Villen im Sommer (« Freecooling »), während es im Winter die Heizung sicherstellt. Ergebnis: optimaler Komfort das ganze Jahr über, mit einer effizienten, umweltfreundlichen und wirtschaftlichen Technologie. ??? Die Villen sind « nach Ihrem Geschmack ». Auswahl der Materialien durch die Käufer. Für weitere Informationen besuchen Sie unsere Website www.tala.ch oder kontaktieren Sie uns direkt. Nicht verbindliche Illustrationen.

Verfügbarkeit

Ab Sofort

Kosten

Kaufpreis:
CHF 905'000

Angaben

Objektkategorie
Eigentum
Objektreferenz
440db3e2-4adb-4ab3-916c-325e6d9057fb
PLZ/Ort
2052 Fontainemelon
Region
District du Val-de-Ruz
Anzahl Zimmer
4.5
Baujahr
2026

Merkmale und Ausstattung

Balkon
Feuerstelle
Schöne Aussicht
Kinderfreundlich

Kontakt

  • Tala Agence Immobilière Sàrl
  • Route de Bayerel 8, 2063, Engollon
  • Nummer Anzeigen

Auch inseriert auf:

homegate.ch