Kaufen
Mieten
Premium-Abo
FAQ
Inserieren
Anbieter
Immobilien Ratgeber
Testimonials & Referenzen
Marketing
Newsletter anmelden
Jetzt Anmelden!
Kontakt
Über uns
AGB
Kaufen
Mieten
Premium-Abo
FAQ
Inserieren
Mehr..
Anbieter
Immobilien Ratgeber
Testimonials & Referenzen
Marketing
Newsletter anmelden
Merkliste
Anmelden
Anmelden
Passwort vergessen?
Benutzername oder E-Mail-Adresse
Passwort
Angemeldet bleiben
Anmelden
Noch nicht registriert?
Kostenlos registrieren und Suchprofil erstellen
Als Immobilien-Anbieter registrieren
Mein Konto
Meine Suchprofile
Einstellungen
Premium Abonnement
Hilfebereich
Logout
Exklusiv Recherchiert
Publiziert am 29.10.2025.
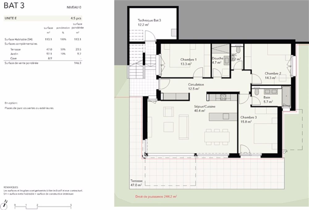
Wohnobjekt
Résidence AZUR - Luxuswohnungen in Auvernier
CHF
1'550'000
|
4.5
Zimmer
Kontakt
Auch inseriert auf:
urbanhome.ch
Route de la Gare 26, 2012 Auvernier
Karte anzeigen
Karte vergrössern
4.5 Zimmer Wohnung
Mehr Text sehen
Kosten
Kaufpreis:
CHF 1'550'000
Angaben
Objektkategorie
Eigentum
Objektreferenz
4d3de44c-3357-4883-9eae-2bd8c16173e8
Adresse
Route de la Gare 26
PLZ/Ort
2012
Auvernier
Region
District de Boudry
Anzahl Zimmer
4.5
Etage
1
Baujahr
2025
Kontakt
Auch inseriert auf:
urbanhome.ch
Ihre letzten Ansichten