Wohnobjekt

***Neues entsteht*** 2. Obergeschoss? Schlage...

CHF 760'400

 | 

104 m²

 | 

3.5 Zimmer

6110 Wolhusen

***Neues entsteht*** 2. Obergeschoss? Schlage... - Karte
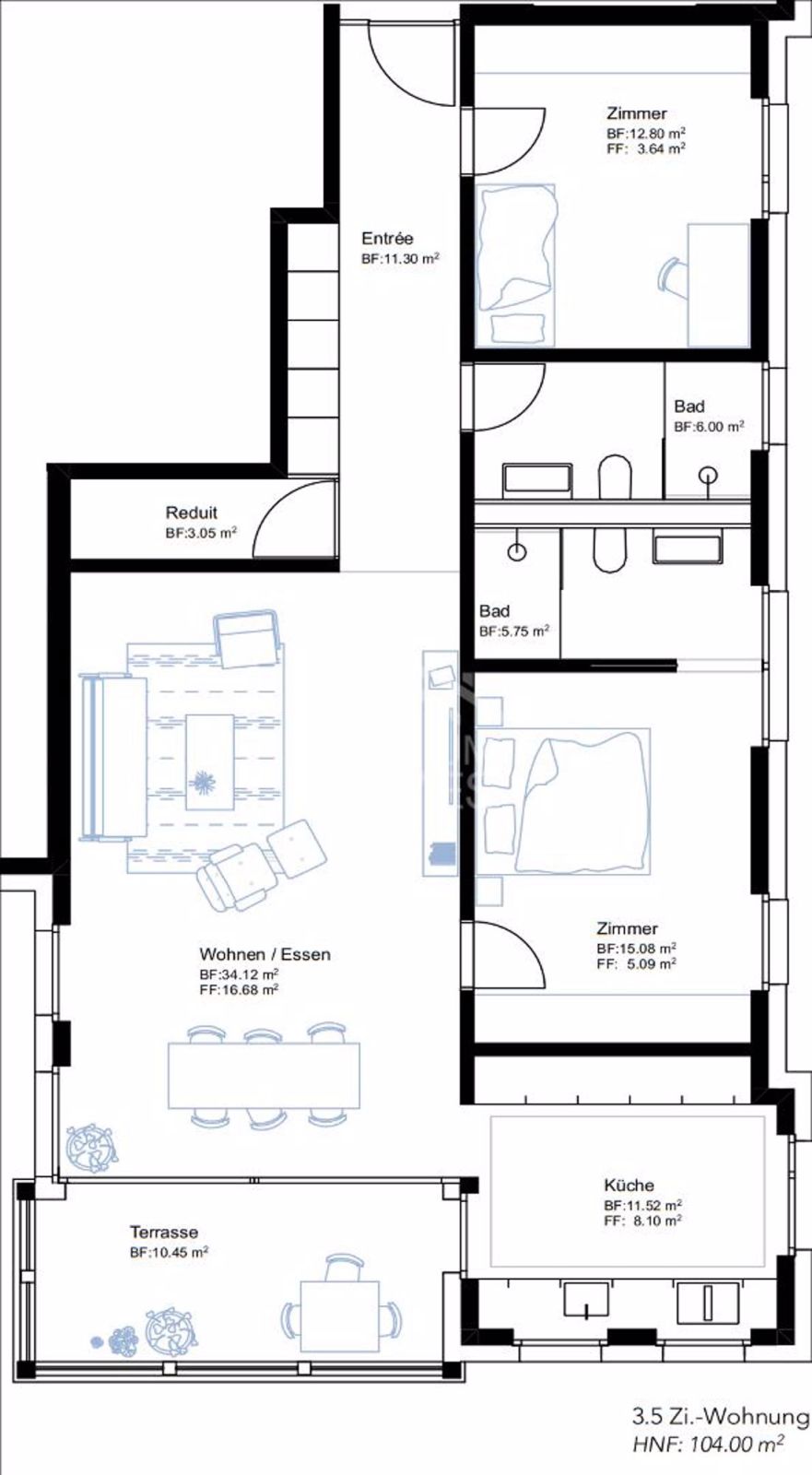
Willkommen zu Ihrem neuen Zuhause in der malerischen Kirchgasse 6 in Wolhusen. Diese moderne Wohnung in einem Neubau bietet 3.5 Zimmer auf der 2. Etage mit einer geräumigen Wohnfläche von 104m² und einem grosszügigen Grundstück von 747m². Der Baustart ist im Herbst 2025 geplant und ab Frühling 2027 kann die Wohnung bezogen werden. Die Wohnung verfügt über zwei Schlafzimmer, zwei Nasszellen, ein Reduit und einen Tiefgaragenplatz mit Vorbereitung für eine Ladestation für Elektroautos. Ein eigener Waschturm im Keller, eine Wärmepumpe, individuell regulierbare Fussbodenheizung und eine Entkalkungsanlage runden das Angebot ab. ***Detaillierte Angaben sind im Baubeschrieb vorhanden*** Lassen Sie sich Ihre Wohnträume erfüllen und besprechen Sie individuelle Anpassungen oder persönliche Wünsche gemeinsam im Detail. Diese Wohnung bietet Ihnen nicht nur ein stilvolles Zuhause, sondern auch eine erstklassige Lebensqualität in einer charmanten Umgebung. Hier werden also keine Wünsche offen gelassen. Profitieren Sie und überzeugen Sie sich selbst! Dieses PREMIUM HOMES Angebot bietet:Baustart Herbst 2025 - Bezug Frühling 20272. ObergeschossWohnfläche 104m²2x Schlafzimmer1x BAD/WC 1x DU/WC1x Reduit1x Tiefgaragenplatz (exkl. CHF 31`000.-)Vorbereitung Ladestation ElektroautoKeller mit eigenem WaschturmWärmepumpeBodenheizung individuell regulierbarEntkalkungsanlageInteressiert? Gerne führen wir Sie durch eine unverbindliche Besichtigung! Sie wollen Ihr Haus oder Ihre Wohnung sorgenfrei verkaufen? Wir sagen Ihnen den aktuellen Marktwert Ihrer Immobilie, diskret und unverbindlich! Haben Sie Interesse an einem ersten unverbindlichen Gedankenaustausch? Zögern Sie nicht und kontaktieren Sie uns. Wir freuen uns auf Sie.

Kosten

Kaufpreis:
CHF 760'400

Angaben

Objektkategorie
Eigentum
Objektreferenz
e21b9e85-eb63-4516-8eb8-040d167e0668
PLZ/Ort
6110 Wolhusen
Region
Entlebuch
Wohnfläche
104 m²
Grundstücksfläche
747 m²
Anzahl Zimmer
3.5
Etage
2
Baujahr
2025

Merkmale und Ausstattung

Balkon
Lift
Rollstuhlgängig

Kontakt

  • PREMIUM HOMES AG
  • Biberiststrasse 4, 4563, Gerlafingen

Auch inseriert auf:

homegate.ch