Wohnobjekt

Moderne 5.5-Zimmer-Neubau-Gartenwohnung mit Einstellhalle in Ruswil

CHF 1'085'000

 | 

141 m²

 | 

5.5 Zimmer

Spyrweg 8, 6017 Ruswil

Moderne 5.5-Zimmer-Neubau-Gartenwohnung mit Einstellhalle in Ruswil - Karte
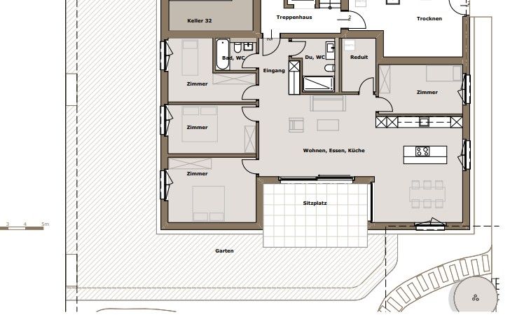
Diese attraktive 5.5-Zimmerwohnung im Gartengeschoss entsteht in einem neuen Mehrfamilienhaus mit einem Wohnungsmix aus 2½- bis 5½-Zimmerwohnungen die unterschiedliche Wohnbedürfnisse abdecken. Ergänzend stehen eine grosszügige Einstellhalle und ausreichend Besucherparkplätze zur Verfügung. Die Wohnung verfügt über eine grosszügige Raumaufteilung und einen hohen Wohnkomfort. Der Lift führt bei allen Geschossen direkt zur Wohnung. Der offene und lichtdurchflutete Wohn- und Essbereich mit grosszügiger Küche bildet das Herzstück der Wohnung. Grosse Fensterfronten sorgen für angenehme Belichtung und eine freundliche Atmosphäre.
Jede Wohnung verfügt über zwei Nasszellen, Reduit mit Waschen und einer Loggia.
Die Wohnung befindet sich in unmittelbarer Nähe zu öffentlichen Verkehrsmitteln, Einkaufsmöglichkeiten und Freizeitangeboten. Zur Wohnung gehören ein Parkplatz in der Einstellhalle für CHF 37'000 ein Töff Parkplatz in der Einstellhalle für CHF 4'000.

Kosten

Kaufpreis:
CHF 1'085'000

Angaben

Objektkategorie
Eigentum
Objektreferenz
801e397f-4cb0-4f88-b910-584ef42aa375
Adresse
Spyrweg 8
PLZ/Ort
6017 Ruswil
Region
Sursee
Wohnfläche
141 m²
Anzahl Zimmer
5.5
Etage
EG
Baujahr
2027

Merkmale und Ausstattung

Balkon
Lift
Garage
Kinderfreundlich

Kontakt

Rozeta Komani
  • Rozeta Komani
  • Massplan AG
  • gibt Ihnen gerne Auskunft.

Auch inseriert auf:

homegate.ch