Wohnobjekt

BAUSTART erfolgt ... neu - modern - grosszügig

CHF 1'350'000

 | 

135 m²

 | 

4.5 Zimmer

Rütistrasse 30, 6032 Emmen

BAUSTART erfolgt ... neu - modern - grosszügig - Karte
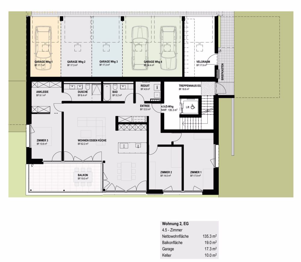
Wir freuen uns, Ihnen dieses Wohnprojekt vorstellen zu dürfen, das modernen Wohnkomfort mit naturnahem Lebensraum vereint. Der Baustart ist in der Zwischenzeit erfolgt und dem Bezug per Ende 2026 / Anfang 2027 steht nichts mehr im Wege. Hier geniessen Sie die perfekte Kombination aus zentraler Lage in unmittelbarer Nähe zum Naherholungsgebiet. Bushaltestelle, Einkaufen, Schule und Freizeitmöglichkeiten liegen in Fusswegdistanz. Der freie Blick auf die Zentralschweizer Alpen und die optimale Besonnung dank idealer Südausrichtung sind in Kombination mit der zentrale Wohnlage absolute Highlights dieser 4.5-Zimmerwohnungen. Unser Angebot Am Rande der Landwirtschaftszone gelegen, entstehen an der Rütistrasse 30 in Emmen vier grosszügige und moderne 4.5-Zimmerwohnungen mit herrlichem Weitblick. Hier erwartet Sie moderner Wohnkomfort mit qualitativ hochwertigen Materialien. Die grosszügig konzipierten Wohnungen bieten Platz für jedes Bedürfnis. Jede Wohnung verfügt über einen offenen und lichtdurchfluteten Wohn-, Ess- und Küchenbereich. Die Küche überzeugt mit der Kombination der Materialien, viel Stauraum und hochwertigen Geräten – einfach genial. Ess- und Wohnzimmer gliedern sich harmonisch gegen Süden. Die Aussenfläche erweitert in den Sommermonaten Ihren Wohnbereich. Geniessen Sie den traumhaften, unverbauten Weitblick in die Berge. Die Schlafräume lassen Sie entspannen und können individuell genutzt werden. Jede Wohnung verfügt über zwei Nasszellen. Der Masterbedroom mit Bad en-suite hat zusätzlich eine begehbare, grosszügige Ankleide. Die begehbare Dusche, die Badewanne und die modernen Armaturen, lassen sich nach Ihren Vorstellungen gestalten. Jede Wohnung verfügt über einen eigenen privaten Waschturm im Reduit oder Badezimmer, direkt in der Wohnung. Selbstverständlich gehört zu jeder Wohnung auch ein Kellerabteil im Untergeschoss, welches Sie bequem mit dem Lift erreichen. Sie benötigen zusätzlichen Platz für Ihr Hobby? Es besteht die Möglichkeit den Hobbyraum zu erwerben. Hier haben Sie die Möglichkeit die Fläche individuell, nach Ihren Bedürfnissen zu nutzen. Zu jeder Wohnung gehört eine Einzelgarage, mit der Möglichkeit ein zweites Auto vor der Garage zu parkieren. Sie sind an weiteren Informationen interessiert oder haben noch Fragen zu diesen spannenden Wohnungen? Gerne stehen wir Ihnen persönlich zur Verfügung. Wir freuen uns auf Ihre Kontaktaufnahme.

Verfügbarkeit

Verfügbar ab:
1. Februar 2027

Kosten

Kaufpreis:
CHF 1'350'000

Angaben

Objektkategorie
Eigentum
Objektreferenz
1aaf9ea6-68e2-45b8-b852-2cc7d9491997
Adresse
Rütistrasse 30
PLZ/Ort
6032 Emmen
Region
Hochdorf
Wohnfläche
135 m²
Anzahl Zimmer
4.5
Etage
EG
Baujahr
2025

Merkmale und Ausstattung

Balkon
Lift
Garage
Schöne Aussicht
Rollstuhlgängig

Kontakt

  • krucasa immobilien AG
  • Dubemoos 2, 6026, Rain
  • Nummer Anzeigen

Auch inseriert auf:

homegate.ch