Wohnobjekt

neu – modern – hochwertig … mit grosszügiger Gartenfläche

CHF 1'020'000

 | 

125 m²

 | 

4.5 Zimmer

Erikaweg 2, 6233 Büron

neu – modern – hochwertig … mit grosszügiger Gartenfläche - Karte
Büron – ländliche Ruhe mit urbaner Nähe
Hier geniessen Sie die perfekte Kombination aus ländlicher Ruhe und urbaner Nähe.
Die Gemeinde Büron bietet alles für den täglichen Bedarf wie Einkaufsmöglichkeiten bei ortsansässigen Detaillisten und Produzenten, die Post und den Zahnarzt finden Sie im Dorfzentrum und die ärztliche Versorgung ist ebenfalls vor Ort vorhanden. Nebst intaktem Dorfleben, Vereins- und Gewerbevielfalt profitieren Sie von optimalen ÖV-Angeboten Richtung Luzern sowie Aarau und Sie sind in wenigen Fahrminuten auf den Autobahnachsen A1 oder A2. In Büron können Sie ländlich und naturnahe Wohnen und bleiben durch die Nähe zu Sursee und Luzern am Puls des Stadtlebens.
Die aktuelle Infrastruktur der Gemeinde bietet ein Bildungsangebot das vom Kindergarten bis zur Primarschule reicht. Die Sekundarschule wird in der Nachbarsgemeinde Triengen absolviert.
Unser Angebot
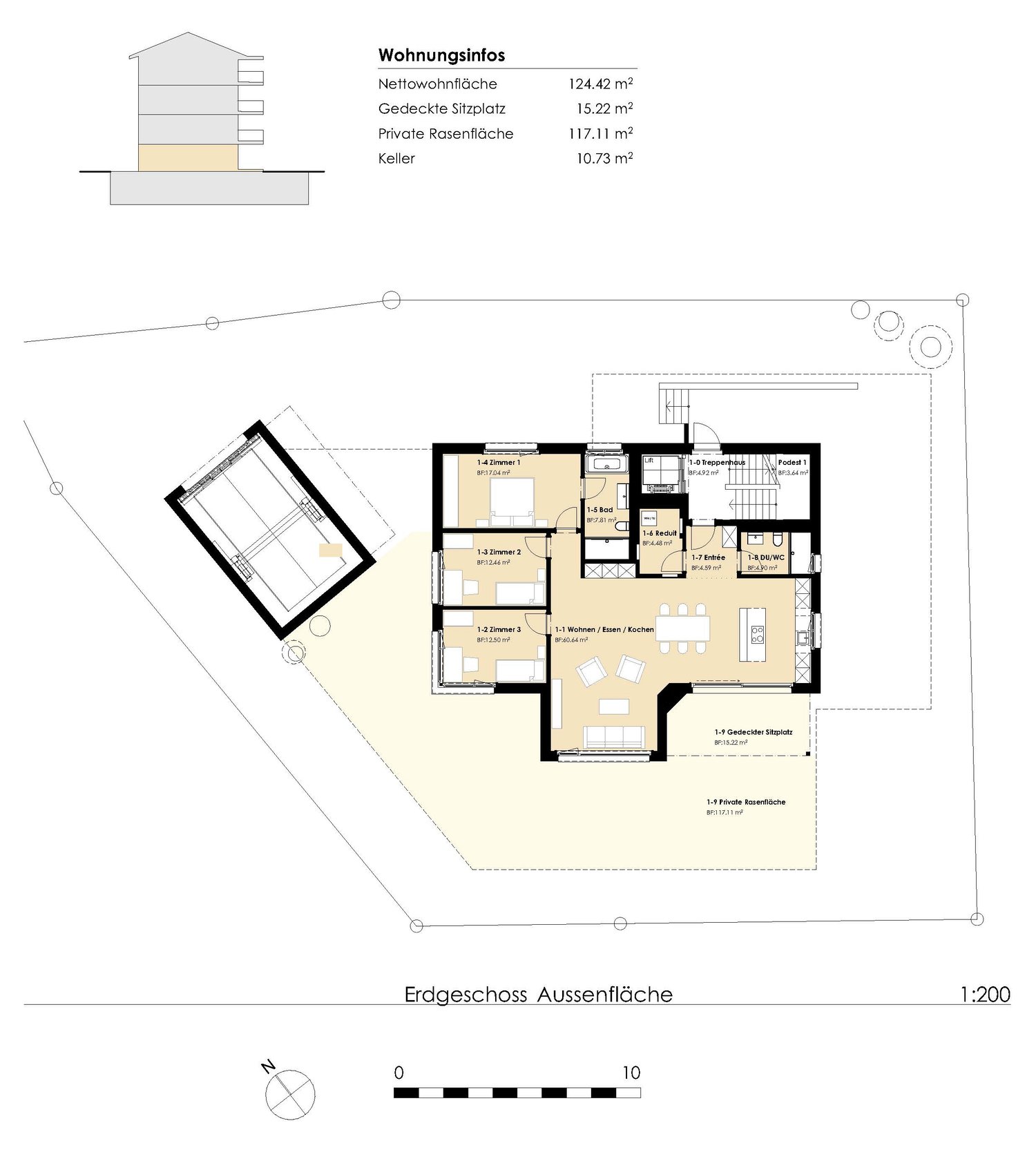
Idyllisch und ruhig am Bach gelegen, entstehen am Erikaweg 2 in Büron vier grosszügige, rollstuhlgängige und moderne 4.5-Zimmerwohnungen. Hier erwartet Sie grosszügiger Wohnkomfort mit qualitativ hochwertigen Materialien. Die Wohnungen bieten Platz für jedes Bedürfnis.
Jede Wohnung verfügt über einen offene und lichtdurchfluteten Wohn-, Ess- und Küchenbereich. Die Küche überzeugt mit der Kombination der Materialien, viel Stauraum und hochwertigen Geräten – einfach genial.
Ess- und Wohnzimmer gliedern sich harmonisch gegen Süden. Küche – Essen – Wohnen bilden eine durchdachte, praktische Einheit. Hier sind Sie zu Hause.
Der Sitzplatz ist vom Ess-, Küchenbereich her zugänglich und erweitert in den Sommermonaten Ihren Wohnbereich. Die Gartenwohnung verfügt nebst dem gedeckten Sitzplatz über eine sehr grosse Rasenfläche. Geniessen Sie die traumhaften Sonnenuntergänge und die Ruhe – Sie hören nur die Vögel zwitschern und den Bach plätschern.
Die Schlafräume lassen Sie entspannen und können individuell genutzt werden. Jede Wohnung verfügt über zwei Nasszellen, wovon das eine Badezimmer direkt vom Masterbedroom zugänglich ist. Die begehbare Dusche, die Badewanne und die modernen Armaturen, lassen sich nach Ihren Vorstellungen gestalten.
Jede Wohnung verfügt über einen eigenen privaten Waschturm im Reduit, direkt in der Wohnung.
Selbstverständlich gehört ein grosszügiges Kellerabteil im Untergeschoss dazu, welches Sie bequem mit dem Lift erreichen.
Autoeinstellhallenplätze können in der Einstellhalle, welche via Autolift befahrbar ist, dazugekauft werden. Es stehen genügend Plätze zur Verfügung.
Sie sind an weiteren Informationen interessiert oder haben noch Fragen zu dieser spannenden Gartenwohnung? Gerne stehen wir Ihnen persönlich zur Verfügung.
Wir freuen uns auf Ihre Kontaktaufnahme.

Verfügbarkeit

Bezugstermin:
1. Mai 2027

Kosten

Kaufpreis:
CHF 1'020'000

Angaben

Objektkategorie
Eigentum
Objektreferenz
980f70c7-e2b0-4367-90da-c4daf34473c3
Adresse
Erikaweg 2
PLZ/Ort
6233 Büron
Region
Sursee
Wohnfläche
125 m²
Anzahl Zimmer
4.5
Etage
EG
Baujahr
2025

Merkmale und Ausstattung

Balkon
Lift

Kontakt

Peter Krummenacher
  • Peter Krummenacher
  • krucasa immobilien AG
  • gibt Ihnen gerne Auskunft.
  • Nummer Anzeigen

Auch inseriert auf:

homegate.ch