Wohnobjekt

Verkauf: 3.5-Zimmer-Eigentumswohnung DG

CHF 800'000

 | 

3.5 Zimmer

Meichten 5a, 6147 Altbüron

Verkauf: 3.5-Zimmer-Eigentumswohnung DG - Karte
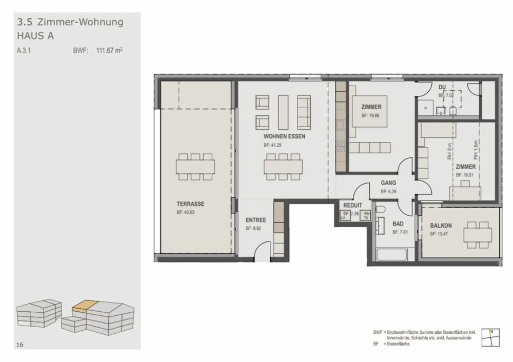
Wohnen am Fürbach - Stilvoll leben im Herzen von Altbüron Mitten im idyllischen Dorf Altbüron im Kanton Luzern entsteht die moderne Wohnüberbauung Wohnen am Fürbach. Die zwei neu erbauten Mehrfamilienhäuser bieten helle, grosszügige Wohnungen. Hier wohnen Sie modern, komfortabel und naturnah. Ihre neue 3.5-Zimmerwohnung - Dachwohnung zum Kauf
Diese stilvolle 3.5-Zimmerwohnung im Erstbezug überzeugt mit durchdachter Raumaufteilung, grosszügigen harmonischen Wohnbereichen sowie zwei Balkone. Grosse Fenster sorgen für viel Tageslicht und ein angenehmes Wohnklima. Die Kombination aus ländlicher Ruhe und urbaner Nähe schafft ein Wohngefühl, das sowohl praktisch als auch entspannend ist. Folgende Highlight erwarten Sie:
Helle und lichtdurchflutete RäumeSchöne DachwohnungOffene Küche mit modernen GerätenModerne PlattenparkettoptikZwei Nasszellen: Badewanne sowie eine DuscheGarderobe im EingangsbereichReduit mit eigenem Waschturm (Waschmaschine/Tumbler)Zwei BalkoneZusätzlicher Komfort:
Grosser Veloabstellraum (Gemeinschaftsraum)Ein Kellerabteil ist im Kaufpreis inbegriffenZwei Einstellhallenplätze / 1 Parkplatz = 30'000.-können zusätzlich gekauft werdenDie Liegenschaft befindet sich im Zentrum von Altbüron - ruhig gelegen und dennoch bestens erschlossen. Einkaufsmöglichkeiten (Spar), Post, Bäckerei mit Café, Schule und Spielplatz sind in Gehdistanz erreichbar.
Der Autobahnanschluss A2 Dagmersellen ist nur 12 km entfernt. Langenthal erreichen Sie mit dem Auto in 12 und Sursee in 24 Minuten, die Stadt Luzern in 50 Minuten, Bern und Zürich in einer Stunde. Mit dem öffentlichen Verkehr gelangen Sie in kurzen Taktzeiten nach Willisau, Reiden oder Langenthal.
Qualität aus Tradition
Die Überbauung ist ein Projekt der Steiger Immobilien AG, einem Familienunternehmen mit langjähriger Erfahrung, das seit 1961 für Qualität, Kompetenz und Verlässlichkeit steht.
Interesse geweckt?Wir freuen uns auf Ihre Kontaktaufnahme.
[email protected] / 041 926 00 40

Kosten

Kaufpreis:
CHF 800'000

Angaben

Objektkategorie
Eigentum
Objektreferenz
7ed70def-c126-4c25-b8b6-d132cd819dc8
Adresse
Meichten 5a
PLZ/Ort
6147 Altbüron
Region
Willisau
Anzahl Zimmer
3.5
Etage
3
Baujahr
2025

Merkmale und Ausstattung

Balkon
Lift
Garage
Kinderfreundlich
Rollstuhlgängig
Minergie

Kontakt

Jules Steiger
  • Jules Steiger
  • Steiger Immobilien AG
  • gibt Ihnen gerne Auskunft.
  • Nummer Anzeigen

Auch inseriert auf:

homegate.ch