Wohnobjekt

Rossemaison - Appartement neuf de 3.5 pièces Minergie-P avec balcon

CHF 455'000

 | 

75 m²

 | 

3.5 Zimmer

Route de Delémont, 2842 Rossemaison

Rossemaison - Appartement neuf de 3.5 pièces Minergie-P avec balcon - Karte
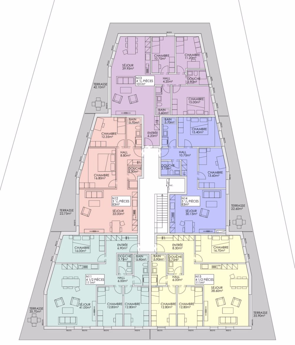
Appartement de 3.5 pièces avec grand balcon à vendre à Rossemaison. Au coeur de la charmante commune de Rossemaison, à deux pas de Delémont et de toutes ses commodités, découvrez une résidence moderne et éco-responsable certifiée Minergie-P. Nous vous proposons un magnifique appartement de 3.5 pièces au 1er étage, offrant 75 m² habitables et un grand balcon de 23,4 m². Une promotion d'exception Implantée sur une parcelle d'env. 3'000 m², cette résidence allie architecture contemporaine, efficacité énergétique et confort de vie. Le projet comprend 16 appartements lumineux répartis sur 3 niveaux : o 7 appartements de 3.5 pièces o 8 appartements de 4.5 pièces o 1 attique exclusif Les atouts du projet o Construction Minergie-P avec isolation performante et panneaux photovoltaïques. o Design épuré et lumineux. o Domotique intégrée pour une gestion optimale du confort et de l'énergie. o Accessibilité totale avec ascenseur et aménagements adaptés aux PMR. o Mobilité durable : raccordements prévus pour véhicules électriques. o Espaces partagés : local vélos/motos. o Stationnement : place de parc souterraine et cave privative incluse dans le prix. Qualité de vie Chaque détail a été pensé pour offrir un cadre de vie harmonieux, alliant la proximité urbaine et la quiétude d'un village, dans une ambiance chaleureuse et respectueuse de l'environnement. Contactez-nous dès aujourd'hui pour plus d'informations et laissez-vous séduire par cette opportunité unique ! 3.5-Zimmer-Wohnung mit grossem Balkon in Rossemaison zu verkaufen. Im Herzen der charmanten Gemeinde Rossemaison, nur wenige Schritte von Delémont und all seinen Annehmlichkeiten entfernt, entdecken Sie eine moderne und umweltfreundliche Residenz mit Minergie-P-Zertifizierung. Wir bieten Ihnen eine wunderschöne 3,5-Zimmer-Wohnung im 1. Stock, die 75 m² Wohnfläche und einen großen Balkon von 23,4 m² bietet. Eine außergewöhnliche Promotion Auf einem Grundstück von ca. 3'000 m² gelegen, verbindet diese Residenz zeitgenössische Architektur, Energieeffizienz und Lebenskomfort. Das Projekt umfasst 16 helle Wohnungen, die auf 3 Ebenen verteilt sind: - 7 3.5-Zimmer-Wohnungen - 8 Wohnungen mit 4.5 Zimmern - 1 exklusives Penthouse Die Vorteile des Projekts - Minergie-P-Bauweise mit leistungsstarker Isolierung und Photovoltaikanlagen. - Schlichtes und helles Design. - Integrierte Domotik für eine optimale Verwaltung des Komforts und der Energie. - Vollständige Zugänglichkeit mit Aufzug und angepassten Einrichtungen für Personen mit eingeschränkter Mobilität. - Nachhaltige Mobilität: Anschlüsse für Elektrofahrzeuge vorgesehen. - Gemeinsam genutzte Räume: Fahrrad-/Motorradraum. - Parken: Tiefgaragenstellplatz und privater Keller im Preis inbegriffen. Qualität des Lebens Jedes Detail wurde durchdacht, um einen harmonischen Lebensrahmen zu bieten, der die städtische Nähe mit der Ruhe eines Dorfes verbindet, in einer herzlichen und umweltfreundlichen Atmosphäre. Kontaktieren Sie uns noch heute für weitere Informationen und lassen Sie sich von dieser einzigartigen Gelegenheit begeistern! 3.5-room apartment with large balcony for sale in Rossemaison. In the heart of the charming commune of Rossemaison, a stone's throw from Delémont and all its amenities, discover a modern, eco-responsible Minergie-P-certified residence. We offer you a magnificent 3.5-room apartment on the 1st floor, with 75 m² of living space and a large 23.4 m² balcony. An exceptional development Set on a plot of approx. 3,000 m², this residence combines contemporary architecture, energy efficiency and comfortable living. The project comprises 16 light-filled apartments on 3 levels: - 7 apartments with 3.5 rooms - 8 apartments with 4.5 rooms - 1 exclusive penthouse Project benefits - Minergie-P construction with high-performance insulation and photovoltaic panels. - Clean, bright design. - Integrated home automation for optimal comfort and energy management. - Full accessibility with elevator and adapted...

Kosten

Kaufpreis:
CHF 455'000

Angaben

Objektkategorie
Eigentum
Objektreferenz
3ea032b1-a400-4b45-976f-744989f29e62
Adresse
Route de Delémont
PLZ/Ort
2842 Rossemaison
Region
District de Delémont
Wohnfläche
75 m²
Anzahl Zimmer
3.5
Etage
1
Baujahr
2024

Merkmale und Ausstattung

Balkon
Lift
Schöne Aussicht
Kinderfreundlich

Kontakt

  • AXIC SA
  • Rue des Moulins 18, 2800, Delémont
  • Nummer Anzeigen

Auch inseriert auf:

homegate.ch