Wohnobjekt

Exklusive und helle Apartments mit Ausrichtung

CHF 319'000

 | 

75 m²

 | 

3.5 Zimmer

Route de Saignelégier 32, 2714 Les Genevez JU

Exklusive und helle Apartments mit Ausrichtung - Karte
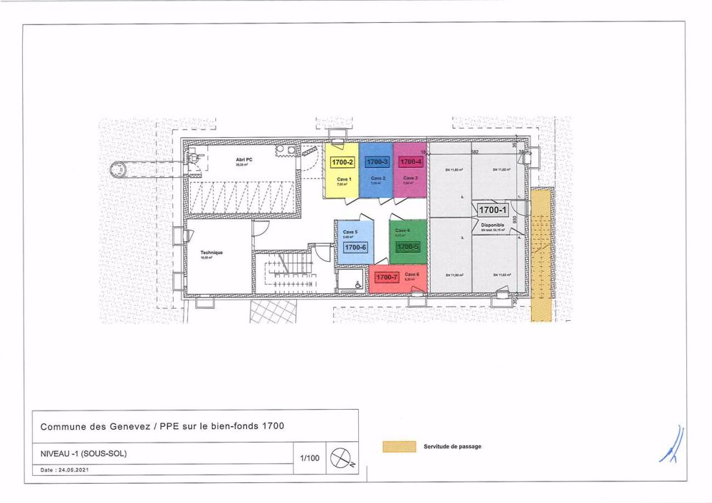
LETZTES APARTMENT ZUM VERKAUF ! Exklusive und helle Apartments mit Südwest-Ausrichtung und einer atemberaubenden und unverstellten Aussicht auf das Land. Sie erheben sich aus der Erde in einer ruhigen Umgebung in der Nähe der Stadt und nur wenige Meter von dem Wald entfernt. Die 6 Wohnungen verfügen über große Terrassen und private Gärten für die Erdgeschosse. Das Gebäude besteht aus 3 Apartments mit 3,5 Zimmern und 3 Apartments mit 4,5 Zimmern, die in einem 3-stöckigen Bau mit hochwertigen Ausführungen untergebracht sind. Alle Etagen sind mit einem Aufzug erschlossen. Im Untergeschoss bieten großzügige Keller, ein PC-/Fahrradabstellraum den Bewohnern erhöhten Komfort. Außerhalb gibt es Parkplätze und einen Gemeinschaftsgarten mit Ausstattungen/Spielen, der die Palette der Einrichtungen perfekt ergänzt. Diese neuen Apartments sind auf dem Grundstück 1700 der Gemeinde Les Genevez, einem ruhigen Dorf, das offensichtlich von der Nähe zu großen Städten und der Autobahn A16 profitiert.

Verfügbarkeit

Ab Sofort

Kosten

Kaufpreis:
CHF 319'000

Angaben

Objektkategorie
Eigentum
Objektreferenz
ffd21d29-2dfe-4dea-a49d-03c7b32f0aaa
Adresse
Route de Saignelégier 32
PLZ/Ort
2714 Les Genevez JU
Region
Franches-Montagnes
Wohnfläche
75 m²
Anzahl Zimmer
3.5
Baujahr
2024

Kontakt

  • Immobloom Sàrl
  • Rue de la Balance 2, 2300, La Chaux-de-Fonds
  • Nummer Anzeigen

Auch inseriert auf:

homegate.ch